EasyManua.ls Logo

Ge Est QS4 - Initiating Device Circuits

Ge Est QS4
138 pages
Print Icon
To Next Page IconTo Next Page
To Next Page IconTo Next Page
To Previous Page IconTo Previous Page
To Previous Page IconTo Previous Page
Loading...
Standard applications
QS4 Technical Reference Manual 5.5
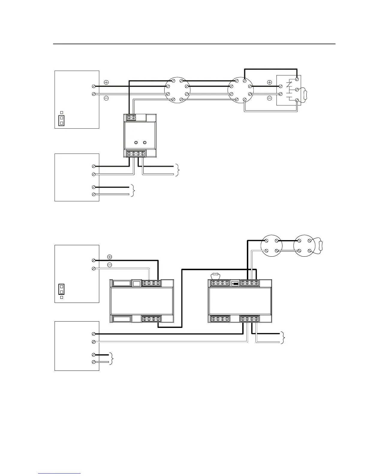
Initiating device circuits
24VDC+
24VDC–
LOOP B+
LOOP B–
4321
87
SIGA–CT1
UL/ULC LISTED
EOL RELAY
UL/ULC LISTED
47 K EOLR
LOOP A+
LOOP A–
SLIC
PS6
TO DATA OUT TERMINALS
ON LAST DEVICE (CLASS A ONLY)
TO DATA IN TERMINALS
ON NEXT DEVICE
JP2
ACC PWR
SMK PWR
Typical four-wire smoke detector circuit
TO DATA OUT TERMINALS
ON LAST DEVICE (CLASS A ONLY)
TO
DATA IN TERMINALS
ON NEXT DEVICE
LOOP B+
LOOP B–
LOOP A+
LOOP A–
SLIC
UL/ULC LISTED
22 K EOLR
24VDC+
24VDC–
PS6
JP2
ACC PWR
SMK PWR
SIGA–UM
12345678
91011121314
3-2-1
2–SMK
UL/ULC LISTED
15 K EOLR
Typical Class B two-wire smoke detector circuit
Technical Manuals Online! - http://www.tech-man.com

Table of Contents