EasyManua.ls Logo

Ge Est QS4 - Page 31

Ge Est QS4
138 pages
Print Icon
To Next Page IconTo Next Page
To Next Page IconTo Next Page
To Previous Page IconTo Previous Page
To Previous Page IconTo Previous Page
Loading...
Installation
QS4 Technical Reference Manual 2.9
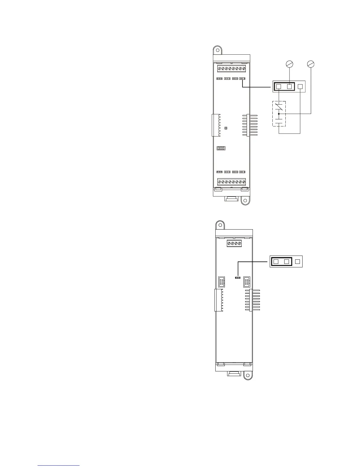
ZR8 Relay Card jumpers
JP1 – JP8 configure which relay contacts are
present on the terminal connections for R1 – R8,
respectively.
The normal operating state of the relay (on or off
when the panel is normal) determines whether
the terminal connections are normally-open or
normally-closed.
The figure to the right shows the relay contact
positions when the relay is turned off.
R4+ R4–
JP4
RS485 (NT–A) Class A Card jumpers
JP1 configures ground fault supervision for
Class A remote annunciators.
Set a shorting plug across JP1–1 and JP1–2
when the PS6 powers the remote
annunciator and provides ground fault
supervision
Set a shorting plug across JP1–2 and JP1–3
when an external supply powers the remote
annunciator and provides ground fault
supervision
JP1
123
Technical Manuals Online! - http://www.tech-man.com

Table of Contents