EasyManua.ls Logo

Groen CC20-E - Page 124

Groen CC20-E
314 pages
Print Icon
To Next Page IconTo Next Page
To Next Page IconTo Next Page
To Previous Page IconTo Previous Page
To Previous Page IconTo Previous Page
Loading...
CC10-G
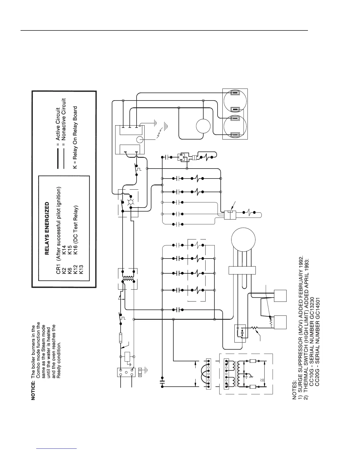
Electrical Diagrams
After Serial Number GC7243MS
4-22
SPRAY
C1
START
2.7
R1
35
µf
MR1
4
2
3
RED
MOTOR
1700 RPM
BOILER
LOW
3
C2
35
µf
RUN
BURNERS
AIR
BLK
BLU
BLK
RED
VALVES
WHT
5
4
1
2
RED
BLK
YEL
BLU
ARM
LIGHTER
AUTOCLEAN
WV5
VALVE
4
BOILER
HIGH
VIO
1
CONNECTOR
WV6
FILL
BRN
GRAY
B
LU
WV2
SLO-BLO
15 A
L
N
GND
WHT
TB 1
24V-L
24V-H
SV1
K6
GAS
K11
K12
SV2 SV3
BLK
TC1
WHT
14 AWG
F1
610°F
LIMIT
HIGH
BLK
50 VA
V
115
24
V
TR 1
K10
K2 K3
K9
SV4
WV1
WV4
K13
K14
ORG
PILOT ON
BRN
ORG
D
G
C
SW 1
A B
MV-PV(TR)
ALL WIRES 22 AWG UNLESS NOTED
DRAIN
BRN
MV(TH)
M
V-PV(TR)
JUMPER
P
V(TH-TR)
RECTIFIER
SV7
A
BRN
K15
RELAY
DETECT
PILOT
CR1
B
IGNITER
(5)
BOILER
(250° F)
TC2
(6)
24V
24V
GRN
PV
GND
PV
MV
BLU
BRN
MV
YEL
YEL
BLU BLU
K4
MGV1 MAIN GAS VALVE
7
120V
WHT
4
CR1
120V
MOV
1.25 AMP
28VAC
RELAY BOARD
POWER TO
C
D
14VAC
RELAY BOARD
J4
1 2 4
3
14VAC
75 6 98
A
1 42 6
B
98
1.25 AMP
-1
-2
MINIMUM 15K RESISTOR MAY
BE EXTERNAL OR INTERNAL
TO CAPACITOR (C1)
C
ombo Mode Circuit
(Revised 1/02)

Related product manuals