EasyManua.ls Logo

Groen CC20-E - Door Switch

Groen CC20-E
314 pages
Print Icon
To Next Page IconTo Next Page
To Next Page IconTo Next Page
To Previous Page IconTo Previous Page
To Previous Page IconTo Previous Page
Loading...
Maintenance
Test and Adjustments
8-5
Drain Valve (continued)
7. Clean and install the valve. Repeat steps 1 through 4. If valve still
does not operate correctly, and there are no problems with K15 relay
operation and the drain line, disconnect the oven from the branch
circuit and replace the drain valve.
Door Switch
WARNING
Be sure oven is disconnected from branch circuit power
before performing any repair work.
1. Disconnect oven from the branch circuit.
2. Disconnect door switch wires from the relay board.
3. Check continuity of each switch lead to chassis ground. If a short
circuit is measured, there may be a pinched wire causing an
insulation break. Replace the door switch if either lead is a short
circuit to ground.
4. If there is no problem in step 3, close the oven door and measure
continuity between the switch leads. You should measure a short
circuit.
5. Open oven door. The meter should indicate an open circuit.
6. Close the oven door. The meter should indicate continuity
BEFORE
the door is fully latched.
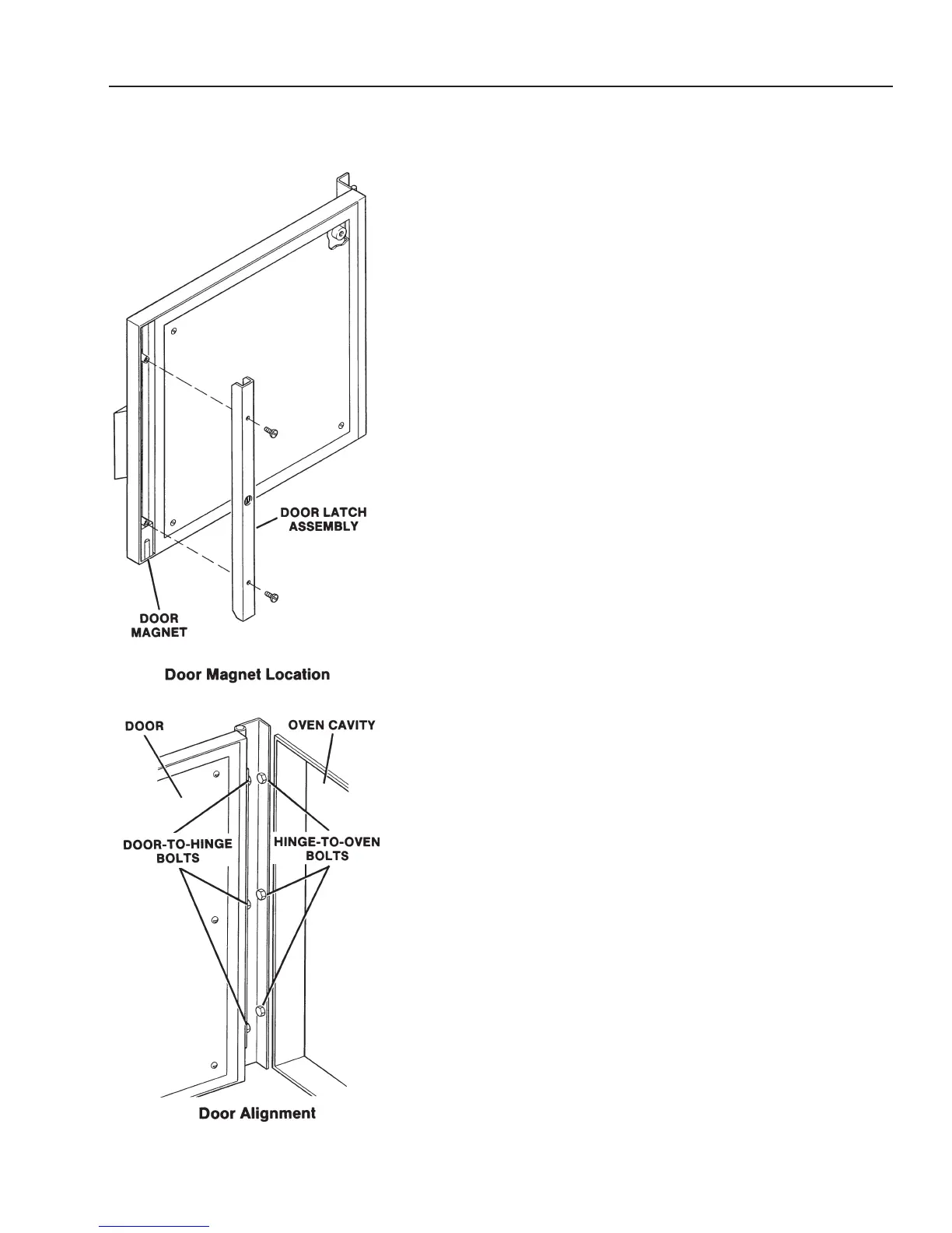
7. If short and open circuits are not measured in steps 4 and 5, remove
the door latch assembly and check if door magnet is in the correct
location.
8. If the door magnet is not correctly installed, place it in the correct
position shown in this illustration, and repeat steps 4 and 5.
9. If necessary, replace the door switch as described on page
Door Alignment
1. Place a piece of masking tape over the door pin (bullet) hole in the
door
.
2. Close the door until the door pin just penetrates the masking tape.
Make sure the door pin contacts only the door latch spring.
3. If door pin does not strike the center of the masking tape or spring
hole in the U-channel, loosen the hinge-to-oven bolts and align the
door to the door pin.
T
ighten hinge-to-oven mounting bolts.
(Revised 1/02)

Related product manuals