EasyManua.ls Logo

Groen CC20-E - Page 186

Groen CC20-E
314 pages
Print Icon
To Next Page IconTo Next Page
To Next Page IconTo Next Page
To Previous Page IconTo Previous Page
To Previous Page IconTo Previous Page
Loading...
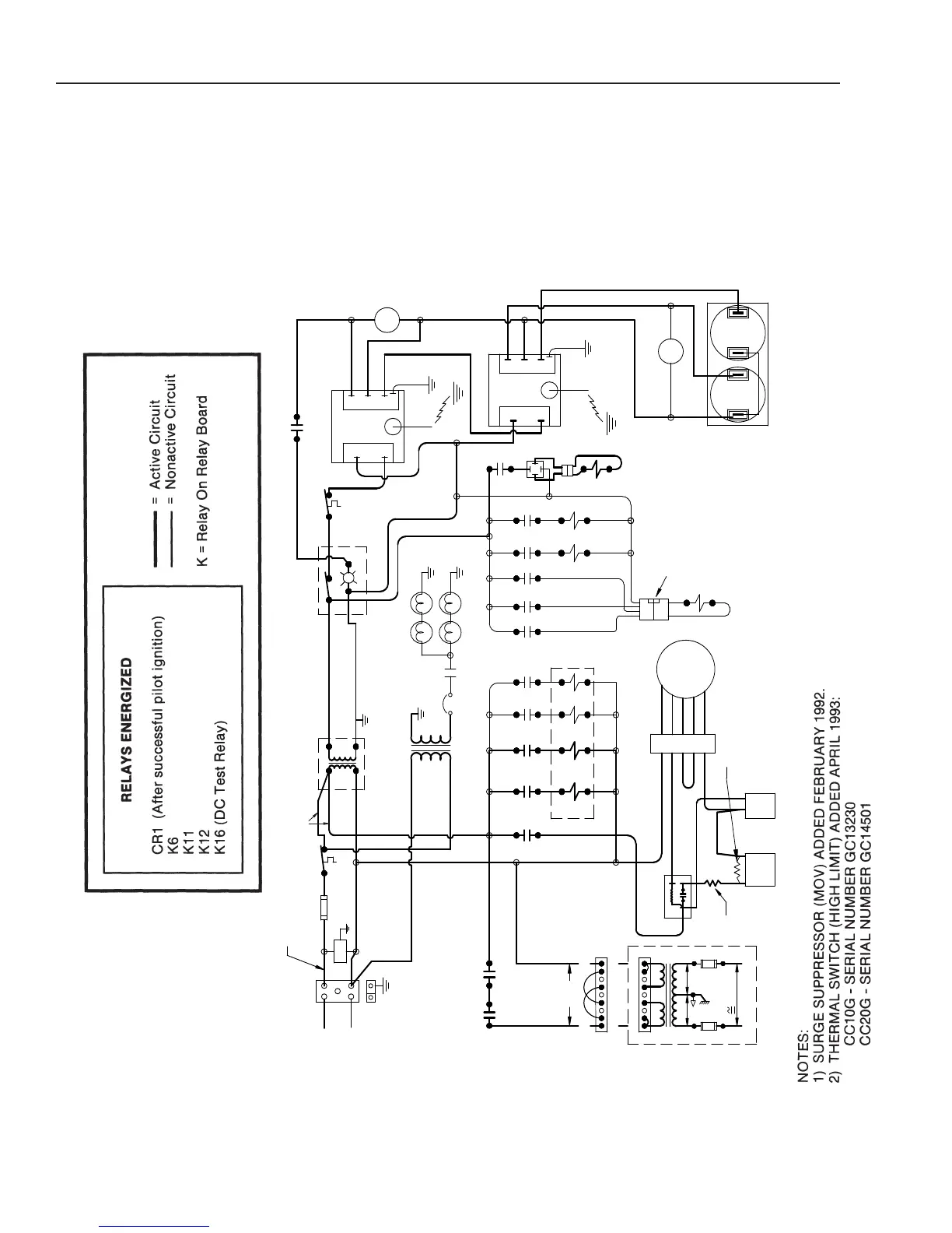
C/2-G
Electrical Diagrams
5A-12
MGV1 MAIN GAS VALVE
RECT
TR 1
50 VA
SV2
K11
BLK
RUN
MOV
115
18 AWG
TC1
1
C
RELAY BOARD
J4
1.25 AMP
1.25 AMP
POWER TO
RELAY BOARD
28VAC
D
14VAC14VAC
2
1
32
64
6
54
8
9
8 9
7
A
7
N
120V
B
4
CR1
GND
VALVES
RED
START
C1
R1
2.7
µf
15K
35
MR1
4
RED
3
2
C2
µf
35
BLU
RED
AIR
BURNERS
WHT
WHT
WHT
SV1
GAS
K6
V
120V
L
TB 1
HIGH
LIMIT
610°F
F1
SLO-BLO
15 A
24
ALL WIRES 22 AWG UNLESS NOTED
K10
WV6
WV5
GRAY
HIGH
BOILER
1700 RPM
MOTOR
3
BOILER
2
1
4
5
LIGHTER
ARM
WHT
BLU
YEL
BLK
RED
LOW
4
BRN
SV3
K12
SV4
K2
24V-L
BLK
V
K3
V
IO
K9
PILOT ON
BLU
BRN
BRN
SPRAY
VALVE
FILL
CONNECTOR
AUTOCLEAN
1
BRN
DRAIN
(250° F)
K14
WV1
K4
WV2
K13
WV4
G
D
C
ORG
SV7
K15
SW 1
ORG
24V-H
A
TC2
BOILER
B
MV-PV(TR)
MV(TH)
MV-PV(TR)
JUMPER
PV(TH-TR)
DL1-4
K1
3.2A
CB
24V
TR2
75VA
120V
COM
BLK
MINIMUM 15K RESISTOR MAY
BE EXTERNAL OR INTERNAL
TO CAPACITOR (C1)
YEL
4
7
CR2
RELAY
B
PILOT DETECT
CR1
A
BRN
MV
MV
PV
GND
PV
24V
(6)
-
2
24V
(5)
1
-
GRN
BLU
YEL
BRN
BRN
A
B
CR2
RELAY
DETECT
PILOT
CR1
9
6
BRN
MV
BLU
2
GND
GRN
PV
PV
YEL
1
MV
(5)
24V
24V
(6)
-
-
BLU
IGN 1
IGN 2
WV3
O
ven Mode Circuit

Related product manuals