EasyManua.ls Logo

Hägglunds CMp - Page 42

Default Icon
64 pages
Print Icon
To Next Page IconTo Next Page
To Next Page IconTo Next Page
To Previous Page IconTo Previous Page
To Previous Page IconTo Previous Page
Loading...
42/64 CMp | Installation
Bosch Rexroth AB, RE 15409 Version 08.2022,
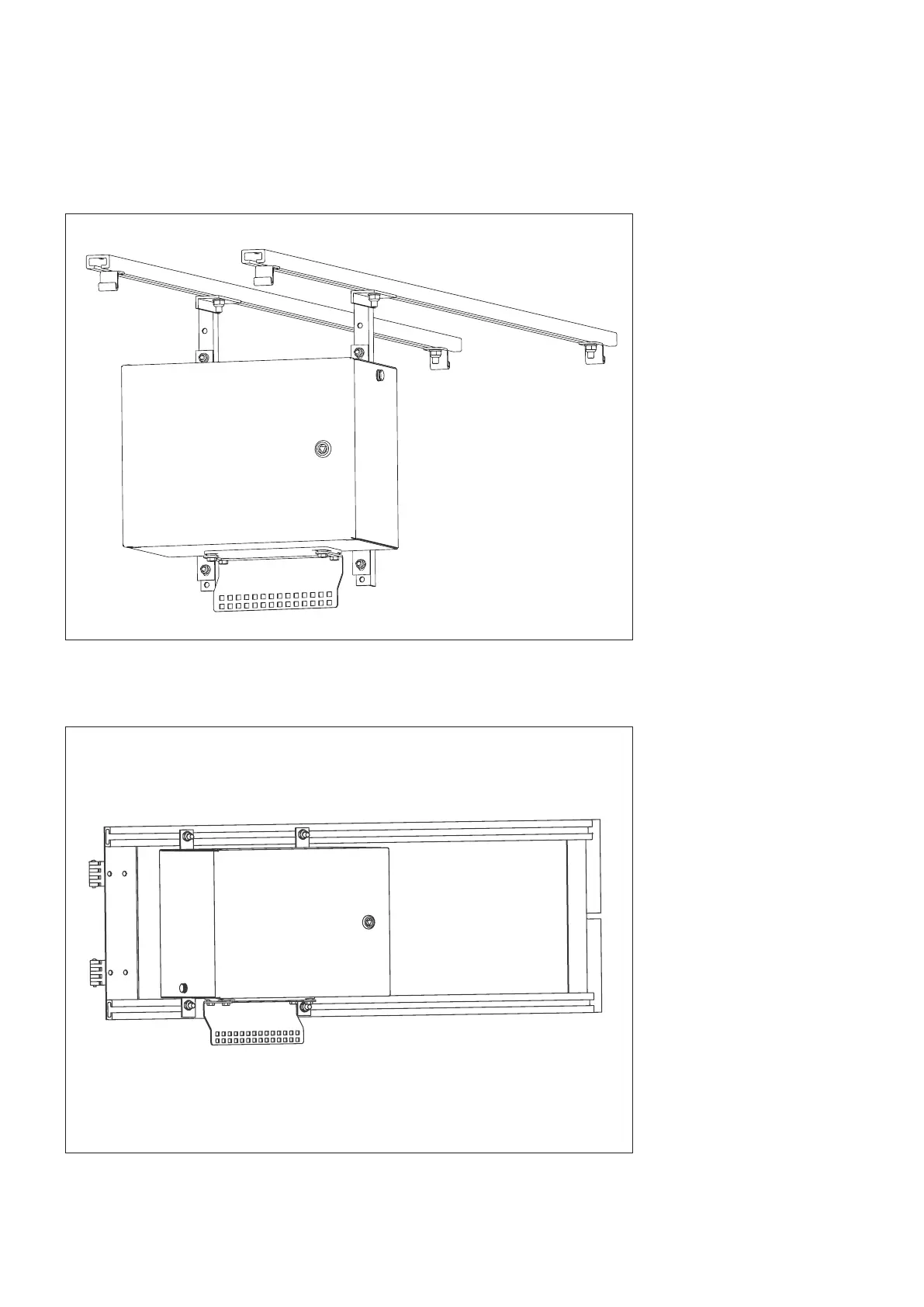
7.2.5 MountingwithbracketsinsidePEC(7XX&12XX),type04
Fig. 40: General picture of mounting with brackets inside PEC (7XX & 12XX)
Same mounting as the previous page, but with longer rails. See chapter 7.2.4
DD00078073
7.2.6 MountingonDU,type05
Fig. 41: General picture of mounting on DU
DD00077979