EasyManua.ls Logo

HP ProLiant ML30 Gen10 Plus - Page 147

HP ProLiant ML30 Gen10 Plus
166 pages
To Next Page IconTo Next Page
To Next Page IconTo Next Page
To Previous Page IconTo Previous Page
To Previous Page IconTo Previous Page
Loading...
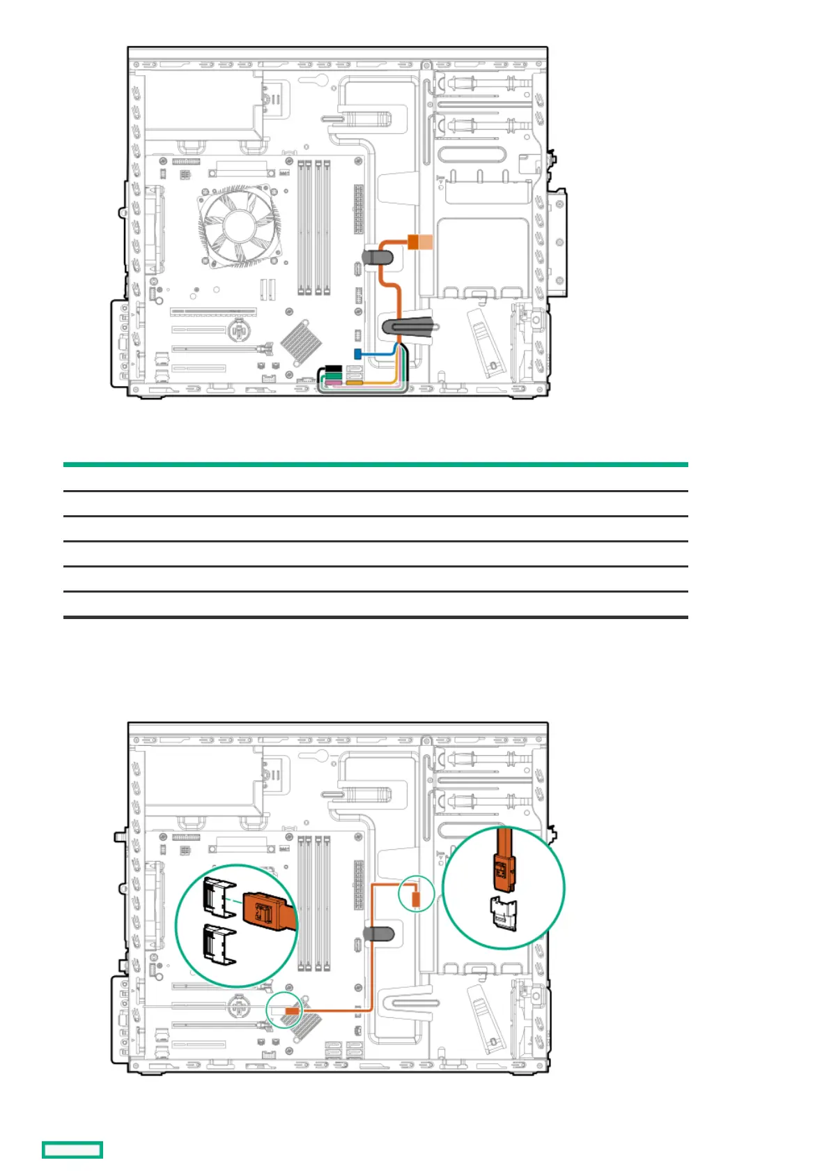
ColorColor Mini-SAS splitter cable connectionMini-SAS splitter cable connection
Orange Drive backplane
Blue Drive backplane sideband connector
Gold Onboard SATA port 1
Pink Onboard SATA port 4
Green Onboard SATA port 3
Black Onboard SATA port 2
4 LFF hot-plug drive: Type-p controller cabling4 LFF hot-plug drive: Type-p controller cabling
HPE ProLiant ML30 Gen10 Plus Server Maintenance and Service Guide 147

Table of Contents

Other manuals for HP ProLiant ML30 Gen10 Plus

Related product manuals