EasyManua.ls Logo

Hyd-Mech V-18 - Guide Arm Assemblies

Hyd-Mech V-18
117 pages
Print Icon
To Next Page IconTo Next Page
To Next Page IconTo Next Page
To Previous Page IconTo Previous Page
To Previous Page IconTo Previous Page
Loading...
Pg 6.2 V18 2001c
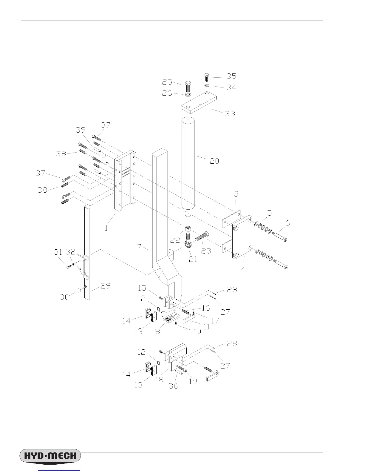
GUIDE ARM ASSEMBLIES

Table of Contents

Related product manuals