EasyManua.ls Logo

Immergas AUDAX PRO 4 V2 - 10 Wiring Diagrams; Audax Pro 4-6 V2 Wiring Diagram

Immergas AUDAX PRO 4 V2
52 pages
Print Icon
To Next Page IconTo Next Page
To Next Page IconTo Next Page
To Previous Page IconTo Previous Page
To Previous Page IconTo Previous Page
Loading...
55
A B
D
C
E
F
G
I
H
L
M
N
O
P
R
Q
40
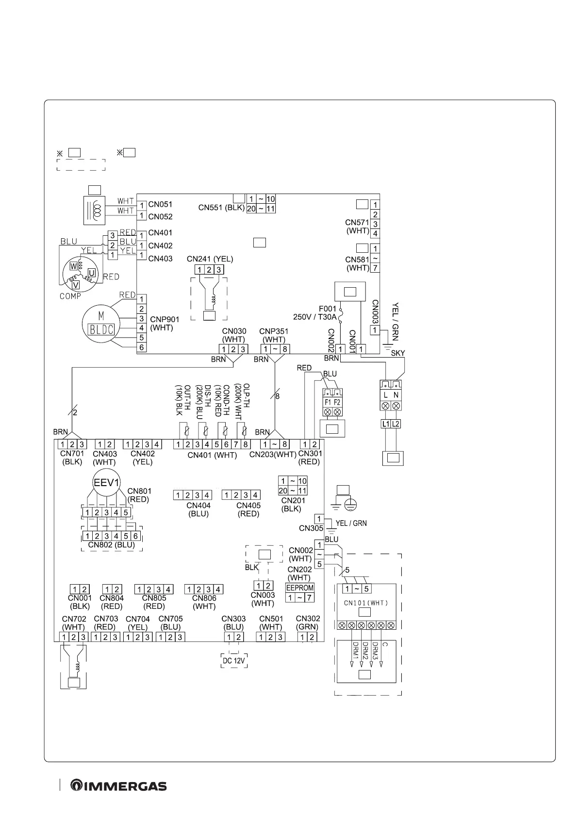
10.1 AUDAX PRO 4-6 V2 WIRING DIAGRAM.
10
WIRING
DIAGRAMS.
Colour code key:
BLK - Black
RED - Red
BLUE - Blue
WHT - White
YELLOW - Yellow
BRN - Brown
SKY - Sky blue
GRN - Green
Key:
A - Optional
B - ermistor value:
25°C (77°F) at 10k Ω
25°C (77°F) at 200k Ω)
C - Reactor
D - Download
E - Inverter board
F - Eco download
G - Eco comm
H - Hot gas
I - EMI lter
L - Internal comm
M - Main AC power supply
N - Earth
O - H pressure switch
P - Dred PCB
Q - 4 way
R - Dred 1, 2, 3

Table of Contents

Related product manuals