EasyManua.ls Logo

Immergas AUDAX PRO 4 V2 - Audax Pro 9 V2 Wiring Diagram

Immergas AUDAX PRO 4 V2
52 pages
Print Icon
To Next Page IconTo Next Page
To Next Page IconTo Next Page
To Previous Page IconTo Previous Page
To Previous Page IconTo Previous Page
Loading...
56
A
B
C
C1
D
E
F
G
H
I
L
M
N
O
P
Q
R
S
T
U
V
W
X
Y
Z
41
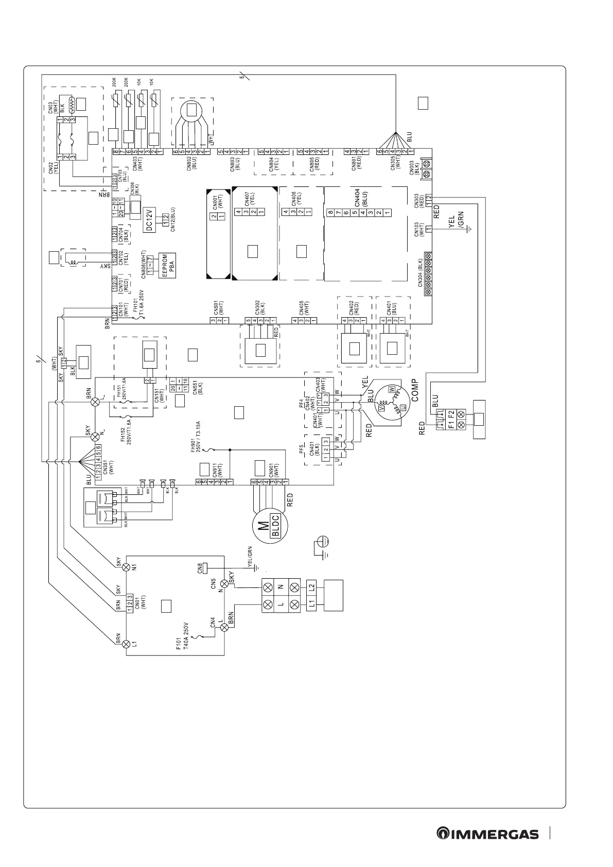
10.2 AUDAX PRO 9 V2 WIRING DIAGRAM.
Colour code key:
BLK - Black
RED - Red
BLUE - Blue
WHT - White
YELLOW - Yellow
BRN - Brown
SKY - Sky blue
GRN - Green
Key:
A - EMI board
B - Reactor
C - Fan 2
C1 - Fan 1
D - Download inverter
E - Inverter board
F - Internal comm
G - High pressure switch
H - High pressure switch
I - Table 1:
1 external fan - blue pipe
2 external fan - white pipe
L - Comm-optional
M - High pressure sensor
N - Low pressure sensor
O - 4 way - 1
P - Download
Q - Water inlet/outlet
(25°C, 77°F, 10K)
R - Pipe/intake diam. (25°C,
77°F, 10K)
S - PBA basic heater
T - Heater
U - OLP temperature
V - Drain temperature
W - Air-conditioner temperature
X - Outside temperature
Y - Main EEV
Z - *25°C (77°F) at 10k ohm
25°C (77°F) at 200k ohm

Table of Contents

Related product manuals