EasyManua.ls Logo

INVT Goodrive 200A - Page 77

INVT Goodrive 200A
162 pages
Print Icon
To Next Page IconTo Next Page
To Next Page IconTo Next Page
To Previous Page IconTo Previous Page
To Previous Page IconTo Previous Page
Loading...
Goodrive200A inverters Function parameters
72
Function
code
Name Detailed instruction of parameters
Default
value
Modify
electrical
level
detection
value
Setting range of P08.32: 0.00Hz~P00.03
(the Max. frequency)
Setting range of P08.33: -100.0~100.0%
(FDT1 electrical level)
Setting range of P08.34: 0.00 Hz ~P00.03
(the Max. frequency)
Setting range of P08.35: 0.0~100.0%
(FDT2 electrical level)
Hz
P08.35
FDT2
retention
detection
value
5.0%
P08.36
Frequency
arrival
detection
value
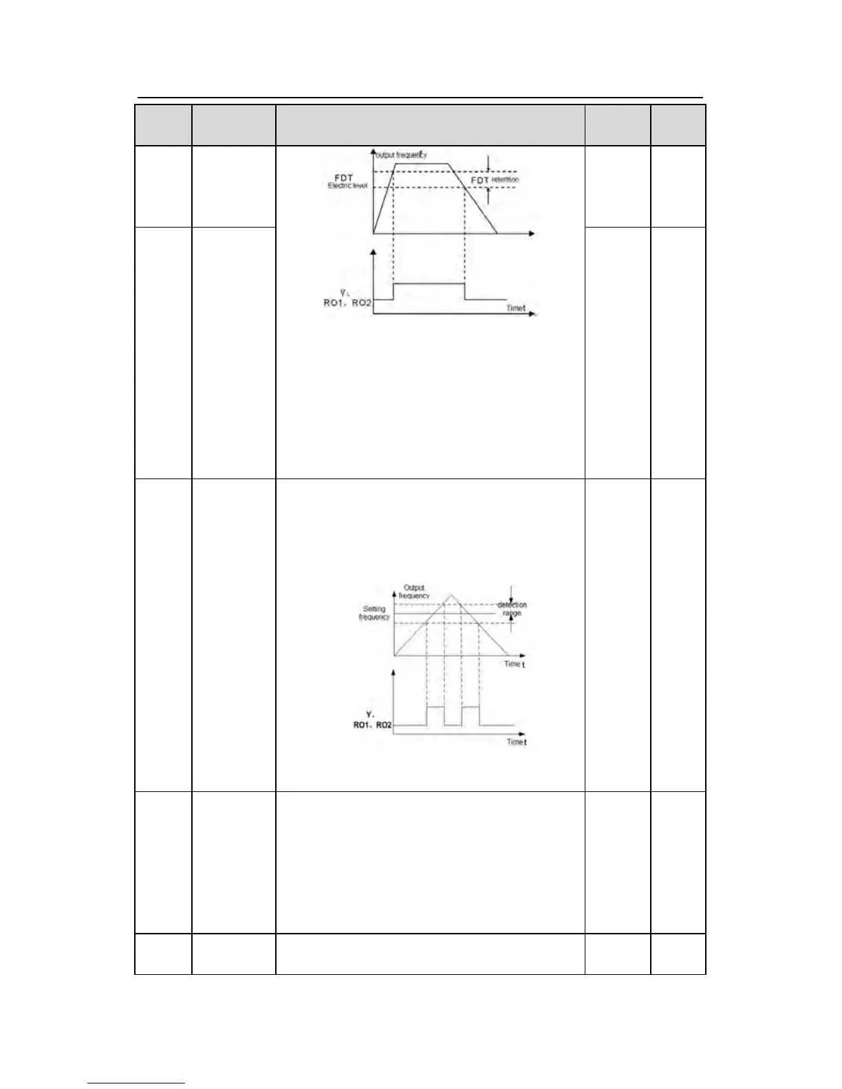
When the output frequency is among the below
or above range of the set frequency, the
multi-function digital output terminal will output
the signal of “frequency arrival”, see the diagram
below for detailed information:
The setting range:0.00Hz~P00.03
(the Max. frequency)
0.00Hz
P08.37
Energy
braking
enable
This parameter is used to control the internal
braking unit.
0:Disable
1:Enable
Note: Only applied to internal braking unit. After
enabling, the overvoltage stall point will increase
by 20V more than the energy braking point.
0
P08.38
Threshold
voltage
After setting the original bus voltage, adjust this
parameter to break the load appropriately. The
380V
voltage:

Table of Contents

Related product manuals