EasyManua.ls Logo

Juniper SRX5400 - Page 76

Juniper SRX5400
102 pages
Print Icon
To Next Page IconTo Next Page
To Next Page IconTo Next Page
To Previous Page IconTo Previous Page
To Previous Page IconTo Previous Page
Loading...
The host subsystem is composed of a Routing Engine installed directly into a slot on the faceplate of the
SCB. When there is no Routing Engine is a SCB, its slot must be covered with a blank panel.
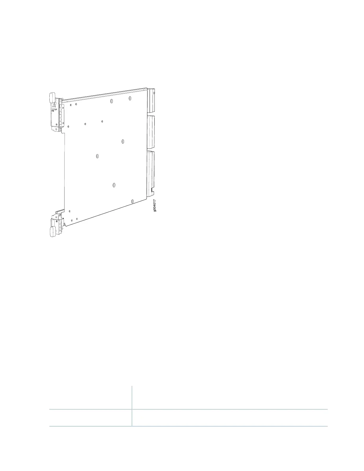
Figure 38: Switch Control Board SRX5K-SCB
Each SCB consists of the following components:
Chassis management Ethernet switch.
I2C bus logic, used for low-level communication with each component.
Component redundancy circuitry.
Gigabit Ethernet switch that is connected to the embedded CPU complex on all components.
Switch fabric—Provides the switching functions for the IOCs.
Control FPGA—Provides the Peripheral Component Interconnect (PCI) interface to the Routing Engine.
1000Base-T Ethernet controller—Provides a 1-Gbps Ethernet link between the Routing Engines.
Ethernet switch—Provides 1-Gbps link speeds between the Routing Engine and the IOCs.
Circuits for chassis management and control.
Power circuits for the Routing Engine and SCB.
SCB with slot for Routing Engine
Maximum throughput: 75 Gbps per slot
Description
Junos OS Release 9.2 and laterSoftware release
68

Table of Contents

Other manuals for Juniper SRX5400

Related product manuals