EasyManua.ls Logo

Lamtec LT 2 - Jumpers

Lamtec LT 2
105 pages
Print Icon
To Next Page IconTo Next Page
To Next Page IconTo Next Page
To Previous Page IconTo Previous Page
To Previous Page IconTo Previous Page
Loading...
10 Appendix
96
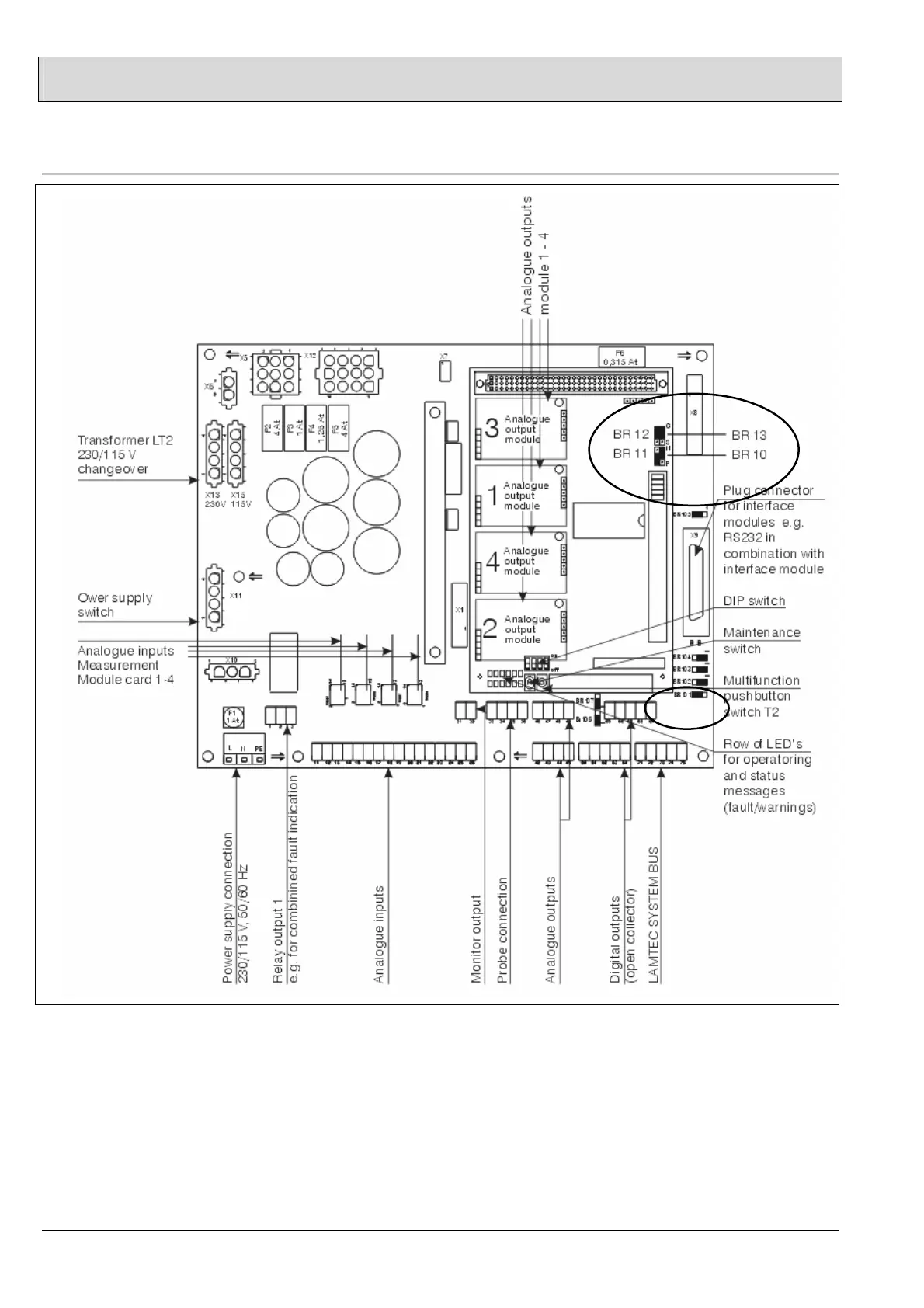
10.7 Jumpers
LAMTEC SYSTEM BUS BR101 on mainboard: Selection of LSB termination resistor :
1-2 disable
2-3 enable
BR12 and BR13 on processor board: to position ā€œCā€
Digital inputs: BR106, 107: Setting 1-2: Digital inputs based on device
potential.
Setting 2-3: Digital inputs electrically isolated.

Table of Contents

Related product manuals