EasyManua.ls Logo

Lenovo ThinkSystem SR650 - Gpu

Lenovo ThinkSystem SR650
244 pages
Print Icon
To Next Page IconTo Next Page
To Next Page IconTo Next Page
To Previous Page IconTo Previous Page
To Previous Page IconTo Previous Page
Loading...
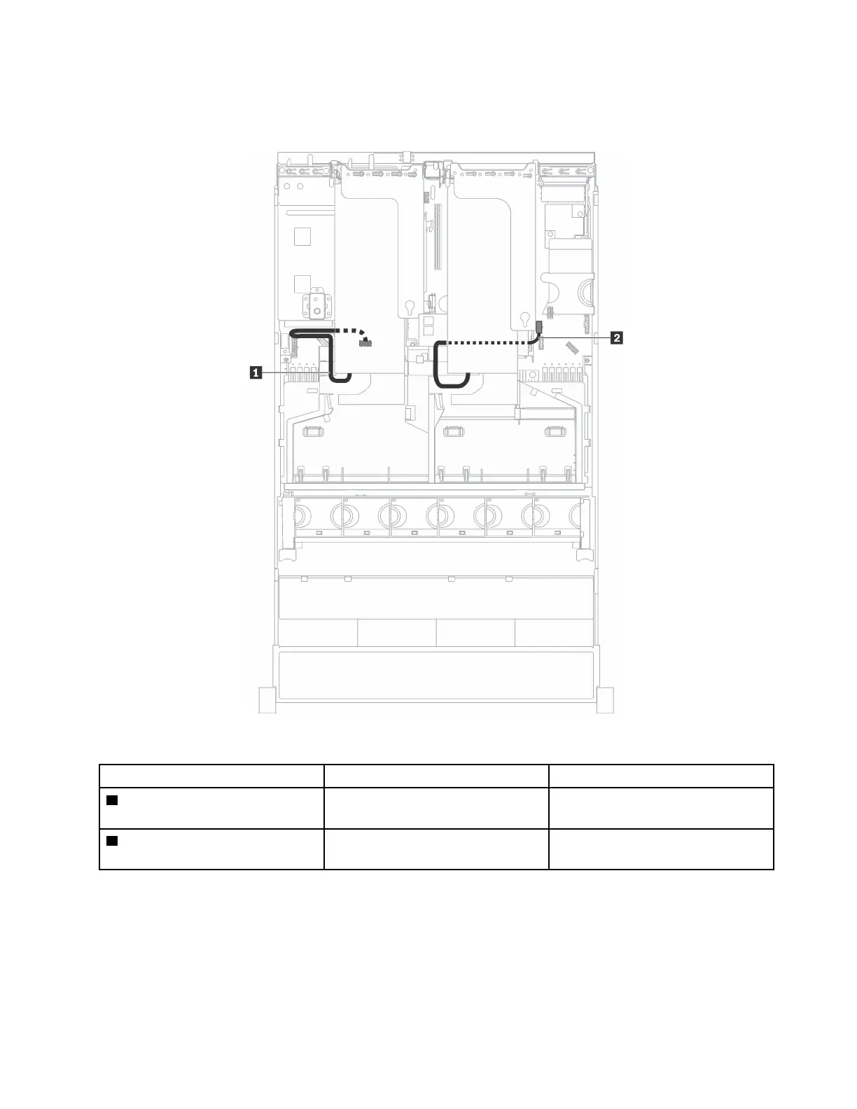
GPU
Use the section to understand the cable routing for the GPUs.
Figure 21. GPU cable routing
Cable
From To
1 GPU power cable Power connector on the GPU GPU power connector 1 on the
system board
2 GPU power cable Power connector on the GPU GPU power connector 2 on the
system board
Chapter 2. Server components 31

Table of Contents

Other manuals for Lenovo ThinkSystem SR650

Related product manuals