EasyManua.ls Logo

Lenovo ThinkSystem SR650 - Page 46

Lenovo ThinkSystem SR650
244 pages
Print Icon
To Next Page IconTo Next Page
To Next Page IconTo Next Page
To Previous Page IconTo Previous Page
To Previous Page IconTo Previous Page
Loading...
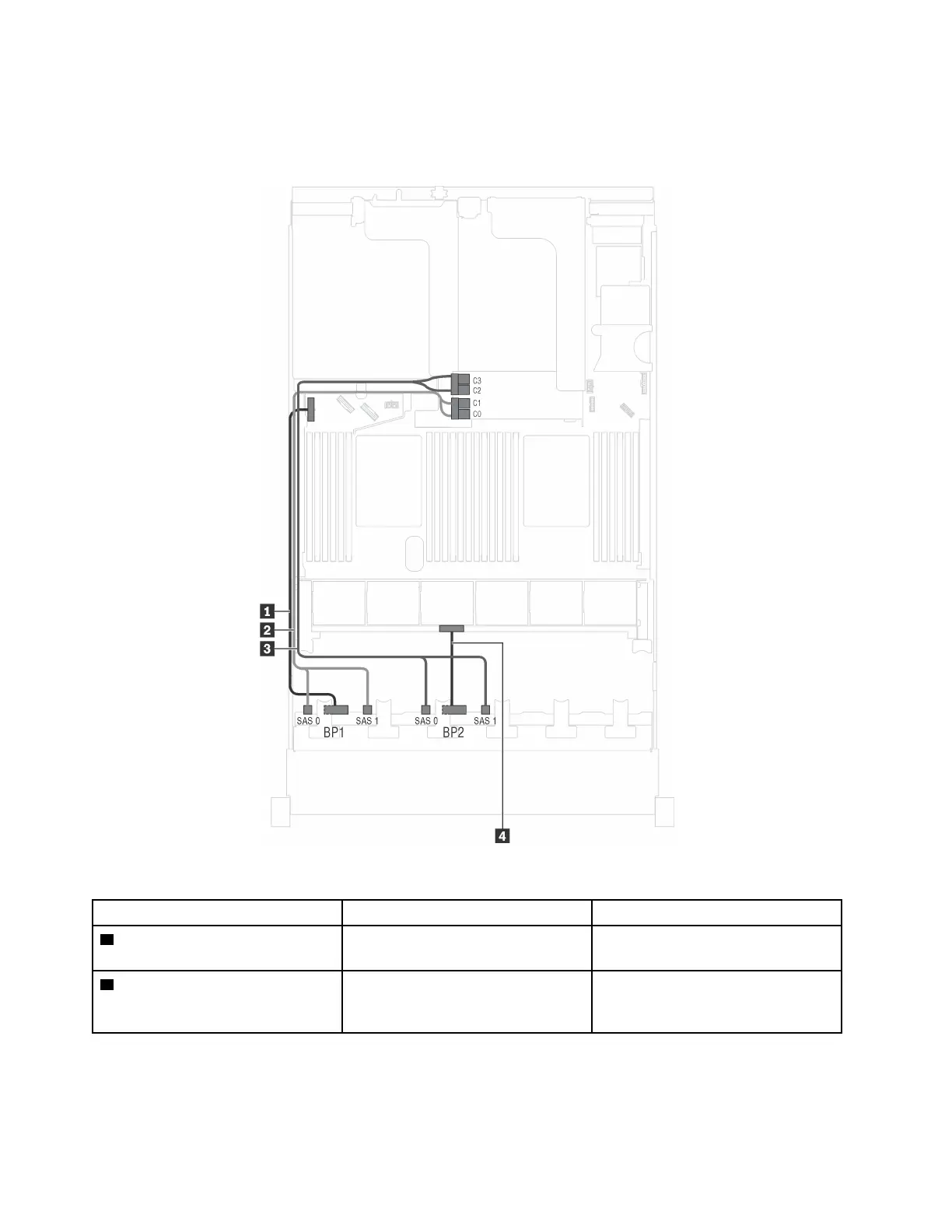
Server models with sixteen 2.5-inch drives
Use this section to understand the cable routing for server models with sixteen 2.5-inch drives.
Server model: sixteen 2.5-inch SAS/SATA drives, one 16i RAID adapter
Figure 26. Cable routing for server models with sixteen 2.5-inch SAS/SATA drives and one 16i RAID adapter
Cable From To
1 Power cable for front backplane 1 Power connector on front backplane
1
Backplane power connector 1 on the
system board
2 SAS signal cable for front
backplane 1
SAS 0 and SAS 1 connectors on front
backplane 1
C0 and C1 connectors on the 16i
RAID adapter installed on the RAID
adapter slot
38 ThinkSystem SR650 Maintenance Manual

Table of Contents

Other manuals for Lenovo ThinkSystem SR650

Related product manuals