EasyManua.ls Logo

LG Multi IV - Page 48

LG Multi IV
152 pages
Print Icon
To Next Page IconTo Next Page
To Next Page IconTo Next Page
To Previous Page IconTo Previous Page
To Previous Page IconTo Previous Page
Loading...
48 | PRODUCT DATA
MULTI V IV Outdoor Unit Engineering Manual
'XHWRRXUSROLF\RIFRQWLQXRXVSURGXFWLQQRYDWLRQVRPHVSHFL¿FDWLRQVPD\FKDQJHZLWKRXWQRWL¿FDWLRQ
©
/*(OHFWURQLFV86$,QF(QJOHZRRG&OLIIV1-$OOULJKWVUHVHUYHG³/*´LVDUHJLVWHUHGWUDGHPDUNRI/*&RUS
$581'7($581'7(9+HDW3XPS
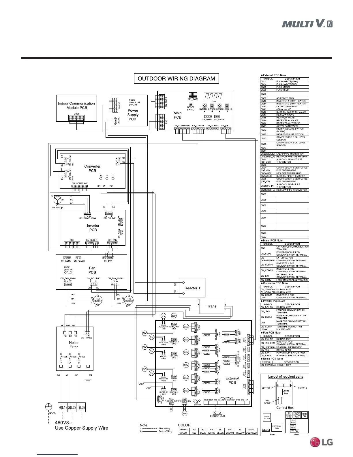
WIRING DIAGRAMS
MAIN PCB COMMUNICATION
TERMINAL
LOW PRESSURE SENSOR
HIGH PRESSURE SENSOR
MAIN ELECTRONIC
EXPANSION VALVE 1
SUB-COOLING ELECTRONIC
EXPANSION VALVE
MAIN ELECTRONIC EXPANSION
VALVE 2
OIL BALANCE ELECTRONIC
EXPANSION VALVE
VAPOR INJECTION ELECTRONIC
EXPANSION VALVE 1
VAPOR INJECTION ELECTRONIC
EXPANSION VALVE 2
MAIN PCB COMMUNICATION
TERMINAL
TERMINAL BLOCK
OUTDOOR AIR THERMISTOR

Table of Contents

Related product manuals