EasyManua.ls Logo

LG Multi IV - Page 49

LG Multi IV
152 pages
Print Icon
To Next Page IconTo Next Page
To Next Page IconTo Next Page
To Previous Page IconTo Previous Page
To Previous Page IconTo Previous Page
Loading...
PRODUCT DATA | 49
Product Data
'XHWRRXUSROLF\RIFRQWLQXRXVSURGXFWLQQRYDWLRQVRPHVSHFL¿FDWLRQVPD\FKDQJHZLWKRXWQRWL¿FDWLRQ
©
/*(OHFWURQLFV86$,QF(QJOHZRRG&OLIIV1-$OOULJKWVUHVHUYHG³/*´LVDUHJLVWHUHGWUDGHPDUNRI/*&RUS
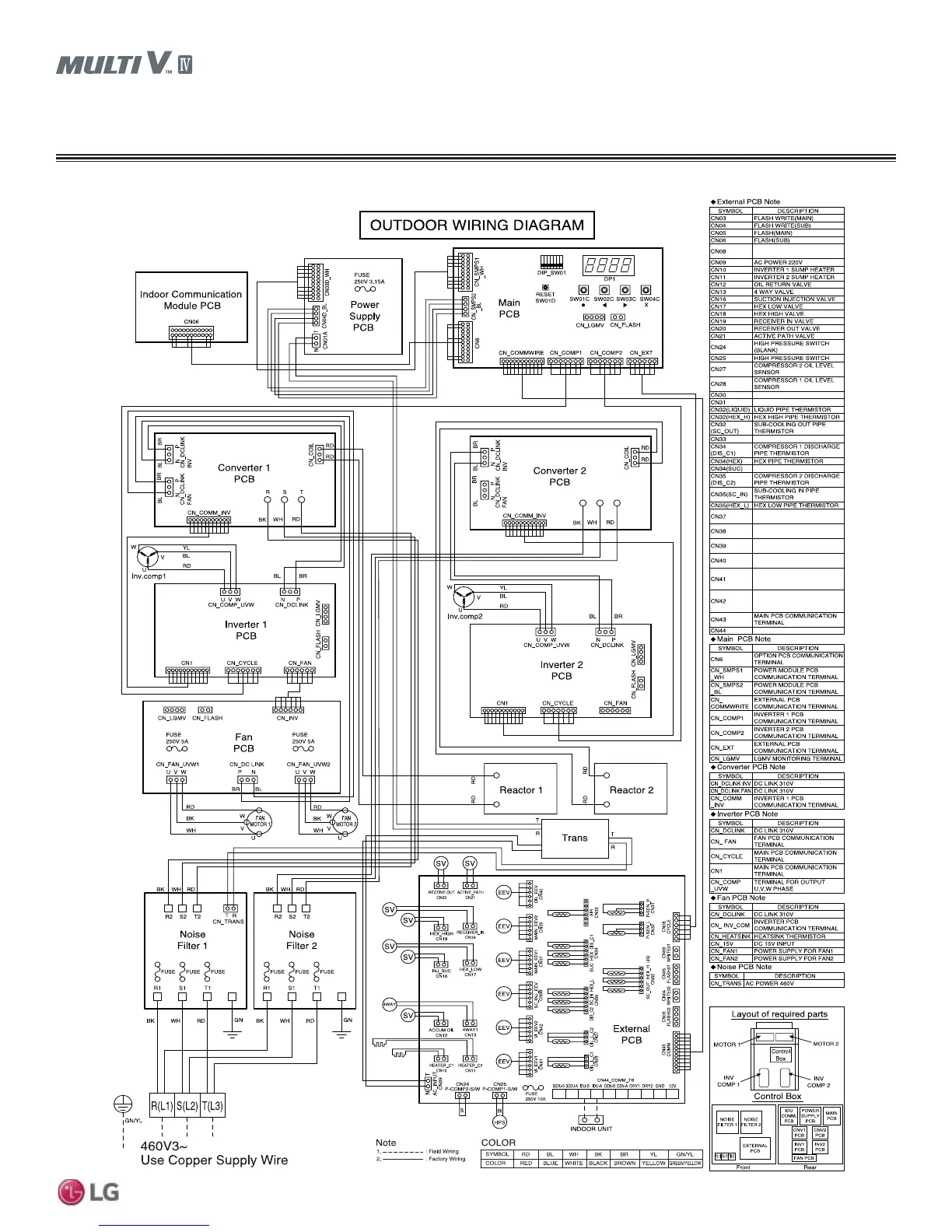
WIRING DIAGRAMS
MAIN PCB COMMUNICATION
TERMINAL
LOW PRESSURE SENSOR
HIGH PRESSURE SENSOR
OIL BALANCE ELECTRONIC
EXPANSION VALVE
VAPOR INJECTION ELECTRONIC
EXPANSION VALVE 1
VAPOR INJECTION ELECTRONIC
EXPANSION VALVE 2
OUTDOOR AIR THERMISTOR
SUCTION PIPE THERMISTOR
SUB-COOLING ELECTRONIC
EXPANSION VALVE
MAIN ELECTRONIC
EXPANSION VALVE 1
MAIN ELECTRONIC
EXPANSION VALVE 2
TERMINAL BLOCK
$581'7($581'7(9+HDW3XPS

Table of Contents

Related product manuals