EasyManua.ls Logo

Logic DLC NET Series - Input;Output and Serial Interfaces

Logic DLC NET Series
78 pages
Print Icon
To Next Page IconTo Next Page
To Next Page IconTo Next Page
To Previous Page IconTo Previous Page
To Previous Page IconTo Previous Page
Loading...
USE AND MAINTENANCE MANUAL DLC
NET
Series
Installation
LOGIC S.r.l. - M0145Db.docx
Mod. L0006A01 of 30/05/2016
Page 30 of 78
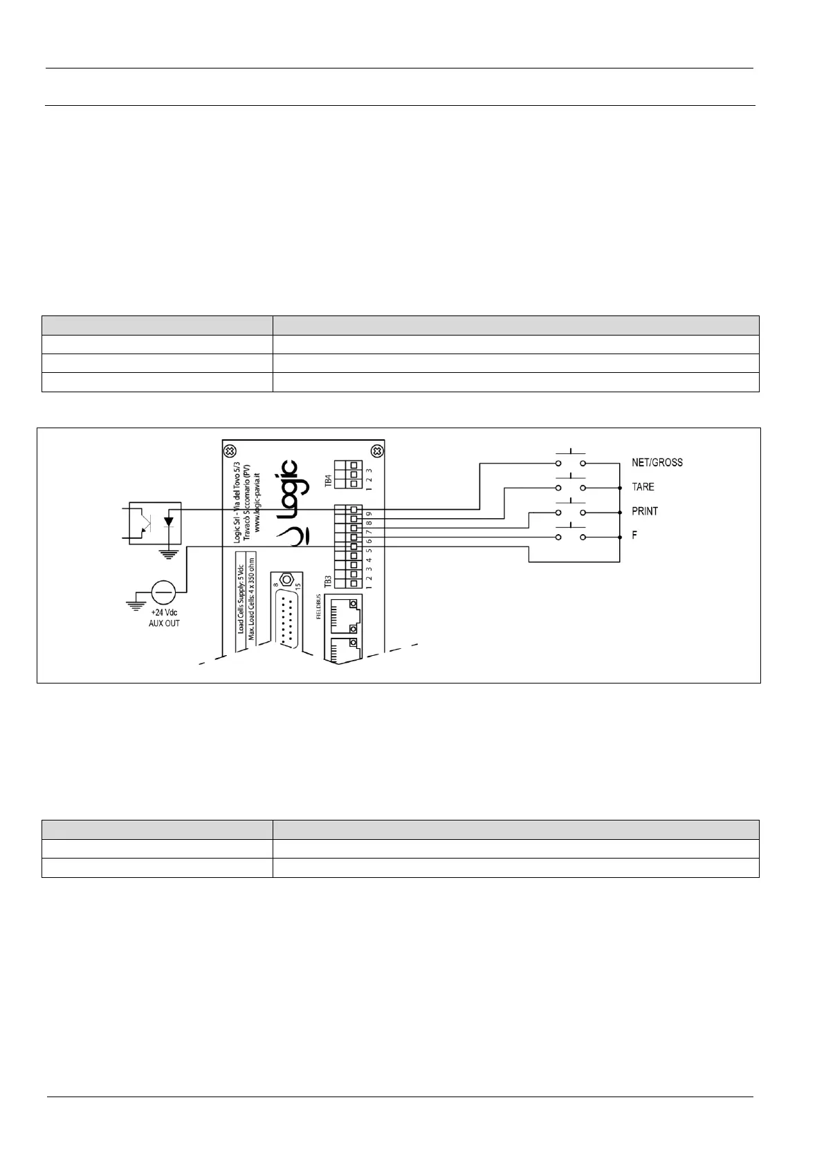
3.8 Input and output connections
3.8.1 Inputs from potential-
free contacts
It’s possible connect to the instrument up to 4 external buttons that repeat the
functions of the front buttons of the display, connected to 4 optically isolated digital
inputs 24Vdc PNP type of the instrument.
The first typology of connection (Figure 20) provides 4 input buttons by potential-
free contacts. The second typology is shown in the following paragraph.
The pins have in both cases the functions described in Table 12.
Table 12. Table external buttons connections
Pin on DLC
NET
Description
TB3-4
0 Vdc
TB3-5
+24 Vdc
TB3-6 ÷ TB3-9
Buttons inputs
Figure 20. Connection to external buttons through potential-free contacts
3.8.2 Inputs from active
source
In case to interface buttons with an instrument able to provide an active output,
you can use the following connection diagram.
Table 13. Table connections from active source
Pin on DLC
NET
Description
TB3-4
0 Vdc (in common with external power supply)
TB3-6 ÷ TB3-9
Inputs buttons (+24 Vdc external)

Table of Contents