EasyManua.ls Logo

Magnetek Elevator Quattro DC - Testpoints (Product Interface Board - LED Definitions)

Default Icon
178 pages
Print Icon
To Next Page IconTo Next Page
To Next Page IconTo Next Page
To Previous Page IconTo Previous Page
To Previous Page IconTo Previous Page
Loading...
Appendix – Testpoints
132
Appendix
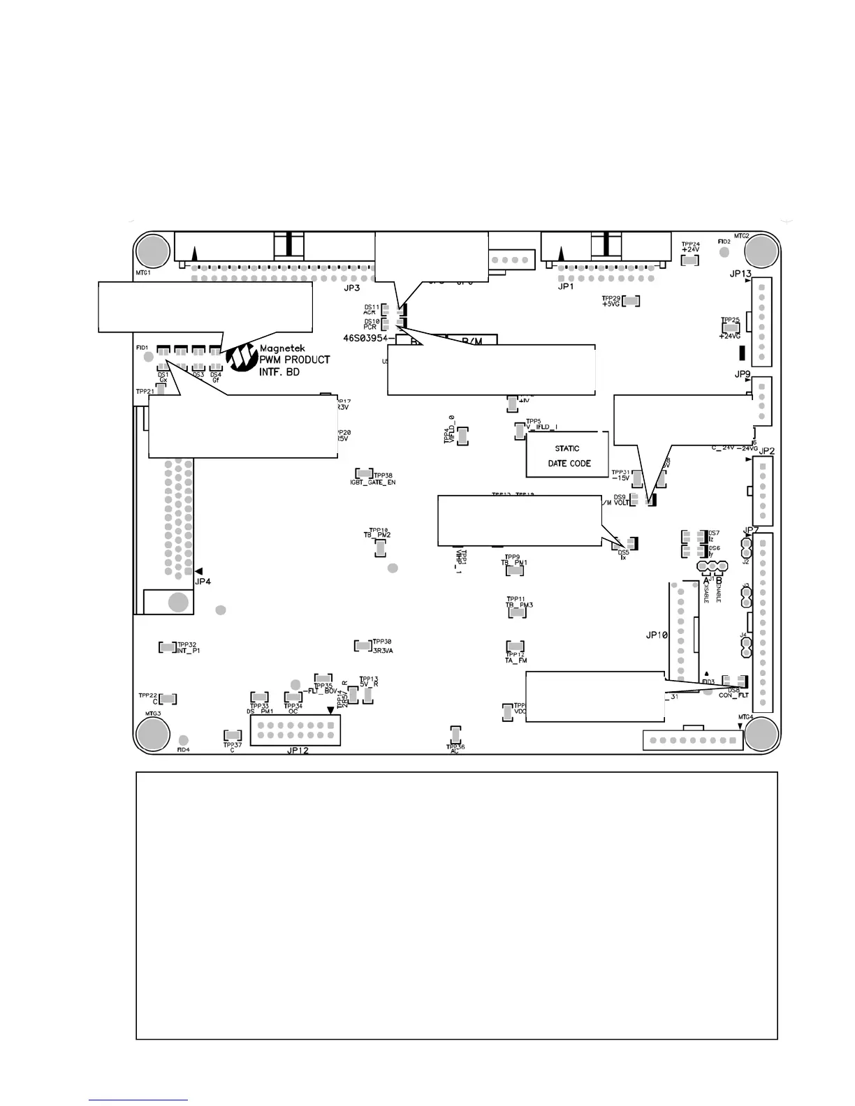
Testpoints (Product Interface Board - LED definitions)
Part Number 46S03954-0030; Reference Designators A3 and A4
The PWM product interface board has added LEDs for easier troubleshooting. Although the LEDs
have the same basic functionality on both the A3 and the A4, the referenced parts differ.
DS1-DS3
Utility / Motor Gate firing
indictators
DS4
Field IGBT gate firing indicator
DS11
UTM indicator
DS10
Precharge contactor indicator
DS9
DC Motor Voltage
DS5-DS7
Phase Current
DS8
Connector Fault
DS1-DS3 will be Amber when the appropriate gates are firing. On the line side Product Interface
Board, they refer to the line side IGBTs. On the motor side Product Interface Board, DS1-DS3 refer
to the motor IGBTs. Note: only DS1 and DS3 will be lit for motor side applications.
DS4 will be green when the drive is outputting low field current and orange when the drive is
outputting high current. DS4 is not used on the line side PI Board.
DS5-DS7 will be Amber in the line side PI Board when AC Current is flowing. Brightness is
proportional to load power. On the motor side PI Board, DS7 indicates current flowing through CT6
and DS6 indicates current flowing through CT5. Red shows negative current and green shows
positive current. DS5 is not used on the motor side PI Board.
DS8 will be red if any of the current sensor cables are disconnected. On the line side these include
the following current transducers: CT1, CT2, and CT3. On the motor side these include the following
current transducers: CT5 or CT5. This may also indicate JP7 is not properly connected.
DS9 on the line side PI board will be Amber when the 3-phase voltage is applied and sensed by the
drive. DS9 on the motor side PI Board will be green when the motor voltage is in reverse mode and
red in forward. Brightness is proportional to speed.
DS10-DS11 are only used on the line side PI Board.

Table of Contents