EasyManua.ls Logo

Microhard Systems IP-921 - Appendix E: Mounting Dimensions

Microhard Systems IP-921
173 pages
Print Icon
To Next Page IconTo Next Page
To Next Page IconTo Next Page
To Previous Page IconTo Previous Page
To Previous Page IconTo Previous Page
Loading...
© Microhard Systems Inc. CONFIDENTIAL 169
IP9xx Series
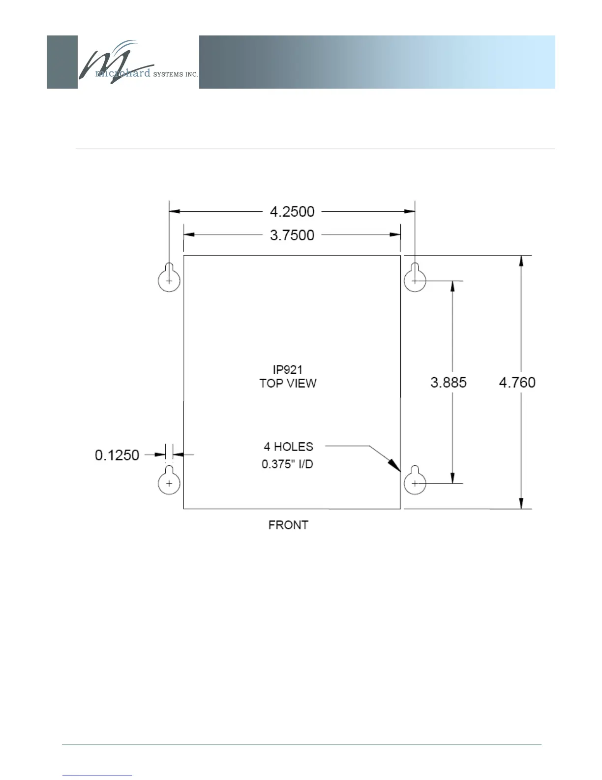
Appendix E: Mounting Dimensions

Table of Contents

Related product manuals