EasyManua.ls Logo

Midea MV6-252WV2GN1 - Page 68

Midea MV6-252WV2GN1
137 pages
Print Icon
To Next Page IconTo Next Page
To Next Page IconTo Next Page
To Previous Page IconTo Previous Page
To Previous Page IconTo Previous Page
Loading...
V6 VRF 50/60Hz
67
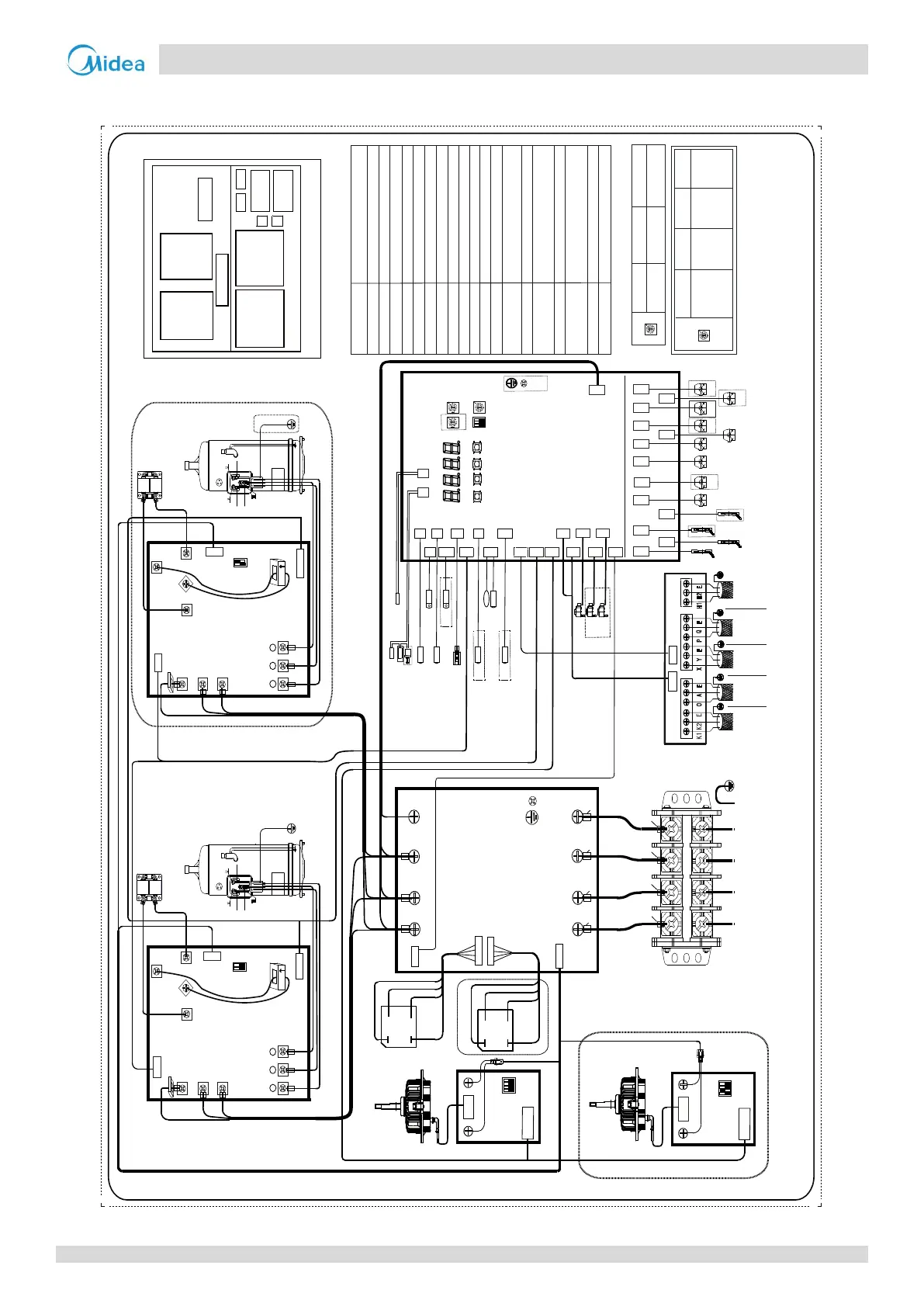
Part 5 - Electrical Components and Wiring Diagrams
30-32HP
Figure 5-4.2: 30-32HP wiring diagram
+
-
~
~
BR1
CN3
CN1(CN4)
F
AN B
N
P
ST1
L-PRO
CN19
H-PRO
CN18
DSP1
DSP2
CN17
H-YL1
T7C1
OKUPMENU DOWN
CN84
CN45
CN67_1
CN66_1
CN85
CN83
CN46
CN44
CN43
CN47
CN67
CN66
ENC3
S12
IN_NUM
CN100
TF1
T7C1
TP1-PRO
TP2-PRO
CN4
T7C2
CN5
CN8
T6A
CN8_1
T6B
CN70
EE
VA
CN72
EEVC
CN27
O-FAN
CN26
O-C
CN20
O-O
T7C2
EEV
A
EEVC
CN71
EEVB
EEVB
CN1
T4 T3
CN3
TF2
CN3_1
TF2
CN15
L-PRO
T6A
T6B
T4
T3
CN25
ST1
SV4
SV5 SV7 SV8
A SV9
SV6
SV8B
HEATA
HEATA
HEATB
HEATB
SV4 SV5 SV7 SV8
A SV9
SV6 SV8B
HEATB
HE
ATBHEAT
A
HE
ATA
ENC2
POWER
L3
N
CN12
CN5
CN51
L1
L1
L2
L2
L3
L3
N
CN6 CN7 CN8
CN9
CN10
CN11
A B C
XT1
N
CN3
FAN A
N
P
U
V
W
CN8(CN9)
IC17
CN5
P_out
CN3
N_in
CN1
P_in
N_out
U
V
w
COMP A
RA
CN4
S7
U
V
W
IC17
CN6
CN7
CN11
L1
L2
L3
CN5
P_out
CN3
N_in
CN1
P_in
N_out
U
V
w
COMP B
RB
CN4
S7
CN30
CN30
CN82
N-ON
H-YL1
CN41
SV2
SV2
CN10
CN6
CN7
CN11
L1
L2
L3
CN10
CN12 CN13 CN14
CN12 CN13 CN14
CN31(CN32)
16027000007528
1
O N
2
1
O N
2
1
O N
2 3 4
1
O N
2 3 4
1
ON
2
3
CN1(CN4)
+
-
~
~
BR2
CN32(CN31)
Black
Red White Blue
Black
Red White Blue
Black
ENC1
NUM_S
SW1
SW1
Black
Red(Black)
(Left)
(Right)
L8
L8
DC fan drive
board B
Power in
Red
Black
White
Blue
Red
Black
White
Blue
Black
Black Black
Black
AC filter board
Red
Blue
Blue
Black
Red
Blue
Blue
Black
DC fan drive
board A
Red
Black
Blue
Compressor
drive board A
Red
Black
Blue
Red(Black)
Blue
Red
White
Blue
Compressor
drive board B
Red
White
Blue
White
Red
Black
Blue
Red(Black)
Red(Black)
Red
Black
Blue
XT1
RB RA
BR1
BR2
Main
board
AC filter
board
Compressor
drive board A
Compressor
drive board B
DC fan drive
board A
DC fan drive
board B
Up layer
Down layer
PCBA Layout
Comm. board
Main board
AttentionENC2 is factory setting
do not change at will
ENC1 is available in multi outdoor unit system.
capacity
setting
ENC2 B
30HP
C
32HP
ENC2
POWER
The dotted frame section is use by some models.
This connection diagram is for reference onl y.
Please refer to the actual product.
CN2
CN2
Brown
Black Blue
CN8(CN9)
H-PRO
CN4 CN6
Comm. board
To
kilowatt-
hour
meter
To
centrali-
zed
controller
To
indoor units
communi-
cation
bus
To
outdoor
units comm-
unication bus
Reserved
FAN
A/B
ST1
XT1
H-PRO/L-PRO
TP1/TP2-PRO
EEVA/EEVB/EEVC
T3
T4
T7C1/T7C2
TF1/TF2
H-YL1
RA/RB
IC17
SV2/SV4-SV9
HEATA/HE
ATB
Plate heat exchanger cooling refrigerant
inlet/outlet temperature sensor
Main exchanger pipe temperature
sensor
T6A/T6B
BR1/BR2
COMP A/COMP B
Terminal block
4-way valve
Outdoor ambient temperature sensor
Reactance
Current sensor
DC Fan
High/Low pressure ON/OFF switch
Discharge temperature ON/OFF switch
Discharge temperature sensor
Inverter-module heatsink temperature
sensor
High pressure sensor
Electronic expansion valve
Crankcase heater
Solenoid valve
Inverter compressor A/B
CODE NAME
Single-phase Bridge Rectifier
L8
Current sensor
Outdoor unit
address
setting
ENC1 0
Master
unit
(Factory
setting)
1 2
ENC1
NUM_S
Slave
unit 1
Slave
unit 2
CN21(CN22)
CN28
O-D

Table of Contents

Related product manuals