EasyManua.ls Logo

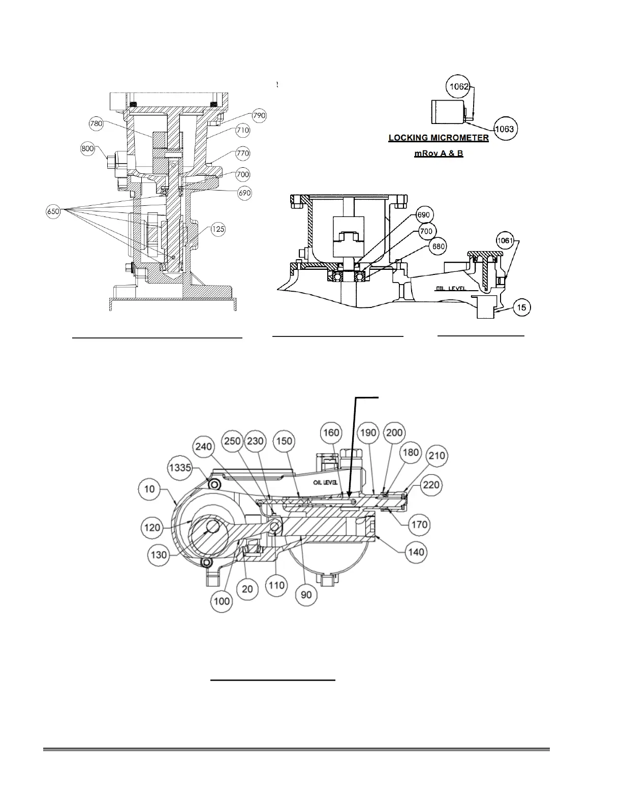
Milton Roy mRoy A - FIGURE 17. Common Parts - Mroy a & B Side View and API Motor Mount

Milton Roy mRoy A
79 pages
Print Icon
To Next Page IconTo Next Page
To Next Page IconTo Next Page
To Previous Page IconTo Previous Page
To Previous Page IconTo Previous Page
Loading...
38 Installation, Operations & Maintenance Manual
Figure 17. Common Parts - mRoy A & B Side View and API Motor Mount
(DWG(s) 999-2009-0011 and 999-2009-0010)
API FLANGE MOTOR MOUNT
DRIVE, SIDE VIEW
BAFFLE FOR DUPLEX
mRoy Drive, Side View
NOTES:
ITEMS 650 SOLD AS AN ASSEM-
BLY
ITEM 125 mRoy ONLY
NOTE:
ITEMS 75&80 mRoy A
ONLY
BYPASS OPENING
IN OIL RESERVOIR

Table of Contents