EasyManua.ls Logo

Mitsubishi Electric MELSEC-Q00U(J)CPU - Page 528

Mitsubishi Electric MELSEC-Q00U(J)CPU
588 pages
Print Icon
To Next Page IconTo Next Page
To Next Page IconTo Next Page
To Previous Page IconTo Previous Page
To Previous Page IconTo Previous Page
Loading...
526
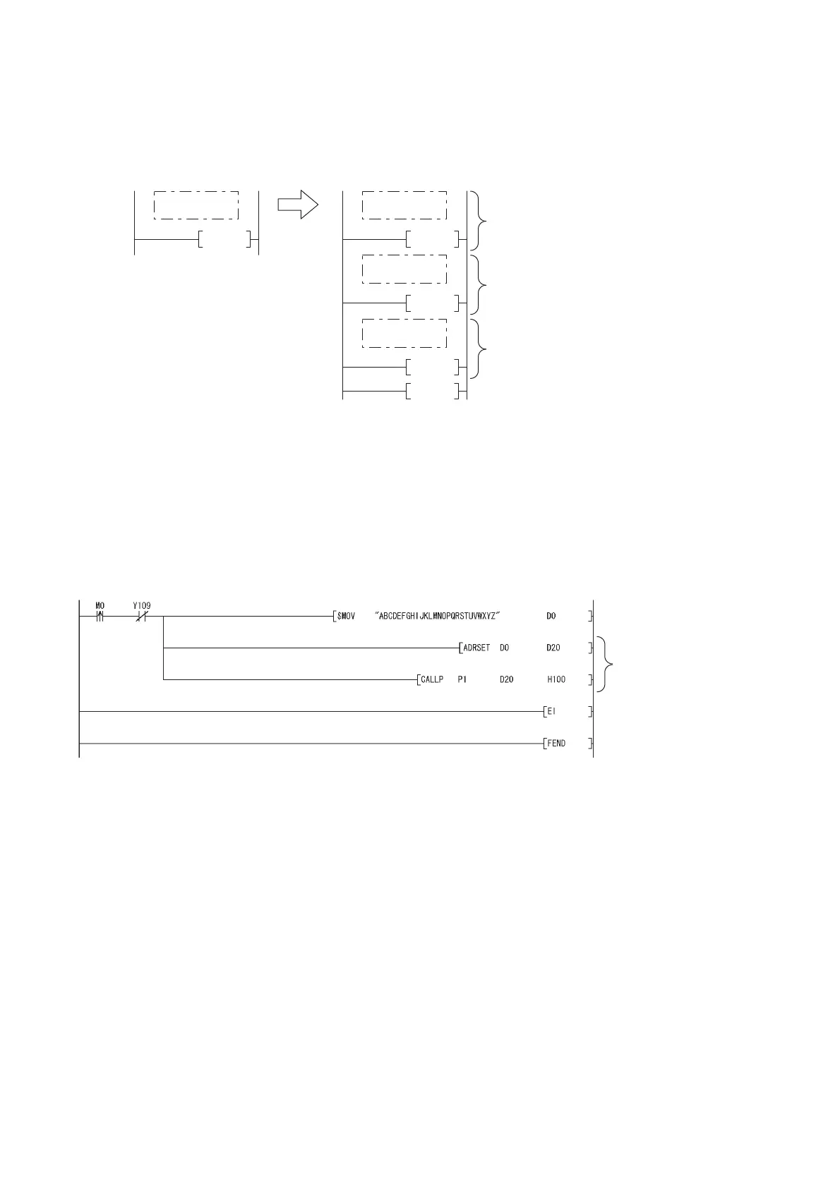
(c) Program after replacement
In the sequence program after replacement, three programs are required as shown below.
1. Main routine program
Replace the PR instruction with the CALL instruction so that a subroutine program is called.
Output string storage device ("D0" in the program below) cannot be specified directly with the CALL
instruction. Use the ADRSET instruction to acquire the indirect address for the CALL instruction.
Y device ("Y100" in the program before replacement shown in (b)) cannot be specified directly as output Y
number with the CALL instruction. Specify the output Y number in integer.
An interrupt program is used to output character codes via the output module. Enable the execution of
interrupt programs using the EI instruction.
FEND
RET
IRET
END
P1
I31
<After transition>
END
<Before transition>
Output strings and output string storage
address are set.
Initial processing
The strings stored in D0 are output.
Main routine
program
Main routine
program
Subroutine
program
Interrupt
program
The strings stored in D0 and
later are output from Y100 to
Y108.
An execution of interrupt program is
enabled.

Table of Contents

Related product manuals