EasyManua.ls Logo

Mitsubishi Electric MELSEC-Q00U(J)CPU - Refresh Mode

Mitsubishi Electric MELSEC-Q00U(J)CPU
588 pages
Print Icon
To Next Page IconTo Next Page
To Next Page IconTo Next Page
To Previous Page IconTo Previous Page
To Previous Page IconTo Previous Page
Loading...
77
CHAPTER 2 APPLICATION OF PROGRAMMING
2
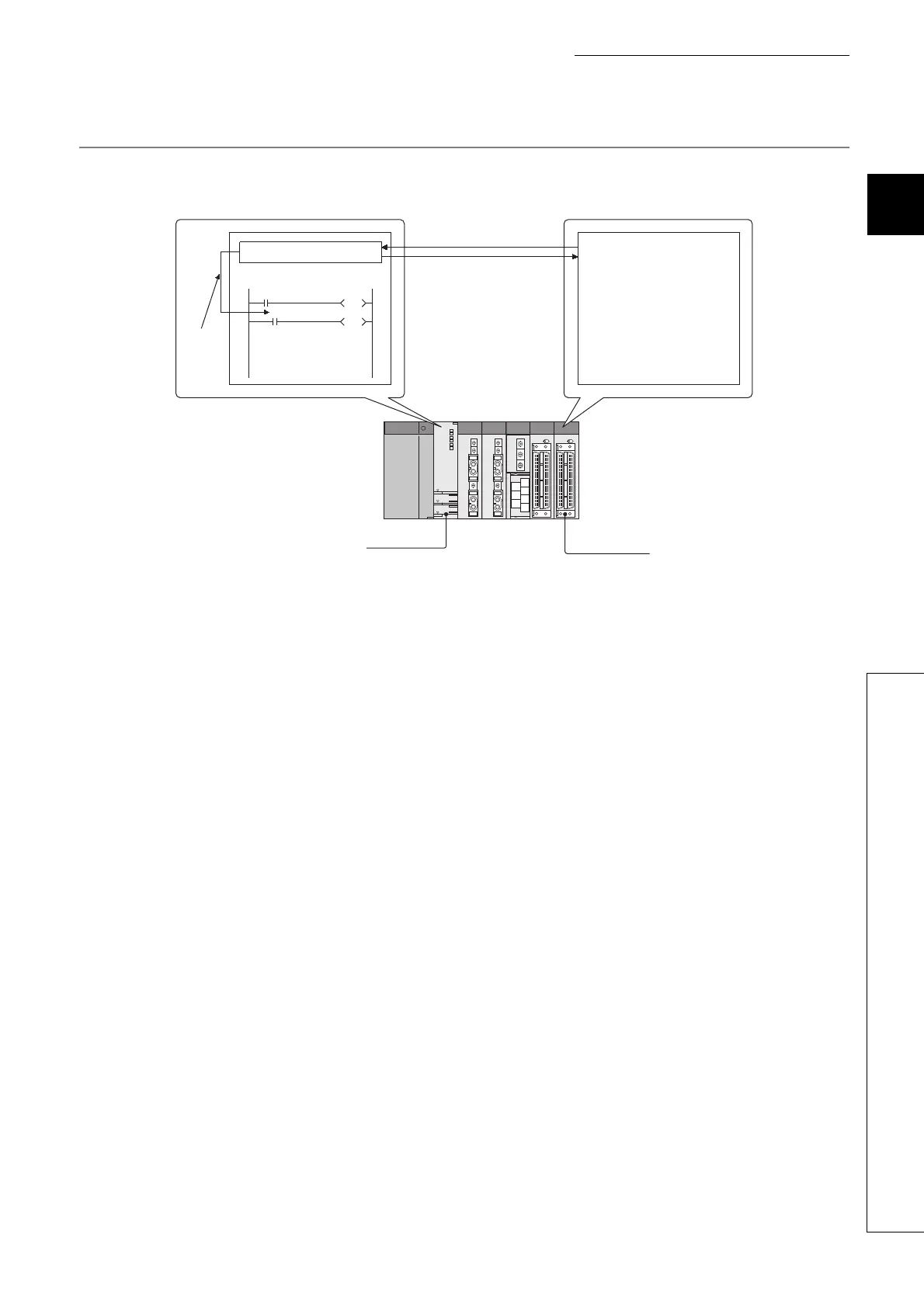
2.8 I/O Processing and Response Delay
2.8.1 Refresh mode
2.8.1 Refresh mode
In a refresh mode, the CPU module batch-performs I/O processing before the start of sequence program operations.
Input module or
output module
Device memory
0
X10
On/off
data
On/off data
Input of on/off data by
input refresh
Output of on/off data by
output refresh
CPU module

Table of Contents

Related product manuals