EasyManua.ls Logo

Mitsubishi Electric MELSEC-Q00U(J)CPU - Page 536

Mitsubishi Electric MELSEC-Q00U(J)CPU
588 pages
Print Icon
To Next Page IconTo Next Page
To Next Page IconTo Next Page
To Previous Page IconTo Previous Page
To Previous Page IconTo Previous Page
Loading...
534
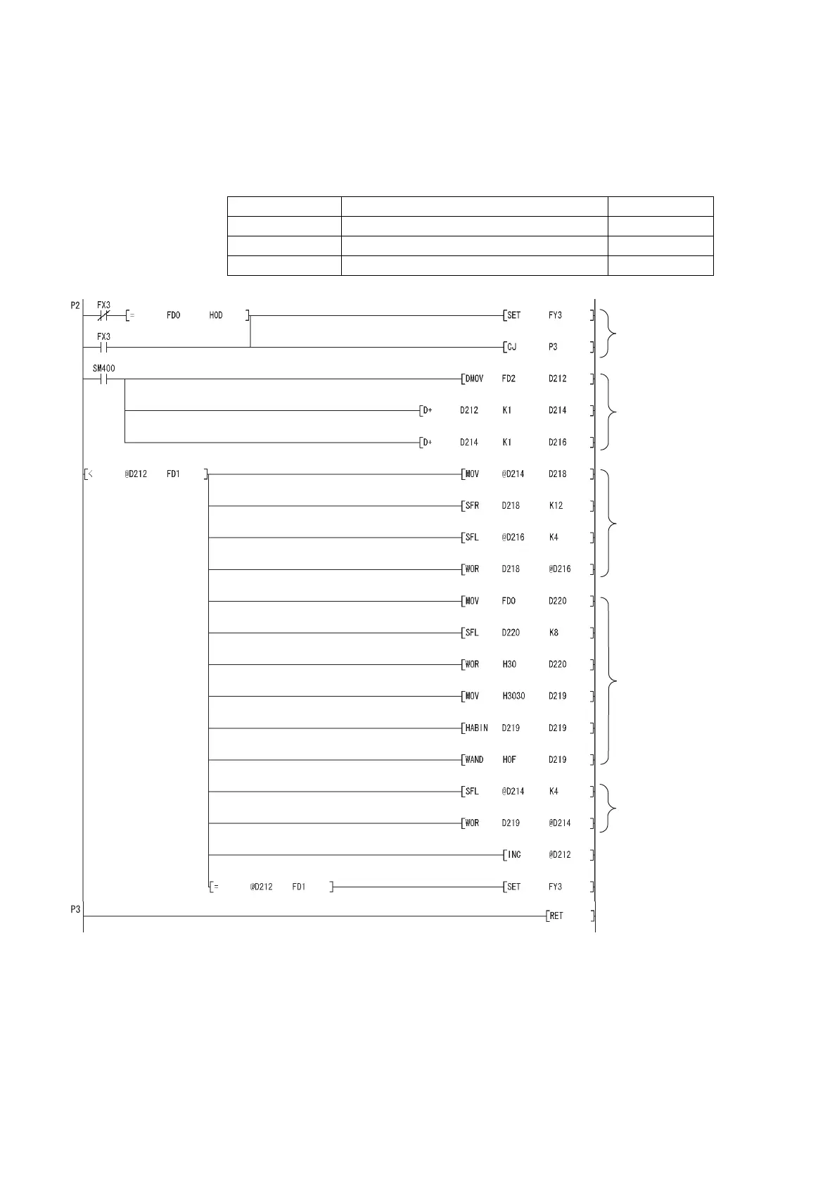
2. Subroutine program
In the subroutine program, ASCII codes specified by an argument are added to the input data area and the
completion status is checked.
Specify the following arguments for the subroutine program.
First argument ASCII code input from the input module (K2Xn) (Input)
Second argument Number of digits to be input (Input)
Third argument Indirect address of the input data area (Input)
Fourth argument Bit device to be turned on when input is completed (Output)
Numeric entry is ended when
the at-completion on signal is
on or 0DH is input.
Addresses of the input data
area are saved in the work
devices.
The 1st to 4th digit numerals
in (input data area +2) are
shifted for one digit to the left.
Numeral entered in ASCII code
is converted into one numeral
in BIN data using the HABIN
instruction.
The 5th to 8th digit numerals
in (input data area +1) are
shifted for one digit to the left
and the converted numeral is
set to the 8th digit.
The number of digits to be input
in (input data area +0) is
incremented by one.
The at-completion on signal
is turned on when the input
processing for specified digits
is completed.

Table of Contents

Related product manuals