EasyManua.ls Logo

Mitsubishi Electric NZ2MFB2-16A - Page 62

Mitsubishi Electric NZ2MFB2-16A
150 pages
To Next Page IconTo Next Page
To Next Page IconTo Next Page
To Previous Page IconTo Previous Page
To Previous Page IconTo Previous Page
Loading...
60
3 SPECIFICATIONS
3.2 Performance Specifications
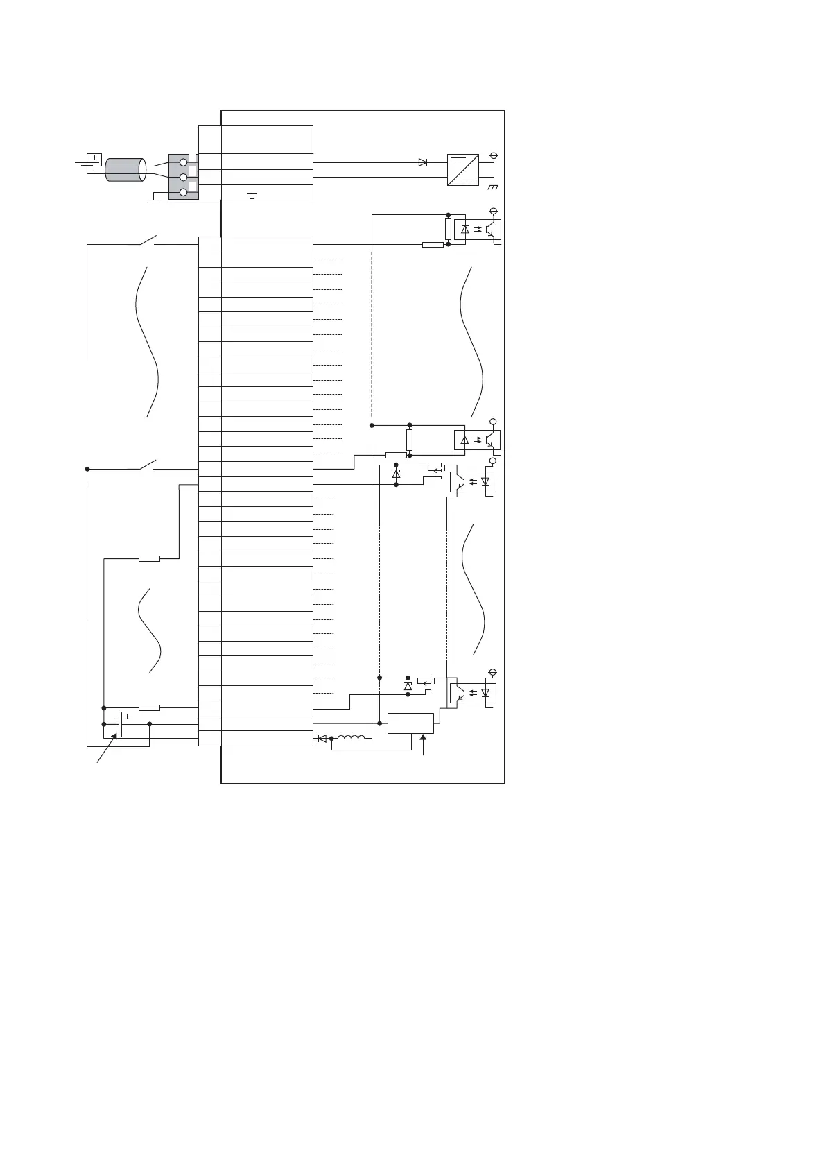
External connection
*1 Only one wire can be connected to a terminal of the terminal block for module power supply and FG or the I/O terminal block. Multiple
wires cannot be connected to a terminal. Connecting two or more wires may cause a poor contact.
FG
1
2
3
1
2
3
1
2
3
4
5
6
7
8
9
10
11
12
13
14
15
16
+24V
24G
17
18
19
20
21
22
23
24
25
26
27
28
29
30
31
32
33
34
X0
X1
X2
X3
X4
X5
X7
X8
X9
XA
XB
XC
XD
XE
XF
X6
Y1F
Y10
Y11
Y12
Y13
Y14
Y15
Y16
Y17
Y18
Y19
Y1A
Y1B
Y1C
Y1D
Y1E
COM+
COM-
Signal name
Pin
No.
Non-insulated
UNIT POWER
CABLE
Terminal block
for I/O
Connector for module
power supply and FG
*1
Module power
supply
Load
Load
External power supply for
the output part and load
power supply (common)
Constant-voltage
circuit

Table of Contents

Related product manuals