EasyManua.ls Logo

Mitsubishi M800S series - Page 45

Mitsubishi M800S series
648 pages
Print Icon
To Next Page IconTo Next Page
To Next Page IconTo Next Page
To Previous Page IconTo Previous Page
To Previous Page IconTo Previous Page
Loading...
M800S/M80/E80 Series Connection and Setup Manual
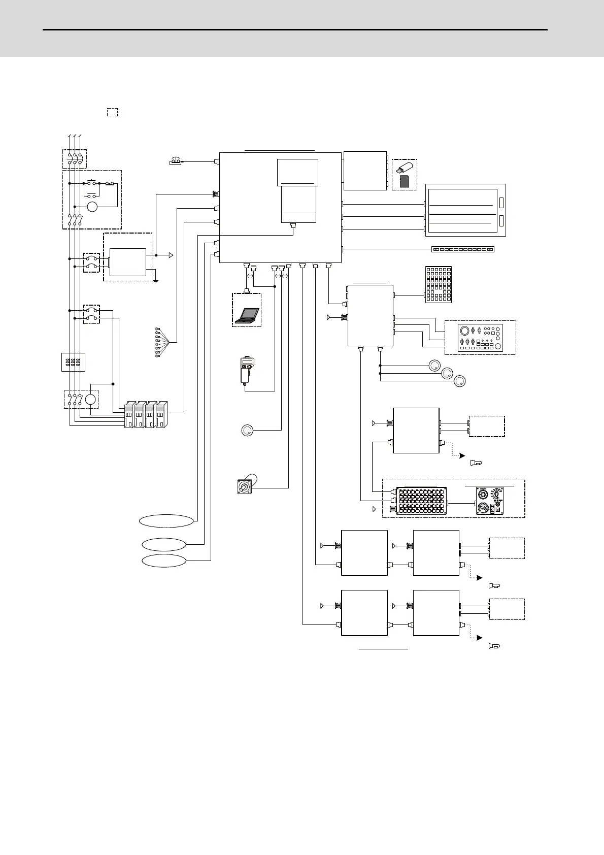
2 General Connection Diagram
8
IB-1501269-J
(2) Operation panel I/O unit: FCU8-DX834
(a) Without smart safety observation
(Note 1) For information on how to connect the drive unit, refer to the drive unit's manual.
(Note 2) For the 8.4-type display unit, TP connector is not used.
(Note 3) For the connection of MITSUBISHI CNC machine operation panel, refer to the chapter "Connection of
MITSUBISHI CNC Machine Operation Panel".
J395/
J396/
G380
FCUA-R050/054
(1ch)
Field Network
L1 L2
L3
D-AL
MC
DCOUT
FG
ACIN
CP/NFB
MC
ON OFF
MC
MC
CP/NFB
FG
Max.
8 points
EMG
J120
J303
J070/071
J303
J100
J030(1ch)
J031(2ch)
EMG
LAN1
SKIP
DCIN
SIO
LAN2
FCU8-EX56x
FCU8-EX70x
FRONT
RIO2ENC CJ71
BL
< J09x>
RIO1
USB_F
SDC_F
USB_B
SDC_B
< J08x>
NCKB
3ch
<G402>
J210
RIO3EXT
MPG
5V : J023(1ch)/024(2ch)/025(3ch)
12V : J020(1ch)/021(2ch)/022(3ch)
J350/351
LCD
MENUKEY
DI:CJ31/33
DO:CJ32/34
RIO1
DCIN
RIO2
J350/351
J350/351
(R2-TM)
G430
J210
FCU8-KB92x FCU8-KB941/KB931
<G460>
J026(1ch)
J027(2ch)
MITSUBISHI CNC Machine Operation Panel
(Note 1)
Drive unit
Control unit
Synchronous feed
encoder
No-fuse breaker
(NFB)
AC reactor
Circuit protector (CP)
Ethernet device
Ethernet device
24VDC
RS-232C
device
Communication
expansion unit
Menu key
Display unit
Memory mediums
Front memory I/F card
Operation panel I/O unit
Machine
control
relay/contact
Remote I/O unit
24VDC
Keyboard unit
Machine operation panel
made by the machine tool builder
Skip signal input
24VDC stabilized
power supply
To the next remote
I/O or terminator
connector
Manual pulse generator
(5V/12V)
Dotted lines indicate the sections prepared by the machine tool builder.
<> Angle brackets indicates attached cable of unit.
Option
Relay Unit
Handy terminal
24VDC
Manual pulse
generator (5V)
J070/071
J070/071
J210
J210
J070/071
DI:CJ31/33
DO:CJ32/34
RIO1
DCIN
RIO2
DI:CJ31/33
DO:CJ32/34
RIO1
DCIN
RIO2
J350/351
J350/351
J070/071
DI:CJ31/33
DO:CJ32/34
RIO1
DCIN
RIO2
DI:CJ31/33
DO:CJ32/34
RIO1
DCIN
RIO2
J350/351
J350/351
(R2-TM)
(R2-TM)
Remote I/O unit
24VDC
Remote I/O unit
24VDC
Remote I/O unit
24VDC
Remote I/O unit
24VDC
To the next remote
I/O or terminator
connector
To the next remote
I/O or terminator
connector
Machine
control
relay/contact
Machine
control
relay/contact
J070/071
J012
RIO3
FCU8-DX834
DI : CG31/33
DO : CG32/34
J350/351
KEYUSB
CJ71
J460/461
DCIN
OPKB
24VDC
TP
< J421>
FCU8-KB04x
FCU8-KB083
FCU8-KB026/KB028/KB029
OPTH1
FCU8-MU5x1/FCU8-MU5x2
FCU8-DX2xx/DX4xx
8.4-type:FCU8-DU121-12
10.4-type:FCU8-DU141-32
15-type:FCU8-DU181-32
(Note 2)

Table of Contents

Related product manuals