EasyManua.ls Logo

Mitsubishi Q2ACPU - Wiring to Module Terminals

Mitsubishi Q2ACPU
570 pages
Print Icon
To Next Page IconTo Next Page
To Next Page IconTo Next Page
To Previous Page IconTo Previous Page
To Previous Page IconTo Previous Page
Loading...
19.
19 - 22
LOADING AND INSTALLATION
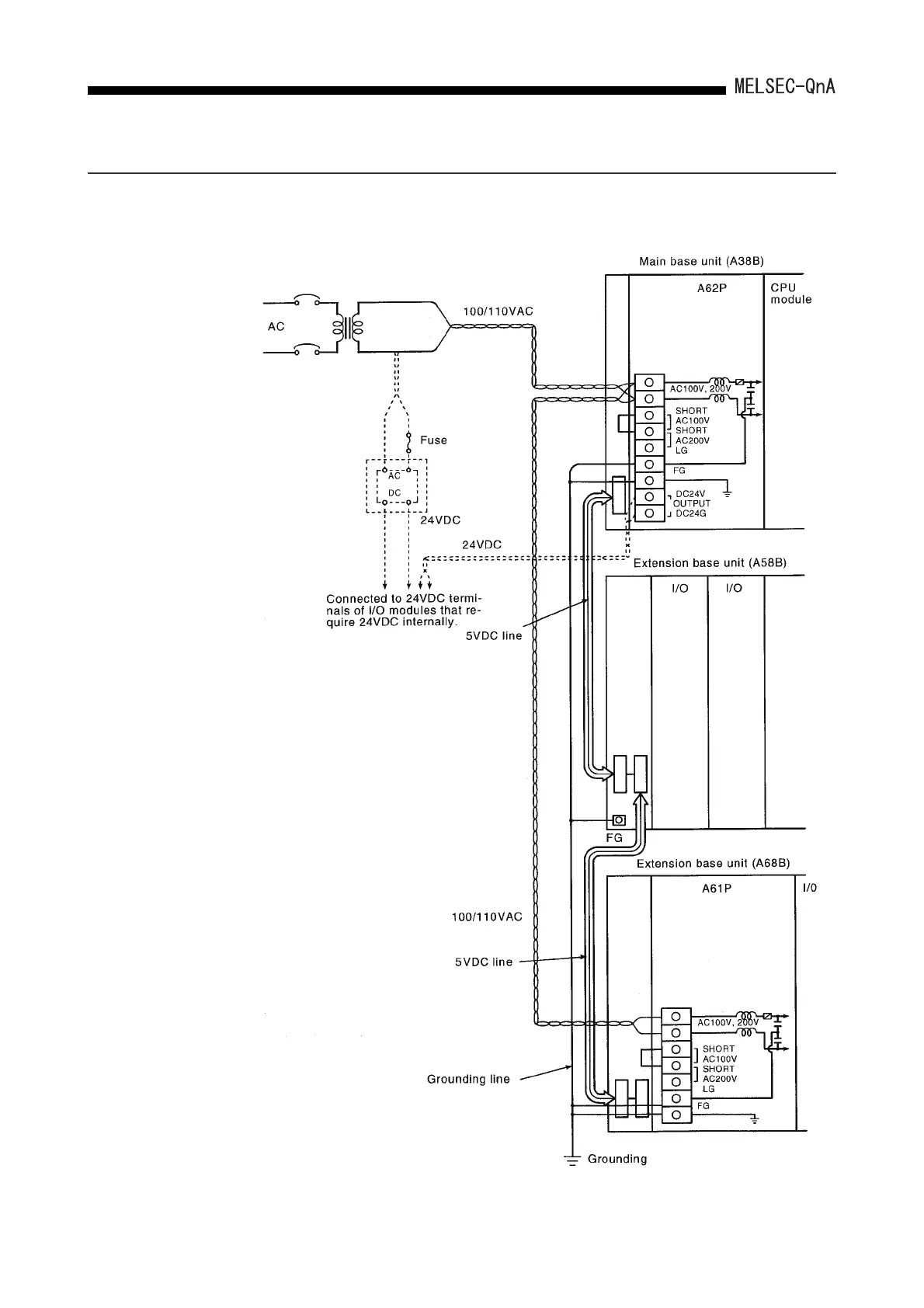
19.7.2 Wiring to module terminals
This section provides an example for wiring power cables and ground wires to the main
and extension bases.

Table of Contents

Related product manuals