EasyManua.ls Logo

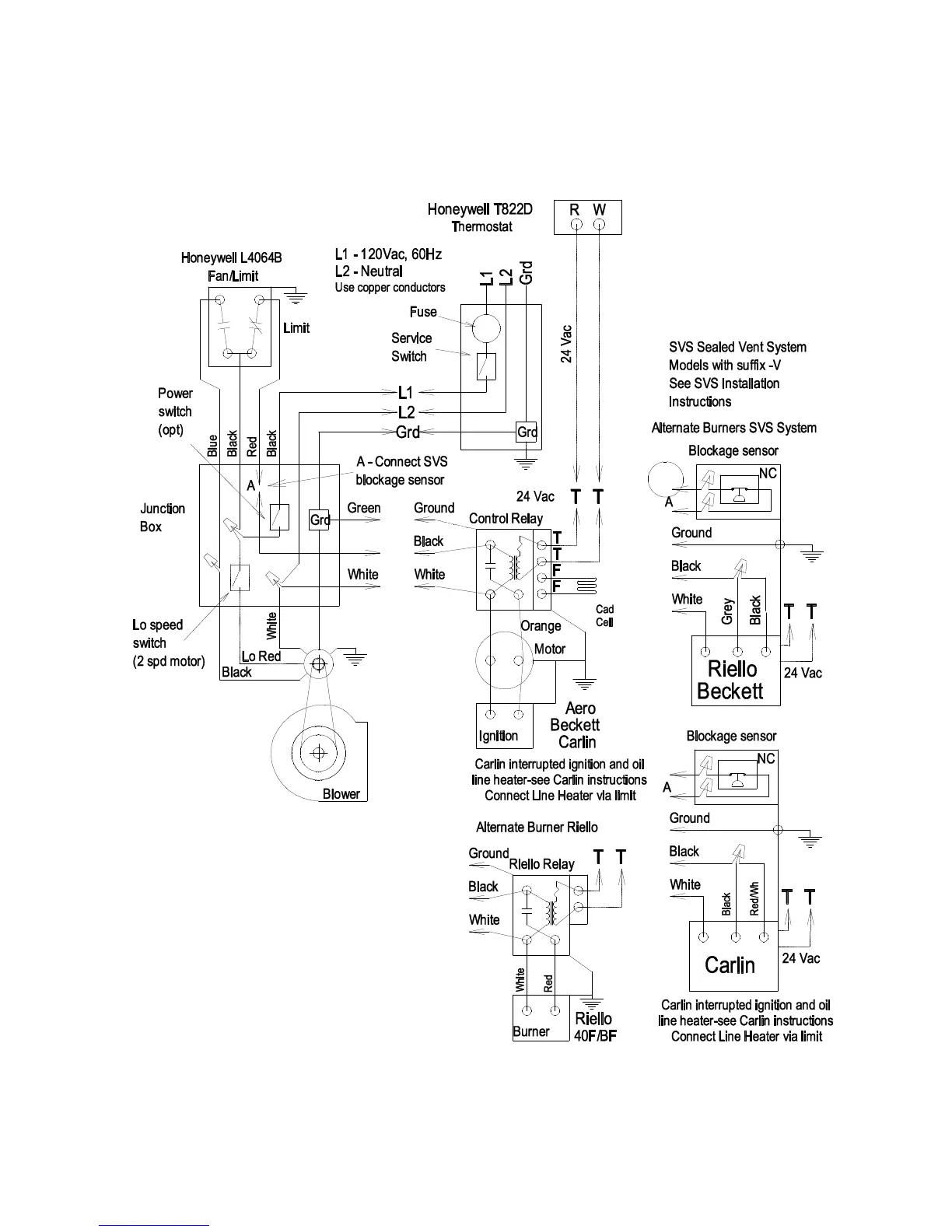
Newmac LFR-75 - Standard Wiring Schematic - Belt Drive

Default Icon
37 pages
Print Icon
To Next Page IconTo Next Page
To Next Page IconTo Next Page
To Previous Page IconTo Previous Page
To Previous Page IconTo Previous Page
Loading...
21
FIG. 15. STANDARD WIRING SCHEMATIC - BELT DRIVE

Table of Contents

Related product manuals