EasyManua.ls Logo

Nibe FIGHTER 600P - Dimensions; Dimensions and Setting-Out Coordinates; Measuring Principle

Nibe FIGHTER 600P
36 pages
Print Icon
To Next Page IconTo Next Page
To Next Page IconTo Next Page
To Previous Page IconTo Previous Page
To Previous Page IconTo Previous Page
Loading...
Dimensions
23
FIGHTER 600P
For the Installer
Klämring Cu-rör
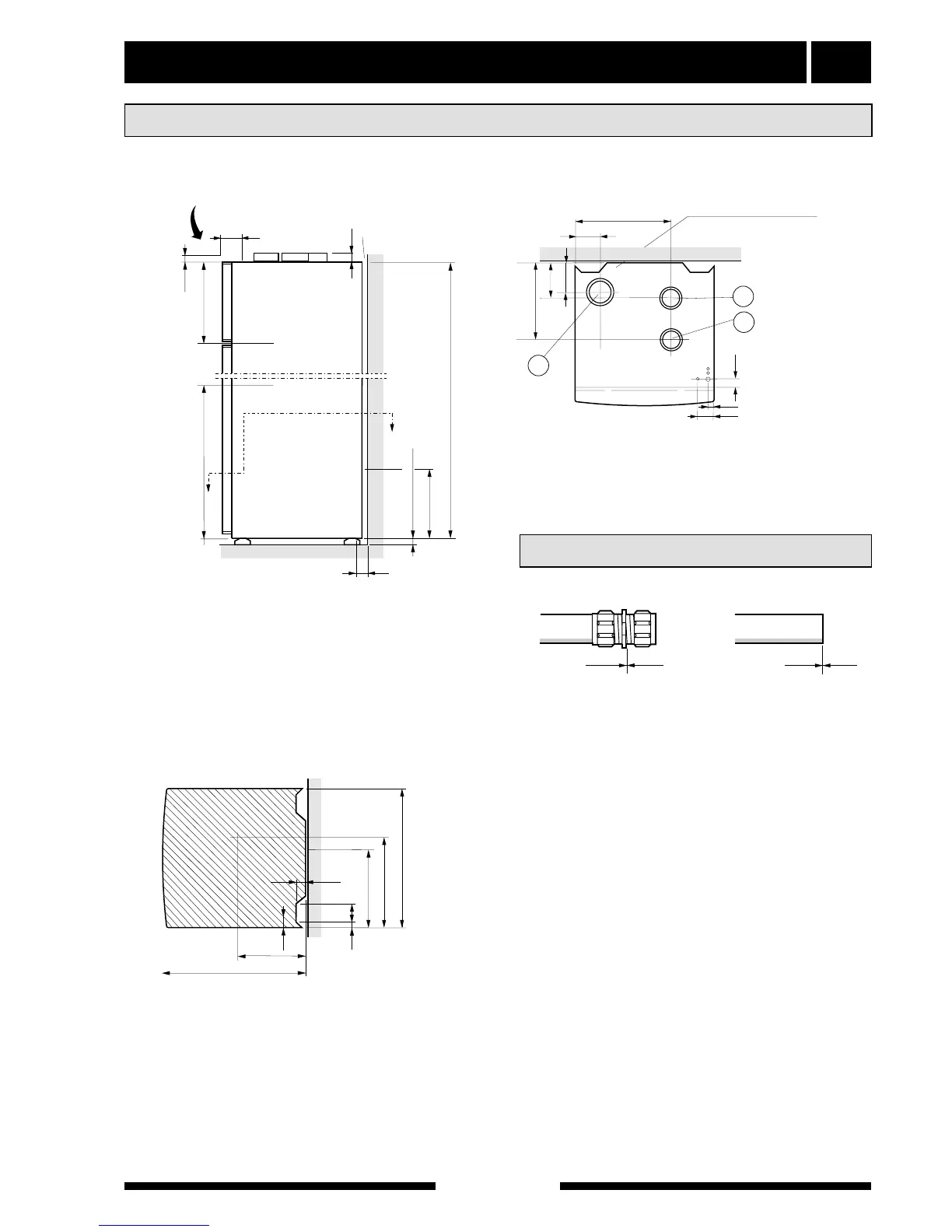
Dimensions and setting-out coordinates
Safety low voltage Ø 16
A
15*
Adjustable 15 40
250
45
Minimum distance
from wall 10 mm
Space required for removal of
upper front acces panel
2110
420
120
374
35
154
131
20
65
35
91
94
90
610
70
When running pipes in the hatched area, make sure
there is space to change the expansion vessel.
B
640
C
355
600
70
35
40
20
A clear space of 500 mm is needed in front
of the heat pump for servicing.
Measuring principle
A, B and C:
See Connection in the List of components.
Compression ring
Copper pipe

Table of Contents

Related product manuals