EasyManua.ls Logo

Nidec Digitax HD M751 Base - Page 24

Nidec Digitax HD M751 Base
116 pages
Print Icon
To Next Page IconTo Next Page
To Next Page IconTo Next Page
To Previous Page IconTo Previous Page
To Previous Page IconTo Previous Page
Loading...
Safety information Product information Mechanical installation Electrical installation Multi axis system design Technical data
24 Digitax HD M75X Series Installation and Technical Guide
Issue Number: 5
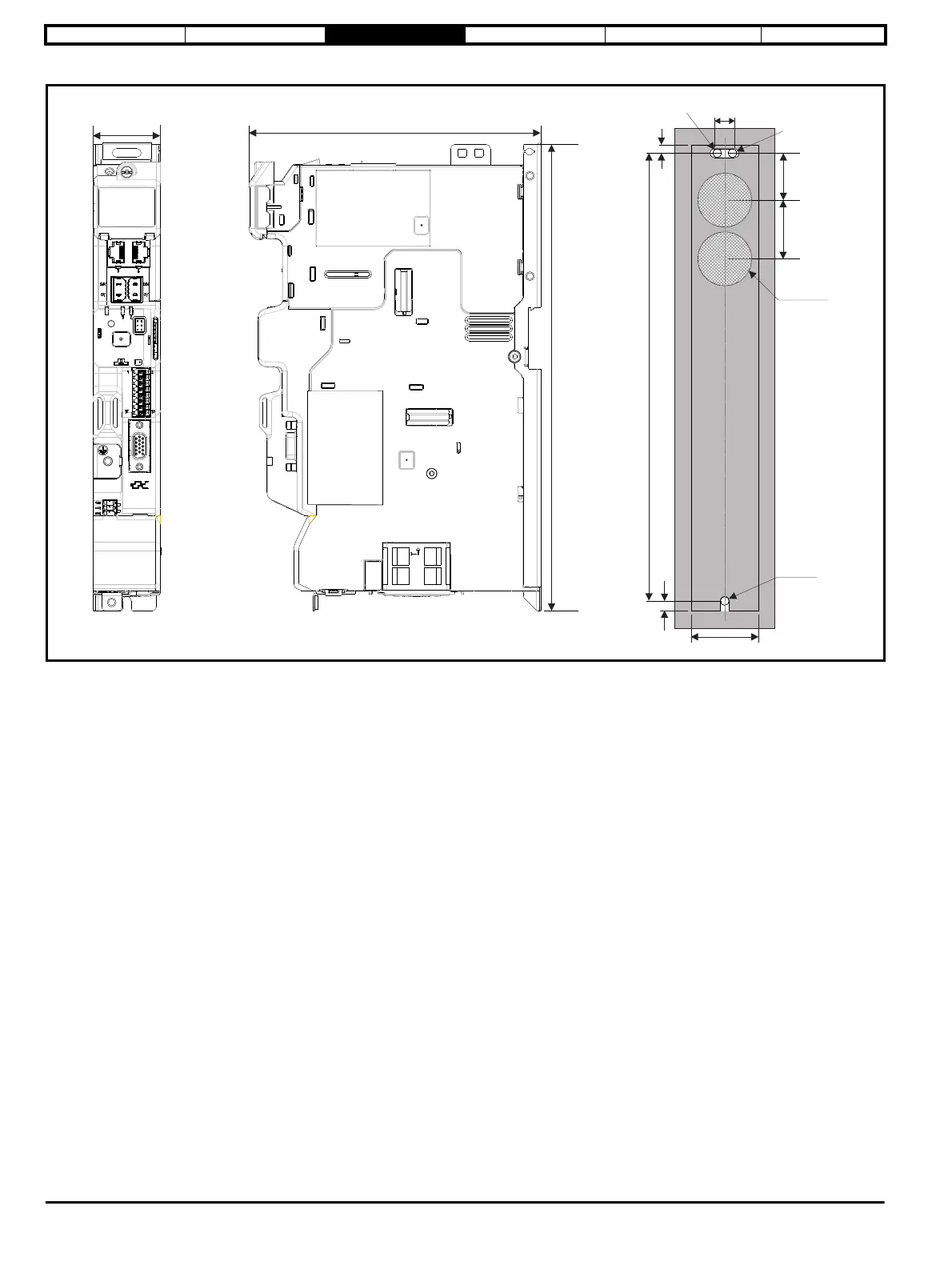
Figure 3-10 Frame 2 dimensions
* Cut outs only required for rear venting; refer to section 3.9 Rear venting on page 28.
40 mm
(1.58 in)
174 mm (6.85 in)
12 mm
(0.47 in)
278 mm (10.95 in)
267 mm (10.51 in)
Æ 5.2 mm
(0.21 in)
5 mm
(0.20 in)
Æ32 mm
(1.26 in)
*
40 mm (1.58 in)
Æ 5.2 mm
(0.21 in)
6 mm
(0.24 in)
28 mm
(1.10 in)
35 mm
(1.38 in)
Æ 5.2 mm
(0.21 in)

Table of Contents

Related product manuals