EasyManua.ls Logo

Nivus OCM PRO CF - Page 48

Nivus OCM PRO CF
194 pages
Print Icon
To Next Page IconTo Next Page
To Next Page IconTo Next Page
To Previous Page IconTo Previous Page
To Previous Page IconTo Previous Page
Loading...
Instruction manual
OCM Pro CF
page 48 OCM Pro CF - Rev. 09 as of 07.06.2016
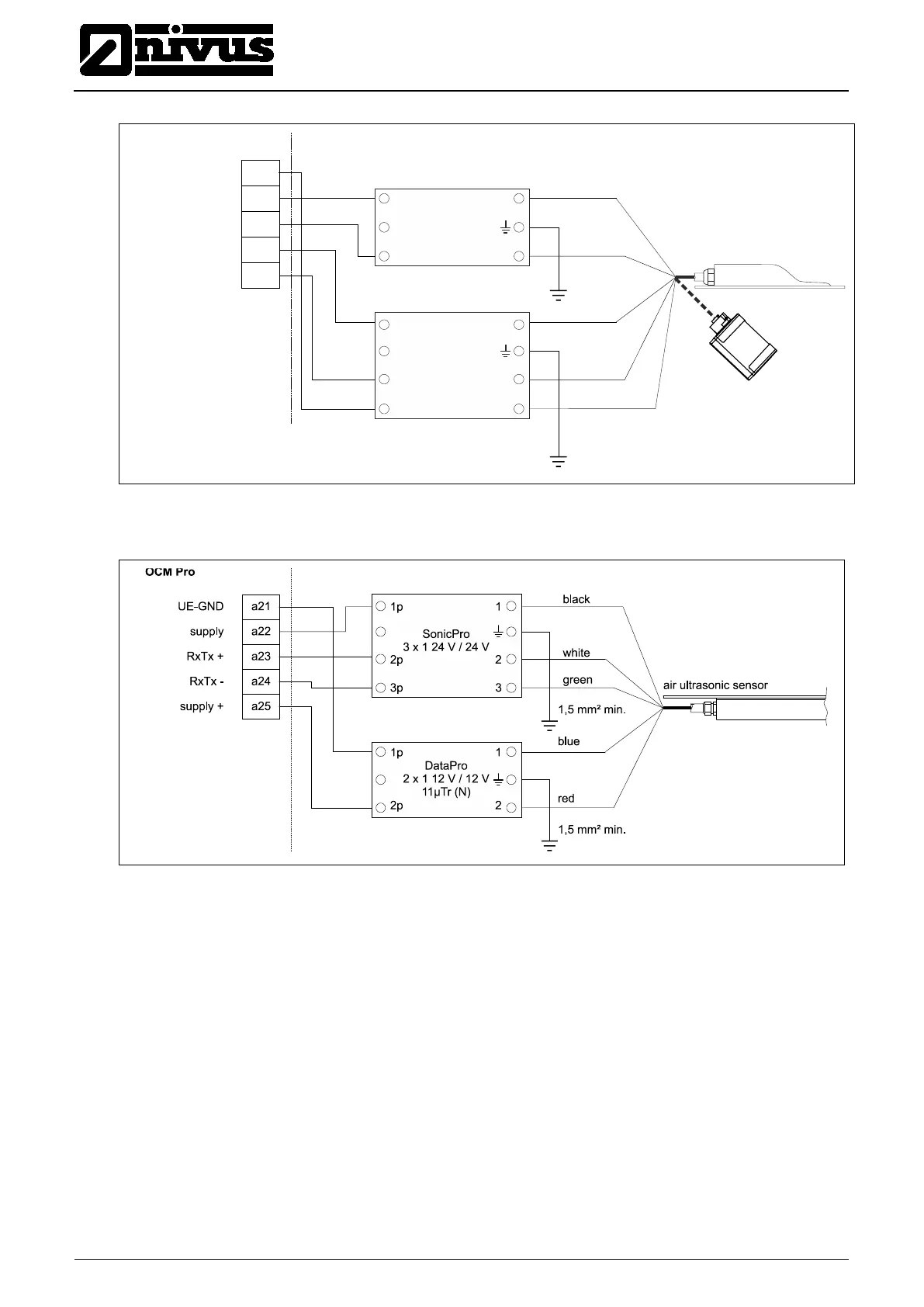
Fig. 7-33 Overvoltage protection water-ultrasonic sensor or electronic
box or OFR radar, panel mount enclosure
Fig. 7-34 Overvoltage protection air-ultrasonic sensor type OCL, panel
mount enclosure
1p
2p
1
2
DataPro
2 x 1 12 V / 12 V
11µTr (N)
1.5 mm² min.
OCM Pro
red
blue
a22
a25
a26
a27
a29
outer shield
supply
RxTx -
+
UE-GND
RxTx +
1.5 mm² min.
white
green
black
1p
2p
1
2
SonicPro
3 x 1 24 V / 24 V
3p 3
water ultrasonic sensor
Radar

Table of Contents

Related product manuals