EasyManua.ls Logo

Omron DEVICENET - Page 146

Omron DEVICENET
163 pages
Print Icon
To Next Page IconTo Next Page
To Next Page IconTo Next Page
To Previous Page IconTo Previous Page
To Previous Page IconTo Previous Page
Loading...
125
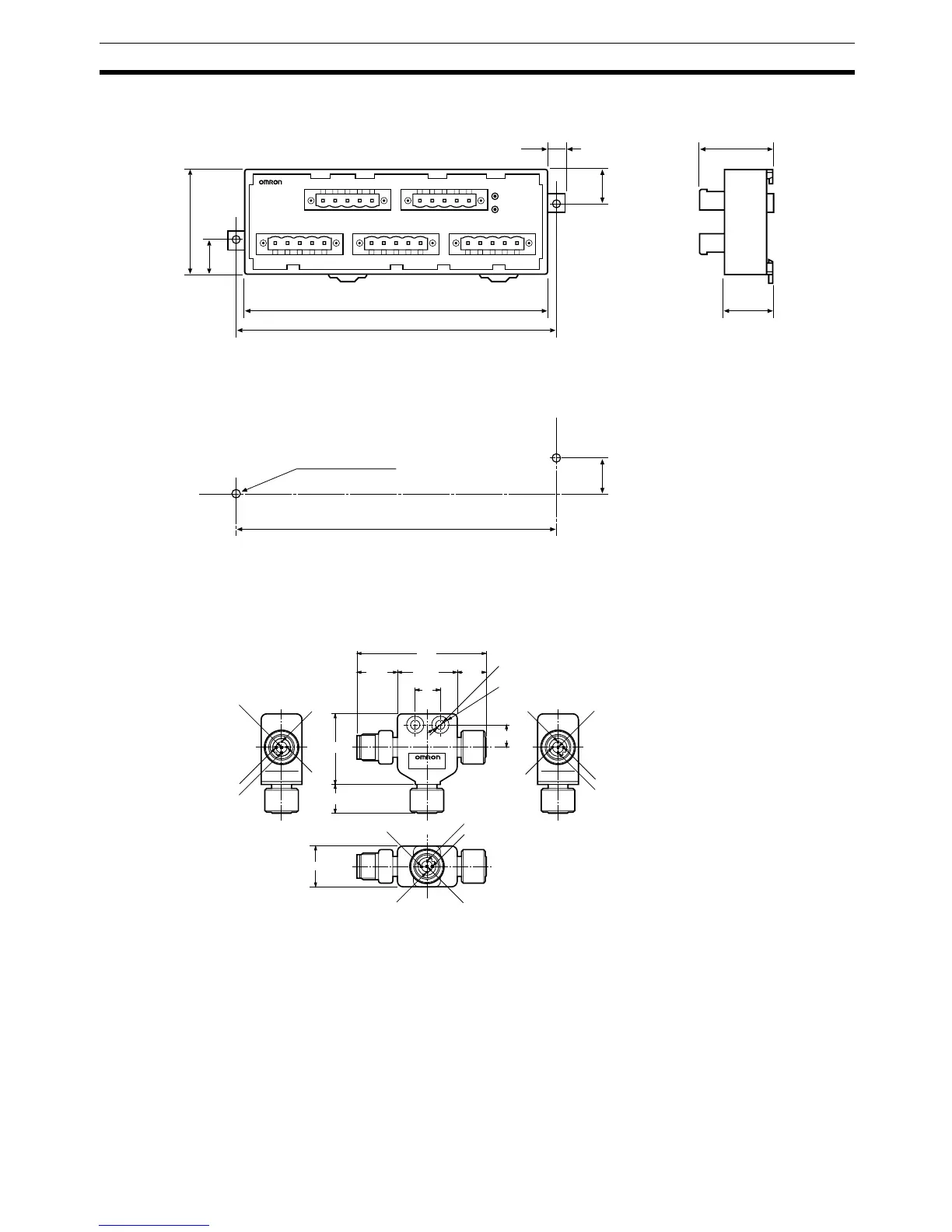
Dimensions of Connectable Devices Appendix B
DCN1-4C and DCN1-4R T-branch Taps (Three Branches)
T-branch Connectors
DCN2-1 T-branch Connector
142±0.3
135
14±0.3
15.5
21
31
DCN1-4
T-PORT TAP
45
142
7
15.5
Two, 3.5 dia. or M3
Mounting holes or taps
All dimensions are in mm.
(56)
24.717.7
32.1
13.6
13.6
12
10
CN0
CN1
CN2
2
1
5
2
2
1
5
4
3
1
4
35
4
3
4.5 dia.
18
8 dia. (Depth 2 mm)
All dimensions are in mm.

Table of Contents

Related product manuals