EasyManua.ls Logo

Omron DEVICENET - Page 145

Omron DEVICENET
163 pages
Print Icon
To Next Page IconTo Next Page
To Next Page IconTo Next Page
To Previous Page IconTo Previous Page
To Previous Page IconTo Previous Page
Loading...
124
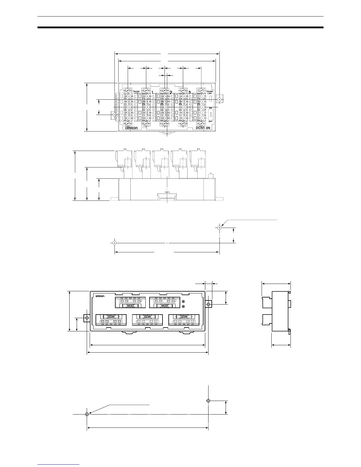
Dimensions of Connectable Devices Appendix B
DCN1-3NC T-branch Tap (Three Branches)
DCN1-3C T-branch Tap (Three Branches)
97
90
17 17 17
17
2.3
45
14
46
30.9
20.5
97±0.1
14±0.1
Two, 3.5±0.1-dia. or M3
Mounting holes or taps
All dimensions are in mm.
142±0.3
135
14±0.3
15.5
21
31
DCN1-3
T-PORT TAP
45
142
7
15.5
Two, 3.5 dia. or M3
Mounting holes or taps
All dimensions are in mm.

Table of Contents

Related product manuals