EasyManua.ls Logo

Opera Q9 - Identification of the Q9 Ducted Insert Components

Opera Q9
52 pages
Print Icon
To Next Page IconTo Next Page
To Next Page IconTo Next Page
To Previous Page IconTo Previous Page
To Previous Page IconTo Previous Page
Loading...
14
ENGLISH
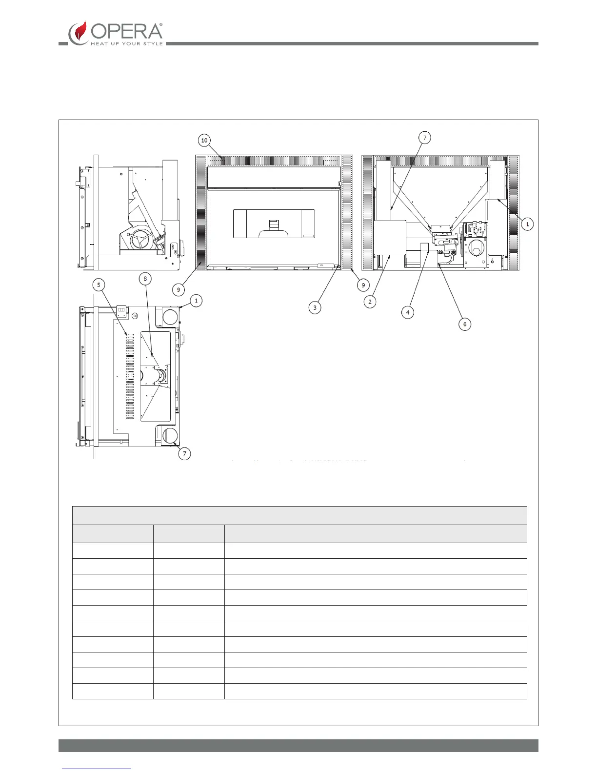
IDENTIFICATION OF THE Q9 DUCTED INSERT COMPONENTS
The Q9 DUCTED stove/insert is made up from the parts indicated in Figure 1
Figure 1 Parts that make up the stove/insert - mod. Q9 DUCTED
PARTS LIST
ELEMENT QUANTITY DESCRIPTION
1 1 Ducted air conveyor box
2 1 Smoke outlet conveyor box
3 1 Chimney insert door
4 1 Primary air box
5 1 Upper plate
6 1 Primary air tube
7 1 Smoke exhaust outlet pipe
8 1 Pellet tank
9 2 Side protective frame
10 1 Upper protective frame