EasyManua.ls Logo

Panasonic DMR-ES35VP

Panasonic DMR-ES35VP
118 pages
To Next Page IconTo Next Page
To Next Page IconTo Next Page
To Previous Page IconTo Previous Page
To Previous Page IconTo Previous Page
Loading...
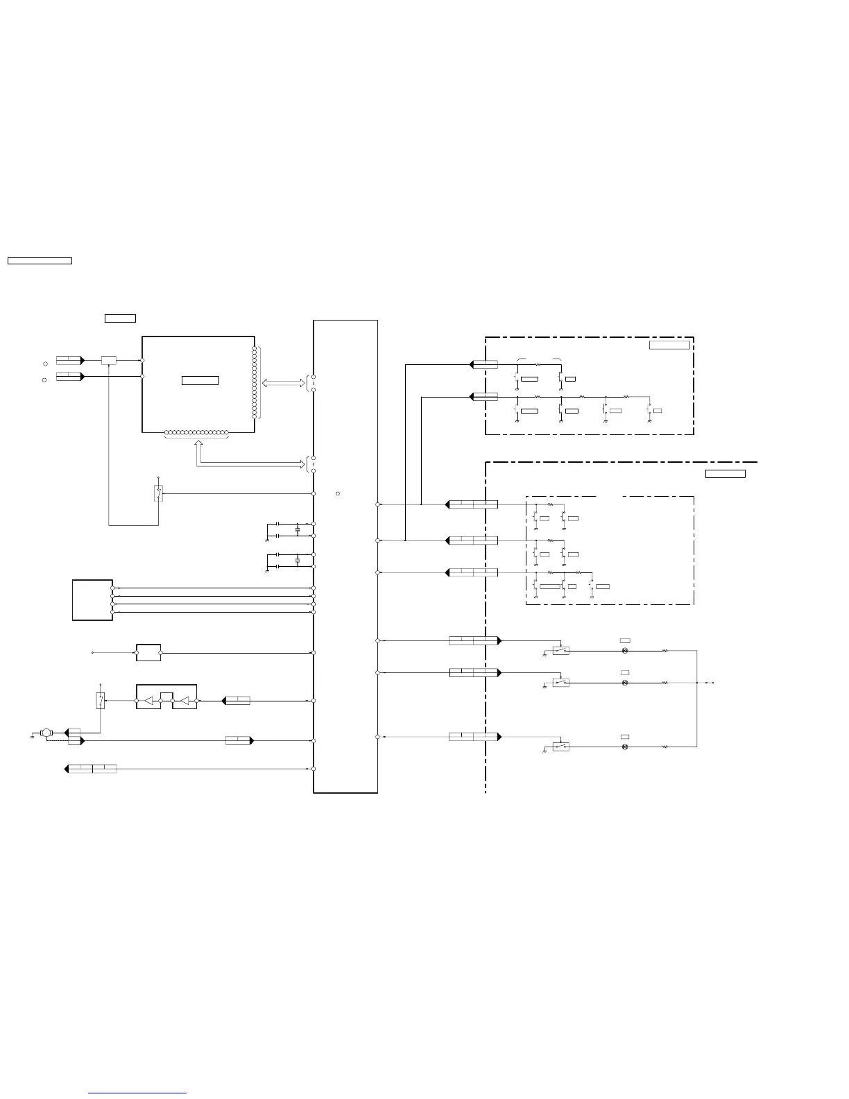
13.4. Analog Timer Block Diagram
3
FILAMENT ON
49
64 SEG16
SEG1
42
48 DIG7
DIG1
IC37001
(RESET)
IC6001
IC7501
< OPERATION KEY >
S7706
SELECT
S7711
D2V
S7705
STOP
S7704
PLAY
S7707
OPEN/CLOSE
S7703
REC
S7702
V2D
SCLK
(FAN MOTOR DRIVE)
Q37001
X SW +12.5V
QR7502
3
P37001
1
P37001
13
(FAN MOTOR DRIVE)
75
FAN MOTOR
M
(SYSTEM CONTROL/SERVO/TIMER)
VTR S-DATA CLK
VTR S-DATA IN
VTR S-DATA OUT
VTR TIMER CS
70
69
68
15
SST+6V
DMR-ES35VP/PC
Analog Timer Block Diagram
DUB LED
DVD LED
16KEY IN1
17KEY IN2
18KEY IN3
66
86
9
8
11
P6003P31903
9
DISPLAY
DRIVE
DVD
D7703
(DVD LED DRIVE)
Q7703
6
P31903 P6003
11
DUB
D7706
(DUBBING LED DRIVE)
Q7706
5
PS31901
VHS LED 68 VHS
D7702
(VHS LED DRIVE)
Q7702
3
PP7701
18
17
14
P6001 P31905
PS31901 PP7701P6001 P31905
PS31901 PP7701P6001 P31905
PS31901 PP7701P6001 P31905
PS31901 PP7701P6001 P31905
PS31901 PP7701P6001 P31905
13
12
11
TIMER DISPLAY
VDD
FAN LOCK88
OUT
FAN PWM
94
MAIN P.C.B.
FRONT R P.C.B.
(TIMER CPU)
DP7501
34 4
411GA
381GA
351GA
111GB
81GB
51GB
332G
312G
293G
273G
264G
234G
225G
205G
186G
166G
147G
127G
P16
P1
32
P2
30
P3
28
P4
25
P5
24
P6
21
P7
19
P8
17
P9
15
P10
13
P11
10
P12
9
P13
7
P14
6
P15
F-
F+
1
45
Q7501
1
P6001P31905
1
P6001P31905
2
P.C.B.
DIGITAL
TO
IC11720-
DIGITAL I/F P.C.B.
FROM
20
L
T11301-
DIGITAL I/F P.C.B.
FROM
6 TBUS CLK
15
P59001 P37101
15
P31904 P6002
IC7503
X SW+5.8V
VOUT 12 RESET8
32
S-DATA CLOCK
VTR
S-DATA IN
VTR
31
30
S-DATA OUT
VTR
TIMER CS IN
VTR
83
X7501
11 10MHz IN
10MHz OUT10
X7502
13 32KHz IN
32KHz OUT14
< OPERATION KEY >
FRONT L P.C.B.
1
4
PP4801
PP4801
PS6001
PS6001
REWCH DOWN
S7802S7801
S7806 S7803
POWER CH UP
S7813 S7810
EJECT FF
DMR-ES35VP / DMR-ES35VPC
66

Table of Contents

Related product manuals