EasyManua.ls Logo

Panasonic DMR-ES35VP

Panasonic DMR-ES35VP
118 pages
To Next Page IconTo Next Page
To Next Page IconTo Next Page
To Previous Page IconTo Previous Page
To Previous Page IconTo Previous Page
Loading...
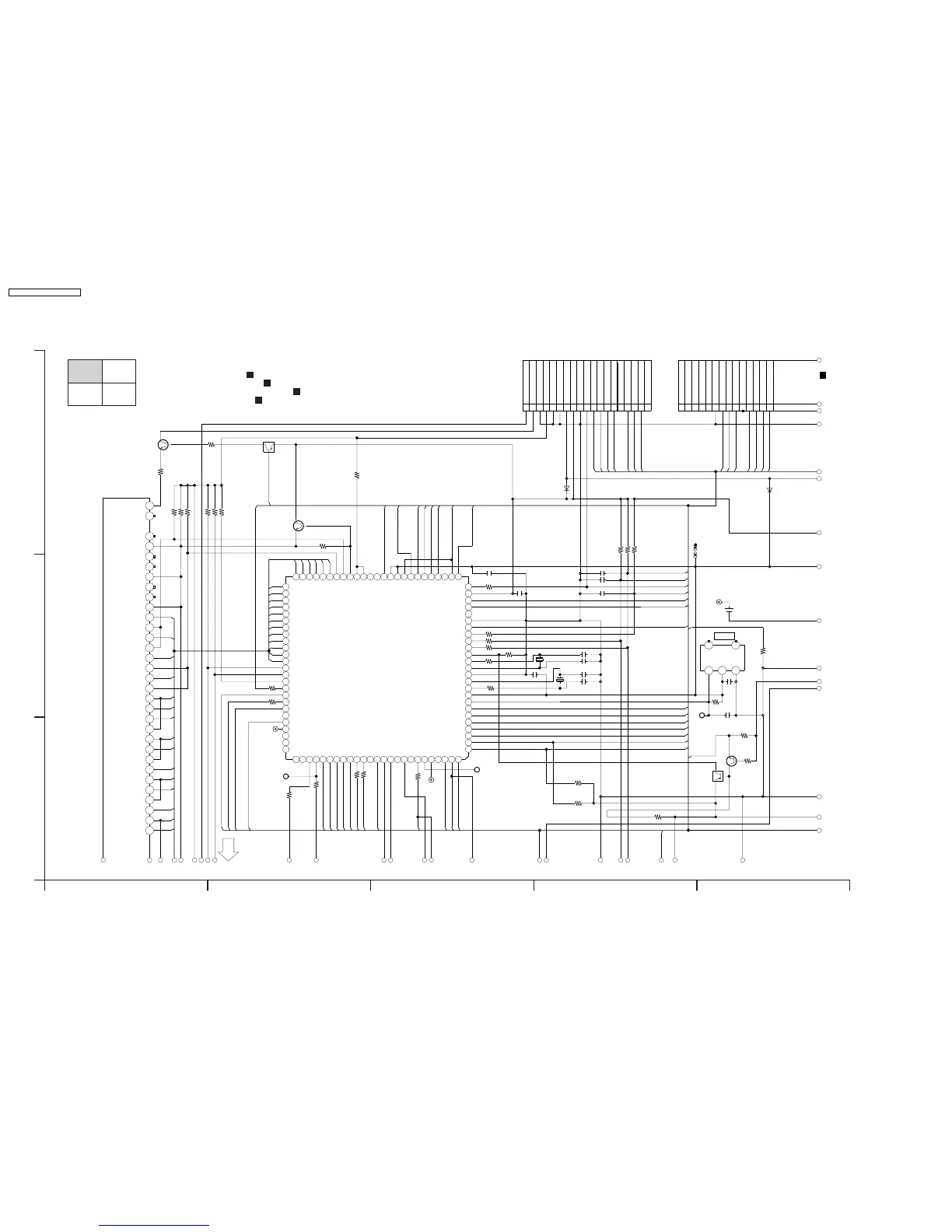
14.12. Syscon/Servo/Timer (1/4) Section (Main P.C.B.(3/4)) Schematic Diagram (S)
BACD E F G H I J K L N O P Q S T U V W X
1
2
3
4
5
6
7
8
9
10
11
12
13
14
15
RM
G5
G7
S3
S2
S1
S5
S6
S4
G6
Q7502
G4
10K
R7529
R7503
47K
UNR511100L
QR7502
FL_ON_L
D7503
D7502
XINTM
DVD_LED
XFWE
HDD_PFAIL
SBMTP
SBPTM
XMPREQ
XINTP
KEY2
VHS_LED
SD_LED
DUB_LED
KEY1
KEY3
14
8
9
11
12
10
2
3
1
5
7
6
4
13
K1KB19AA0032
P6002
C75030.01
8200R7519
8200R7518
VWJ0795=5
TW7501
R7520 8200
KEY1
C75020.01
C75010.01
KEY2
18
16
14
8
9
11
12
10
2
3
1
5
7
6
4
13
15
17
19
K1KB19AA0032
P6001
TO P31905
DIGITAL I/F P.C.B.
(DIGITAL I/F SECTION)
TO P31904
DIGITAL I/F P.C.B.
(DIGITAL I/F SECTION)
VHS_RXD
VHS_TXD
VHS_CLK
XINTP
HDD_PFAIL
C7514
0.1
220R7523
0.1C7508
DI_PON_H
AFC
IR
XMPREQ
XINTM
PFAIL_L
R7522
10K
CL7501
JCLK
FANPWM1
POFF_L3
CL7502
S14
R7501
100
100R7542
DR_PON
VHS_LED
L3_H
R7546 47K
TL7504
SD_LED
DVD_LED
R7502 100K
FAN_LOCK1
VHS_CS
RST_UART
SW_UART
SYS_PFAIL
R7512 100
R7511 100
SYNC_DET
S8
S10
S12
S13
S11
S9
S7
DUB_LED
4700
R7536
C7520 0.1[KB]
10K
R7535
XFWE
R7517
270K
TL7507
C7511 18P
18P
C7510
C7504
0.1
10K
R7543
10K
R7544
B1GDBFNN0001
QR7503
10K
R7534
Q7503
R7504 0
C7509 0.1
UARTP2M
UARTM2P
X7501
H0D100500006
SCLK
JC_PON
SBPTM
FL_ON_L
SBMTP
TL7501
XTMUTE
CL7524
N4BCT50A0005
B7501
CR2354-1GUF
22PC7512
15PC7513
R7525
0
3
1
2
4
5
C0EBE0000457
IC7503
SYS_PFAIL
R7505 0
100R7515
4700
R7516
100R7514
100R7513
X7502
H0A327200108
KEY3
L12_SWIDE_A
797776 78
49 474850
74
71
72
67
68
56
55
58
57
52
51
54
53
65
66
61
62
59
60
64
63
70
69
73
75
10
8
7
9
12
11
99
100
9594 96 9790 9189 9392 98
4
6
5
2
1
3
81 8280 86 87 888483 85
45
19
17
15
14
16
18
43
23
21
20
22
41
24
39 37 3335 34 2930 27 262832 313638
25
404244
13
46
MN67788RD
IC7501
2SD132800L
Q7501
47KR7530
R7527
VWJ0795=5
ERJ3GEYJ103V
R7537
47KR7532
47K
R7540
47KR7533
47KR7528
47KR7531
DR_SAVE
S2
S1
G5
S6
S5
G4
S3
S4
S9
G6
S7
S8
S11
G7
S10
232116 1714 15 19 201813 22 4439353126 2724 25 3028 29 3432 33 3836 37 4240 41 45
DP7501
A2BD00000155
SD_SEL
PSAVEH
HOT_PLUG
S12
S9
S7
S6
S8
S11
S10
NC
S15
S16
BS_H
L3_H
S13
S14
S4
S5
S3
DR_SAVE
DUB_LED
VHS_LED
DR_P_ON_H
G7
S1
DIPON2
WRITE_TX
VPP
DI_P_ON_H
L123_SWIDE
L123_SWIDE2
AFC
BS_LEVEL
[26]XMPREQ
IR
F+
GND
F-
VHS_TXD
VREF+[5V]
VDD3[5V]
HDD_PFAIL_L
HDMI_CEC_OUT
HDMI_P_ON_H[5V]
VHS_RXD
VDD2[5V]
VHS_CLK
XINTP_OUT
XINTM_OUT
GND
GND
GND
IR
KEY3
KEY1
KEY2
GND
AD5V
SST6V
or
-29V
XFWE
XINTM
HDMI_MONI
HOT_PLUG
SBPTM
SBMTP
XMPREQ
XINTP
HDD_PFAIL
VHS_LED
SD_LED
DVD_LED
HDD_LED
DUB_LED
SD_SEL_LED
HDMI_CONT
HDMI_P5_ON_H
HDMI_P3_ON_H
IR_TXD
BBR_RXD
IR_CLK
FANPWM1
[99]JCLK
[100]XTMUTE
[98]DIPON4
FANLOCK1
FANLOCK2
[27]XINTM
TBUS_CLK
JC_PON_H
TBUS_TXD
FL_ON_L
WRITE_RX
TBUS_RXD
[97]HDMI3VREG
128Hz
FANPWM2
RESET
GND
MMOD
32KOUT
KEY3
KEY1
KEY2
[28]HDMI_IN
[29]PFAIL_L
VDD[5V]
X_RESET
20MHZOUT
32KIN
20MHZIN
TEST2
SW_UART/IR_BUSY
SYS_PFAIL_H
VHS_CS/AF_CS
[76]BOOTHTER_H
[78]TV_ANT_POW_L(IN)
[77]BS_ANT_POW_H(OUT)
RST_UART/IR_CS
[50] S2
G4
G1
NC
NC
G3
G2
G6
G5
SYNCDET
SD_LED
HDD_LED
DVD_LED
F+
P5
4G
P8
5G
P9
5G
P7
6G
6G
7G
P6
4G
P10
P11
NC
NX
NC
P1
NC
P4
P3
2G
3G
3G
2G
P2
NC
NC
1GA
1GA
1GA
PFAIL_L
NOTE:DO NOT USE THE PART NUMBER SHOWN ON THIS DRAWING FOR ORDERRING.
THE CORRECT PART NUMBER IS SHOWN IN THE PARTS LIST,AND MAY BE
SLIGHTLYDIFFERNT OR AMENDED SINCE THIS DRAWING WAS PREPARED.
54321
C
B
A
E
TO
SYSCON/SERVO/
TIMER SECTION
(3/4)
LOCATION MAP
1/4 2/4
3/4 4/4
DMR-ES35VP/PC
Syscon/Servo/
Timer(1/4) Section
(Main P.C.B.(3/4))
Schematic Diagram(S)
V:Video Section:(Page: )
C
A:VHS Audio Section:(Page: )
D
S:Syscon/Servo/Timer Section:(Page: )
I:I/O Tuner Section:(Page: )
E
F
DMR-ES35VP / DMR-ES35VPC
82

Table of Contents

Related product manuals