EasyManua.ls Logo

Panasonic DMR-ES35VP

Panasonic DMR-ES35VP
118 pages
To Next Page IconTo Next Page
To Next Page IconTo Next Page
To Previous Page IconTo Previous Page
To Previous Page IconTo Previous Page
Loading...
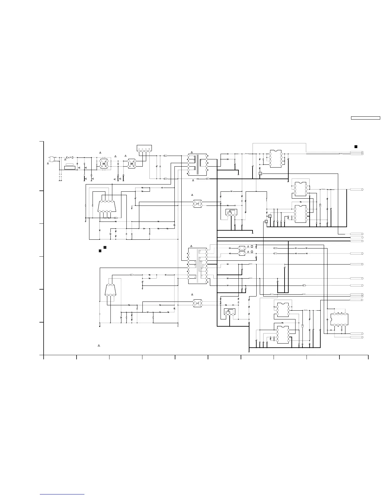
14.2. Power Supply Section (Power & Digital I/F P.C.B.(1/2)) Schematic Diagram (P)
C11311
ECJGVB1H392K
0[22]
R11803
100[G][22]
R11708
27M[36]
R11802
D1BFR0270001
R11709
2400[G][22]
MAZ73000BC
D11303
C11308
ECJGVB1H102K
20K[G][22]
R11308
R11309
1K[G][22]
R11322 10[22]
D11305
B0AADM000003
R11321
10[22]
C11109
#F1B2G1020002
B0JCNG000003
D11402
D11401
B0JCNG000003
R11506
2400[22]
1K[22]
R11509
R11507
1K[22]
J0JHC0000048
LB11103
9 11 12108
23 16 5 4
G4D2A0000267
T11101
4
3
1
2
#B3PBA0000402
Q11101
B3PBA0000237
R11508
$[22](10K)
R11219 10[22]
R11208 10[22]
B0AAGR000003D11102
LB11102
J0JKB0000003
J0JKB0000003
LB11101
B0AADM000003
D11210
F2B2E2210011C11108
9100[22]
R11220
C11214
ECJGVB1H222K
R11222
360[G][22]
D11203
MA2J11100L
R11223
6800[G][22]
D11212
MAZ80910ML
B0BC9R000008
LB11702 J0JHC0000048
LB11701 J0JHC0000048
GND
D11723
D11721
B0EAKL000062
-29V
D11720
B0EAKL000062
D11722
DR_PON_H
MGND
F2A1A6810022
C11709
X_SW12R5V
X_SW6V
D11705
B0JAME000025
B0AADM000003
D11704
1
2
IP11703
K5H1022A0011
1
2
K5H1022A0011
IP11702
F2A1C1210017
C11705
B0JCNG000003D11701
D11706 B0JAQE000004
L11701
G0A100HA0023
F2A1H5600018
C11706
F2A1A2220055
C11701
C11401
F2A1C2220080
0.1[KB][22]
C11512
D11505 MA2J11100L
MECHA_12R5V
G0A220GA0026
L11601
DR12V
R11606
15K[0.5%][22]
910[0.5%][22]
R11607
C11613 F2A1C4710079
C11601
F1K1C106A062
J0JHC0000048
LB11601
DR5V
G0A150ZA0041
L11603
G0A150ZA0030
R11511
10K[22]
12
5 6
3
4
Q11602 B1DHDD000022
L11401
G0A100H00025
F2A1C5610006
C11403
R11602
4700[22]
QR11601
UNR521300L
F2A1C1210017
C11604
6 75
24 3
8
1
B1DHED000008
Q11601
4700[22]
R11601
C11618
F1J1C105A091
15M[36]D1BFR0150001
R11605
UNR521300L
QR11603
C11608
180P[22]
R11513
300[G][22]
G0A100HA0023
L11602
R11514
9100[G][22]
10K[22]
R11610
ECJ2VB1E473K
C11513
R11510
56K[G][22]
UNR521300L
QR11602
F1J1C105A091C11605
C11607 0.1[KB][22]
R11608
5100[0.5%][22]
C11606 0.1[KB][22]
6 75
24 3
8
1
C0DBAZZ00131IC11601
C11610 ECJGVB1H103K
D11602 B0JCPD000021
R11604
51K[22]
F2A1C1210017C11603
R11512
2400[G][22]
A R
3 2
C
1
IC11502
#C0DAEMB00003
C0DAEJC00006
390[22]
R11701
R11702
1K[22]
4
3
1
2
Q11301
#B3PBA0000402
B3PBA0000237
R11703 3300[22]
R11323
12K[22]
D11306
MAZ80820ML
B0BC8R100004
R11325
5600[G][22]
200[G][22]
R11324
MA2J11100L
D11304
C11310
F2A1V6800002
1813 1411 12 1715 16 19
4 35 29 78 6
20
T11301
G4D2A0000268
UNREG36V
D3R8V
G0A220ZA0030
G0A220ZA0041
L11801
12
5 6
3
4
Q11801 B1DHDD000022
VWJ0795=5
L11705
G0A100HA0023
L11704
D_P_OFF_L1
D12V
22K[22]
R11704
C11712
ECJ2VB1E473K
A R
3 2
C
1
C0DAEJC00006
#C0DAEMB00003
IC11701
C11711
0.1[KB][22]
F2A1C5610006
C11703
2400[G][22]
R11706
820[G][22]
R11707
F2A1H5600018
C11704
L11703 G0A100HA0023
F2A1C1210017
C11707
J0JHC0000048
LB11703
D11703 B0AADM000003
C11205
ECJGVB1H102K
C11204
0.1[KB][22]
13K[G][22]R11203
MAZ73000BC
D11201
10K[22]R11202
R11201 47K[22]
1500[G][22]
R11204
J0JHC0000048
LB11201
C11212
220P[22]
321 4
B0EBKT000008
D11101
ECQU2A223MLA
#ECQU2A223MLC
C11106
C11104
#F1B2G4710001
#F1B2G4710001
C11105
2
3 4
1
L11102
#G0B832L00001
G0B832F00003
F2A1E1010103
C11213
2 4
1 3 5
IC11301
C0DACZH00030
C11309
330P[22]
LB11301
J0JHC0000048
10K[22]
R11307
C11805
180P[22]
0.1[KB][22]C11803
C11802 0.1[22]
0.1[KB][22]C11804
R11801
51K[22]
F+
F-
R11805
5600[0.5%][22]
C11721
F1J1C105A091
ECJGVB1H103K
C11722
C11806
ECJGVB1H103K
D11801 B0JCPD000021
C11801
F2A1C1210017
LB11801
J0JHC0000048
22K[0.5%][22]
R11804
R11807 470[22]
F1J1C105A091C11720
67 5
2 43
8
1
IC11720 C0CBCBD00048
F2A1A6810022C11807
6 75
24 3
8
1
C0DBAKG00007IC11801
C11102
#F1B2G1010001
1
2
P11101
K2AB2B000008
ZA11101
EYF52BCY
K3GE1ZA00010
ERZVA5V471
VA11101
ZA11102
EYF52BCY
K3GE1ZA00010
4962
1 375
C0DACZH00031
IC11201
MA2J11100L
D11205
C11201
ECKW3A472KRP
4700P[1KV]
F1B3A4720013
C11211 ECJGVB1H102K
2
3 4
1
G0B832F00003
L11101
#G0B832L00001
C11101
#ECQU2A683MLC
ECQU2A683MLA
C11103
#F1B2G1010001
ECKW3A272KRP
F1B3A2720001
C11307
2700P[1KV]
IF
ON[H]
NC
NC
IF
IF
IF
or
V IN
IF
IF
IF
IF
IF
IF
IF
IF
IF
CN
NC
GND
IF
IF
V OUT
or
A
N
or
or
or
or
or
ZA11301 VSC5606
IC11202 RADIATION
ZA11302 XYN3+J8FJ
DD
V5
VIN
VREF
CC
G
FB
S
CS
EXT
GND
DD
or
B1
P1
P2
PT
B2
V5
D
G
EXT
S
D
CSVIN
or
FB
CC
GND
VREF
D
DS
D
S
S
D
D
G
D
or
Ns12
PT
P1
B1
B2
P2
H
H
or
250V2A
or
or
or
K5D202BK0005
K5D202BLA013
F11101
ZA11202
ZA11201
SEE THE
SERVICE MANUAL
(UL RECOGNIZED)
or
IC11201 RADIATION
XYN3+J8FJ
VSC5606
or
or
DMR-ES35VP/PC
Power Supply Section
(Power & Digital I/F P.C.B.(1/2))
Schematic Diagram(P)
10987654321
F
E
D
C
B
A
SLIGHTLY DIFFERNT OR AMENDED SINCE THIS DRAWING WAS PREPARED.
THE CORRECT PART NUMBER IS SHOWN IN THE PARTS LIST,AND MAY BE
NOTE:DO NOT USE THE PART NUMBER SHOWN ON THIS DRAWING FOR ORDERRING.
A
WHEN REPLACING ANY OF THESE COMPONENTS.ONLY THE SAME TYPE.
COMPONENTS IDENTIFIED WITH THE MARK HAVE THE SPECIAL CHARACTERISTICS FOR SAFETY.
IMPORTANT SAFETY NOTICE:
P:Power Supply Section:(Page: )
A
IF:Digital I/F Section:(Page: )
B
DMR-ES35VP / DMR-ES35VPC
71

Table of Contents

Related product manuals