EasyManua.ls Logo

Panasonic DMR-ES35VP

Panasonic DMR-ES35VP
118 pages
To Next Page IconTo Next Page
To Next Page IconTo Next Page
To Previous Page IconTo Previous Page
To Previous Page IconTo Previous Page
Loading...
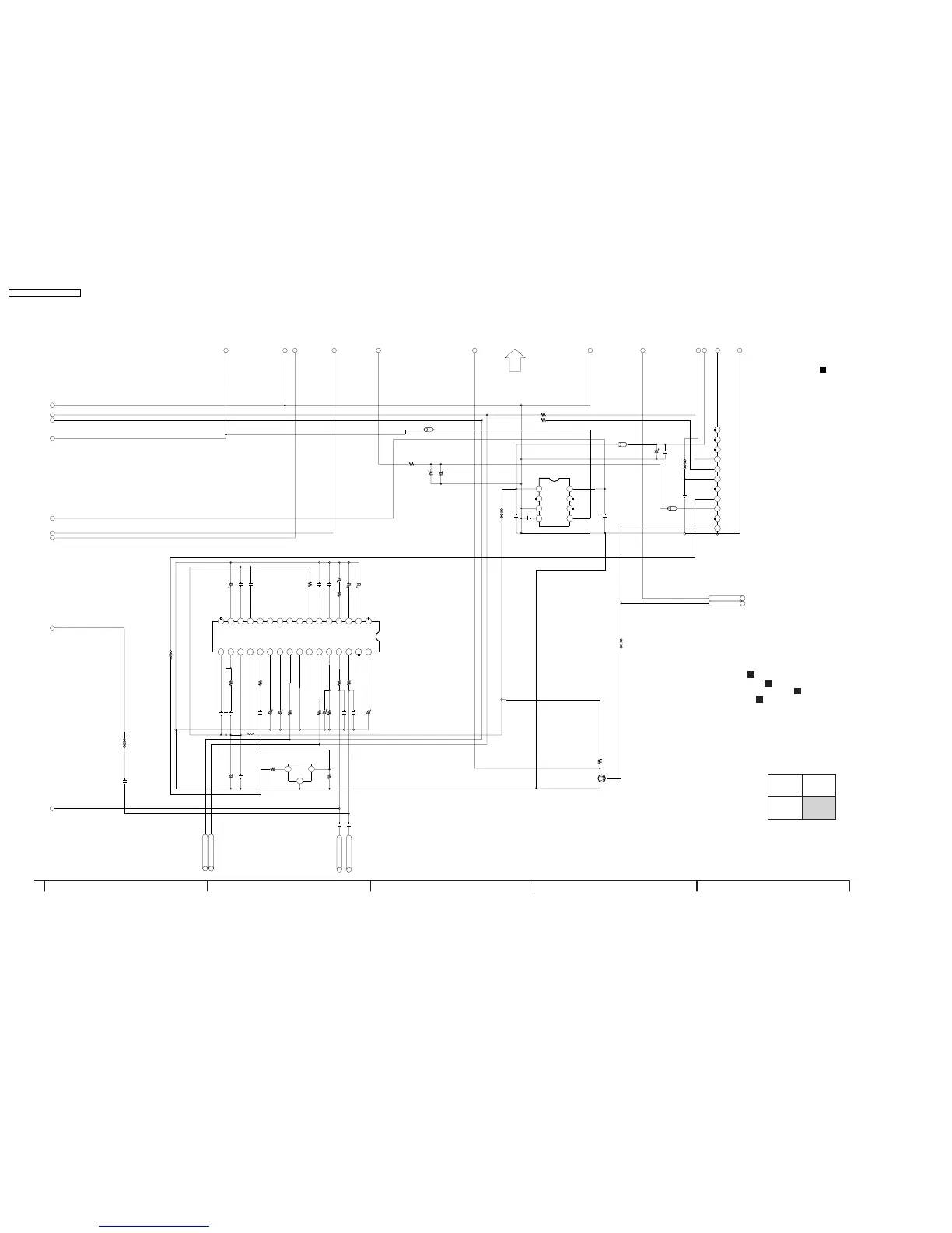
14.19. I/O Tuner Section (4/4) (Main P.C.B.(4/4)) Schematic Diagram (I)
TUN_V_IN1
CH_SW
ERJ3GEY0R00V
LB7413
C7423
0.01
K7407
VWJ0795=5
10 8916 141518 17 1113 12
C7421
6V47 0.01
C7422
C7405 F1H0J1050010
K7405
VWJ0795=15
0.01
C7406
LB7407 ERJ3GEY0R00V
C7318 50V2R2
0.022[KB]C7317
C7316 0.022[KB]
R7306
330[22]
C7315 50V2R2
R7307 180K
R7309
330
330
R7308
C7314 50V2R2
R7305 330[22]
1K
R7311
R7310
0
31
2
EFCT4R5MS5W
FL7301
TUN_R
TUN_L
1u
C7322
1u
C7321
I2C5CK
I2C5DT
C7319
6V47
C7310 0.1
C7311 0.22
ECJ1VB1C105K
C4821
K4812
C7309
0.33
C7320
0.01
0
R7304
C7313
50V4R7
1000PC7312
R7303
3300
L7301
VWJ0795=5
R7401 1K[D]
0
R7302
C7308
16V10
C7307 50V3R3
C7306
50V3R3
K7302 VWJ0795=5
C7302
0.033
C7301
50V2R2
R7301 10K
2625 27 2817 18 20 22 24232119
8 7 5616 15 10 91314 1112 3 12
30 3231
4
29
AN5832SA-E1V
IC7301
0.022C7304
0.1[KB]
C7305
C7303 0.1
B0BA03000015
D7401
MAZ4300NMF
C7401
50V1
R7410 0[22]
R7411 0[22]
K7411
6 75
24 3
8
1
C0CBCDD00006
IC7402
ECJ2FB1A105KC7408
ERJ3GEY0R00V
LB7403
R7415
680
2SB1218A0L
Q7401
SDA
SCL
AUDIOOUT
SIFOUT
BTL+30VIN
IF OUT
AFTOUT
[US]
S
V
VIDEOOUT
NC
NC
BT
NC
VIN
CONT
NC
or
NC
VO
CN
NC
MUTE
NC
AGCSW
MODE
WBDET
FOMO
GND
SOP-8D
SDA
PE
GND
VCC
PLL
NC
SIFREF
SCL/ SPEFIL
I2C/PARA
STEREO
REF
NOISEDET
L+RREF
SAPDET
SIF/BB
PILOTDET
INPUT
NC
ROUT SPETIME
L-R_REF
LOUT
WBTIME
SPEDET
AGCDET
S
S
A
A
AC AD AE AF AG AH AI AJ AK AL AM AN
1
2
3
4
5
6
7
8
9
NOTE:DO NOT USE THE PART NUMBER SHOWN ON THIS DRAWING FOR ORDERRING.
THE CORRECT PART NUMBER IS SHOWN IN THE PARTS LIST,AND MAY BE
SLIGHTLYDIFFERNT OR AMENDED SINCE THIS DRAWING WAS PREPARED.
109876
F
TO
A/V I/O SECTION
(2/4)
LOCATION MAP
1/4 2/4
3/4 4/4
DMR-ES35VP/PC
I/O Tuner(4/4) Section
(Main P.C.B.(4/4))
Schematic Diagram(I)
V:Video Section:(Page: )
C
A:VHS Audio Section:(Page: )
D
S:Syscon/Servo/Timer Section:(Page: )
I:I/O Tuner Section:(Page: )
E
F
DMR-ES35VP / DMR-ES35VPC
90

Table of Contents

Related product manuals