EasyManua.ls Logo

Panasonic DMR-ES35VP

Panasonic DMR-ES35VP
118 pages
To Next Page IconTo Next Page
To Next Page IconTo Next Page
To Previous Page IconTo Previous Page
To Previous Page IconTo Previous Page
Loading...
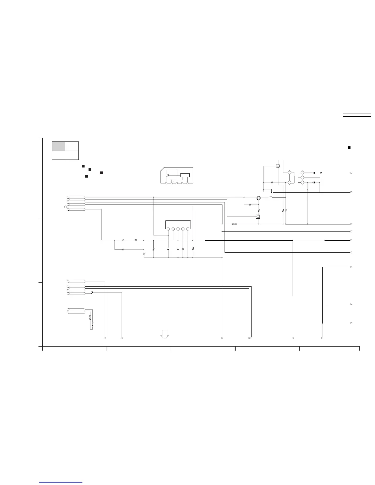
14.7. Video (1/4) Section (Main P.C.B.(1/4)) Schematic Diagram Schematic Diagram (V)
AB C D E F G
C4086
33n
10K
R4081
470P[KB]
C4082
EP_H
OSD_V_OUT
IIC_DATA
SVHS_H
SVHS_PB_H
IIC_CLK
AVR_L
ERJ3GEY0R00V
K3031
K3032
R4082 3300
G0C221KA0065
L4081
X_SW_5R8V
BIAS_H
2SB0710A0L
Q4084
JC_PON
JC_REG5V
R4087
2200
K4001
VWJ0795=5
C3042
6V47
F1J0J106A014
C3043
$(2K[F])
R3024
421 3 5
C0CBCDG00006
IC3002
6800
R3010
2700
R3005
R3006
1K
D3001
1u[KB]C3051
C3052
F2A0J470A245
2200
R4086
DREC_H
REF_GND
QR4082
UNR521300L
R4083
0
Q4082
2SD0602ARL
C4084 1800P
C4081 22n
C4083
6V47
4
321
6
G2A472C00003
T4081
S
S
S
S
S
S
S
V OUT
SI
S
S
S
S
S
V IN
ON H
NC
GND
9
8
7
6
5
4
3
1
2
NOTE:DO NOT USE THE PART NUMBER SHOWN ON THIS DRAWING FOR ORDERRING.
THE CORRECT PART NUMBER IS SHOWN IN THE PARTS LIST,AND MAY BE
SLIGHTLYDIFFERNT OR AMENDED SINCE THIS DRAWING WAS PREPARED.
54321
C
B
A
C
TO
VIDEO SECTION
(3/4)
LOCATION MAP
1/4 2/4
3/4 4/4
DMR-ES35VP/PC
Video(1/4) Section
(Main P.C.B.(1/4))
Schematic Diagram(V)
V:Video Section:(Page: )
C
A:VHS Audio Section:(Page: )
D
S:Syscon/Servo/Timer Section:(Page: )
I:I/O Tuner Section:(Page: )
E
F
H
IC
GNDNC
1
VOUT:ONVIN
2345
IC3002
JC +5V SWITCHING REG.
IC-DETAIL BLOCK DIAGRAM
DMR-ES35VP / DMR-ES35VPC
77

Table of Contents

Related product manuals