EasyManua.ls Logo

Panasonic DMR-ES35VP

Panasonic DMR-ES35VP
118 pages
To Next Page IconTo Next Page
To Next Page IconTo Next Page
To Previous Page IconTo Previous Page
To Previous Page IconTo Previous Page
Loading...
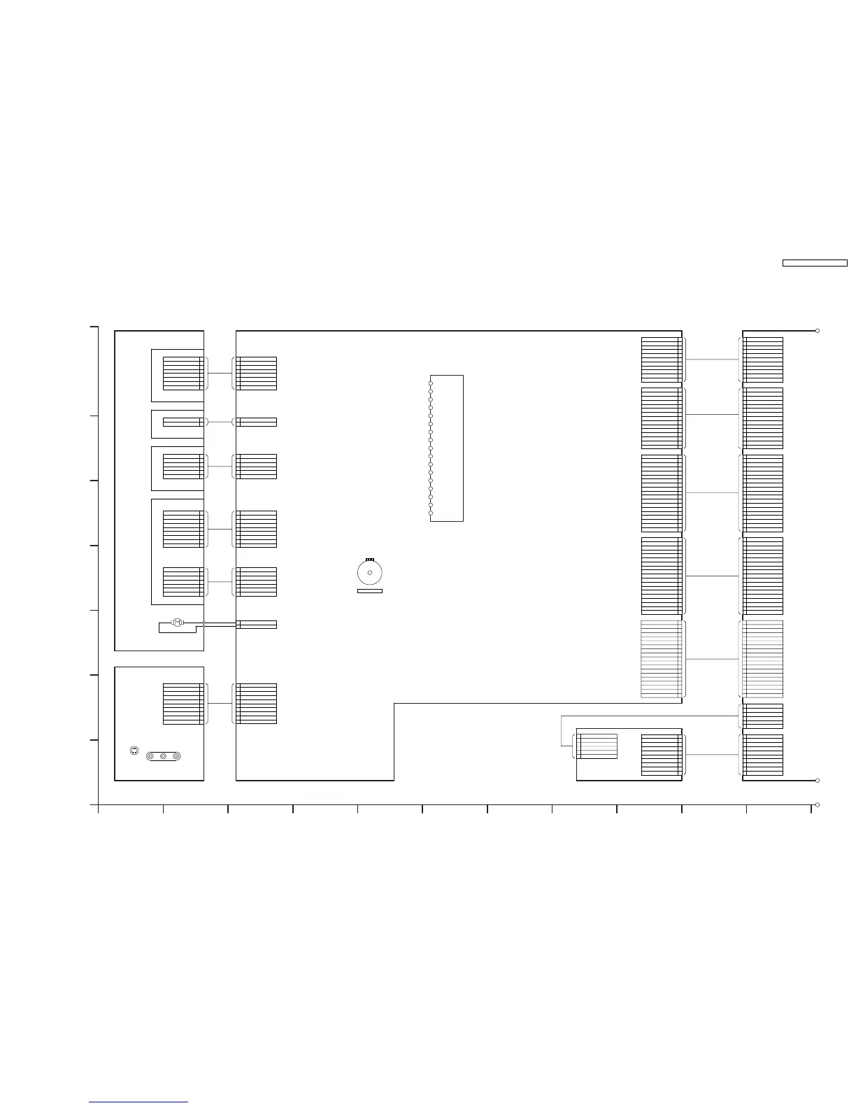
14 Schematic Diagram
14.1. Interconnection Schematic Diagram
POWER &
DIGITAL I/F
P.C.B.
UARTP2M
XINTP
MIX L OUT DM
XDMUTE L
XINTM
U/V TUNER
TU7401
VIDEO OUT
NC
BTL+30V IN
SIF OUT
AUDIO OUT
AFT OUT
SDA
SCL
IF OUT
NC
BT
NC
NC / V IN
NC / TV VCR
5V / A IN
NC / CH SW
5V
18
17
16
15
14
13
12
11
10
9
8
7
6
5
4
3
2
GND
GND
HDD LED
DVD LED
DUB LED
SD LED
SD SEL LED
VHS LED
IR
AD 5V
GND
GND
HDD LED
DVD LED
DUB LED
SD LED
SD SEL LED
VHS LED
IR
AD 5V
A
B
C
DMR-ES35VP/PC
Interconnection
Schematic Diagram
1
2
3
4
5
6
7
8
9
10
KEY 1
PP4801
GND
KEY 2
L2 SW
L2 IN R
CPN C IN2
GND
CPN Y IN2
L2 IN L
VIDEO IN2
KEY 1
GND
KEY 2
L2 SW
L2 IN R
CPN C IN2
GND
CPN Y IN2
L2 IN L
VIDEO IN2
PS6001
8
9
7
10
3
4
2
6
5
1
SCLK
19
18
17
16
15
14
RST UART/IR CS
SW UART/IR BUSY
POFF L3
SBMTP
XMPREQ
HOT PLUG
P6002
SBPTM
HDD PFAIL
POFF L2
XFWE
GND
HDMI MONI
HDMI P5 ON H
HDMI P3 ON H
HDMI CONT
UARTP2M
XINTP
XINTM
SCLK
RST UART/IR CS
SW UART/IR BUSY
POFF L3
SBMTP
XMPREQ
HOT PLUG
SBPTM
HDD PFAIL
POFF L2
XFWE
GND
HDMI MONI
HDMI P5 ON H
HDMI P3 ON H
HDMI CONT
13
8
12
9
7
10
11
3
4
2
5
1
6
19
18
17
16
15
14
ADC L
ADC R
DI PON H
MECHA 12.3V
MGND
MECHA 12.3V
X SW6V
BS16V
P6003
X SW6V
FANLOCK1
JC REG5V
FANPWM1
D3.3V
COUT DM
DR PON H
ANA5V
V YIN DM
DR PSAVE L
IR CLK/BS P ON H
IR TXD/BBR RXD
UARTM2P
ADC L
ADC R
DI PON H
MECHA 12.3V
MGND
MECHA 12.3V
X SW6V
BS16V
X SW6V
FANLOCK1
JC REG5V
FANPWM1
D3.3V
DR PON H
ANA5V
DR PSAVE L
IR CLK/BS P ON H
IR TXD/BBR RXD
UARTM2P
13
8
12
9
7
10
BPBOUT DM
P6005
GND
GPYOUT DM
RPROUT DM
GND
YOUT DM
GND
11
3
4
2
5
1
AU GND
P6004
GND
GND
GND
UNREG 38V
CPNCIN DM
X SW12.3V
SLICER VIDEO
IECOUT
AU GND
MIX R OUT DM
P SAVE
MIX L OUT DM
XDMUTE L
COUT DM
V YIN DM
AU GND
GND
GND
GND
UNREG 38V
CPNCIN DM
X SW12.3V
SLICER VIDEO
AU GND
MIX R OUT DM
P SAVE
3
4
2
5
1
6
7
6
8
9
11
10
8
9
11
10
13
12
15
14
15
14
11
10
9
8
7
6
1
5
2
4
3
PP7701
10
9
8
7
6
5
4
3
2
1
1
6
5
4
3
2
GND
GND
KEY1
KEY2
KEY3
SST6V
I2C5 DT I2C5 DT
I2C5 CK I2C5 CK
PS31901
1
6
5
4
3
2
GND
GND
KEY1
KEY2
KEY3
SST6V
PP7702
2
3
4
5
6
7
1
P31901
GND
RPROUT DM
BPBOUT DM
GND
DGND DGND
YOUT DM
GND
GPYOUT DM
19
18
17
16
15
14
2
3
4
5
6
7
8
9
1
11
10
12
P31904
13
HDD LED
GND
AD5V
SD SEL LED
19
18
17
16
15
14
DVD LED
DUB LED
SD LED
VHS LED
KEY2
-29V
P6001
KEY1
KEY3
IR
SST6V
GND
GND
GND
F+
F-
HDD LED
GND
AD5V
SD SEL LED
DVD LED
DUB LED
SD LED
VHS LED
KEY2
-29V
KEY1
KEY3
IR
SST6V
GND
GND
GND
F+
F-
13
8
12
9
7
10
11
3
4
2
5
1
6
19
18
17
16
15
14
2
3
4
5
6
7
8
9
1
11
10
12
P31905
13
19
18
17
16
15
14
2
3
4
5
6
7
8
9
1
11
10
12
P31903
13
2
3
4
5
6
7
8
9
1
11
10
12
P31902
IECOUT
13
1
3
4
7
5
8
6
9
10
PS31902
2
L2
LOADING MOTOR
CYLINDER UNIT
AUDIO CONTROL HEAD
FULL ERASE HEAD
CAPSTAN DRIVE UNIT
MODE SWITCH
S1532
CAP R/F
EC
TL
GND
FG1
CAP VM
5V
7
6
5
4
3
1
2
GND
PG(+)
PG(-)
GND
COM
M3
M2
M1
7
6
5
4
3
1
2
8
2
1FULL E
FULL E
AUDIO E IN
GND
A.HEAD(W)
A.HEAD(R)
CTL HEAD(-)
CTL HEAD(+)
LP/EP R
SP R
A R
A COM
A L
SP L
LP/EP L
LP/EP COM
SP COM
6
5
4
1
3
2
9
8
7
6
5
2
1
3
4
Main P.C.B.
VTR Mechanism Unit
Front Jack P.C.B.
FL Drive P.C.B.
S-VHS
P2571
CAP R/F
EC
TL
GND
FG1
CAP VM
5V
7
6
5
4
3
1
2
GND
P1531
2
1
PG(+)
PG(-)
GND
COM
M3
M2
M1
P2501
7
6
5
4
3
1
LOADING M(-)
2
LOADING M(+)
8
2
1
P4001
FULL E
FULL E
P4002
AUDIO E IN
GND
A.HEAD(W)
A.HEAD(R)
CTL HEAD(-)
CTL HEAD(+)
P3001
LP/EP R
SP R
A R
A COM
A L
SP L
LP/EP L
LP/EP COM
SP COM
6
5
4
1
3
2
9
8
7
6
5
2
1
3
4
1110987654321
G
F
E
D
C
B
A
DMR-ES35VP / DMR-ES35VPC
69

Table of Contents

Related product manuals