EasyManua.ls Logo

Panasonic DMR-ES35VP

Panasonic DMR-ES35VP
118 pages
To Next Page IconTo Next Page
To Next Page IconTo Next Page
To Previous Page IconTo Previous Page
To Previous Page IconTo Previous Page
Loading...
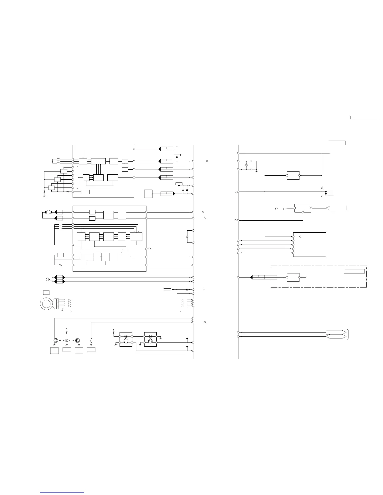
13.5. System Control & Servo Block Diagram
L
L
H
L
L
H
H
H
IIC DATA
AUDIO IC(IC4501)
VIDEO IC(IC3001)/
TO/FROM
IIC CLOCK
72IIC DATA
IIC CLOCK 71
IC
HALL
DMR-ES35VP/PC
System Control & Servo
Block Diagram
IC7501
(TIMER CPU)
P.FAIL
S-DATA CLOCK
VTR
S-DATA IN
VTR
S-DATA OUT
VTR
TIMER CS IN
VTR
29
32
30
31
83
1
19
TL6002
+5V
CAP TL
CAP FG
+5V
PB CTL
VCC
+5V
19
TL600434RESET
FRONT R P.C.B.
PG OUT
PG-
PG+
MAIN P.C.B.
2
PP7701PS31901
10
P31905P6001
+5V3
IC7701
1IR
(REMOTE CTL.RECEIVER)
14IR
VTR S-DATA CLK 70
VTR S-DATA IN 69
VTR S-DATA OUT 68
15VTR TIMER CS
POWER
FROM
(S-REEL SENSOR)
IC1512
CTL HEAD(+)
CTL HEAD(-)
COILS
MOTOR
CYLINDER
2
IC6002
1 OUT
(RESET)
X SW+5.8V
(IC2501- /P2571- )
+5V
(SWITCHING REG.+5V)
IC6301
SW
INOUT 4
3
1
POWER ON 75
+5V5V(D) 37
(12MHz)
X6001
12MHz OUT 39
12MHz IN 38
SENSOR
PHOTO
TAKE-UP
Q1501
LED
SENSOR
D1501
SENSOR
PHOTO
SUPPLY
Q1502
TAB SW
SAFETY
S1531
+5V
(T-REEL SENSOR)
IC1511
4
21
34
2
3
1
TL23
TL24
80 T.REEL
79 S.REEL
27 SAFETY TAB
7 S.PHOTO
8 T.PHOTO
SW
MODE
S1532
5
4
3
2
1
SW4
SW3
SW2
SW1
SW4
SW3
SW2
SW1
30 POSITION SW4
POSITION SW331
32 POSITION SW2
POSITION SW133
PB CTL OUT
EX.FF/REW
TW2002
97
82
6
5
P4002
1
P1531
2
P1531
P4002HEAD
CONTROL
95
94
COMPOSER
FG/PG
AMPLIFIRE
DIFFERENTIAL
17
16
15
CYL PFG9018
CYL ET
CTL AMP REF96
O REF91
UNLOADING
LOADING
CAP FG IN
CAP FG OUT
7714
AMPLIFIRE
DIFFERENTIAL
COM
M3
M2
M1
20
-
+++
AMPLIFIRE
DIFFERENTIAL
SELECTOR
GENERATOR
SIGNAL
DRIVE
MOTOR
PRE-DRIVE
DRIVE
MOTOR
25
23
22
MOTOR
LOADING
M
-
+
4
2
OUT 2
OUT 1
AMP
AMP
PRE-DRIVE
LOGIC
CONTROL
R IN
EC
PFG
F IN
83
84
6
5
(LOADING MOTOR & CYLINDER MOTOR DRIVE)
IC2501
HEAD
FG
CAPSTAN
3
P0201 P2571
TL2015
87
86
(SYSTEM CONTROL/SERVO)
IC6001
CAP R/F
CAP ET
CURRENT LIMIT
74
76
11
TL2502
7
6
5
2
P2571
P2571
P2571
P2571
P0201
P0201
P0201
P0201
+12.3V
MECHA
11
10
9
19
ED/S
EC
TL
VM
POWER
HALL
SELECT
DIRECTION
TORQUE
PROCESS
SIGNAL
POSITION
AMP
DEF
AMP
EC
AMP
TL
CONTROL
TORQUE
AMPLIFIRE
DIFFERENTIAL
DRIVE
MOTOR
VH+
A3
A2
A1
H2+
H2-
H1+
H1-
H3+
H3-
HALL
HALL
HALL
COILS
MOTOR
CAPSTAN
(CAPSTAN MOTOR DRIVE)
IC0201
21
27
26
25
24
23
22
17
16
15
DMR-ES35VP / DMR-ES35VPC
67

Table of Contents

Related product manuals