EasyManua.ls Logo

Peekel Instruments PICAS - Displacement Transducers

Default Icon
59 pages
Print Icon
To Next Page IconTo Next Page
To Next Page IconTo Next Page
To Previous Page IconTo Previous Page
To Previous Page IconTo Previous Page
Loading...
Peekel Instruments User manual PICAS V2.6.1
Page 12 of 59
A similar situation as with the ½-bridge connection method has appeared. Every 1 m of
difference in resistance, when using 120 straingauges, gives a change in signal-offset of 2
µV/V. This may be compensated internally by the balance circuit. However, the
temperature-influence cannot be compensated for. Short and thick cabling is again highly
recommended.
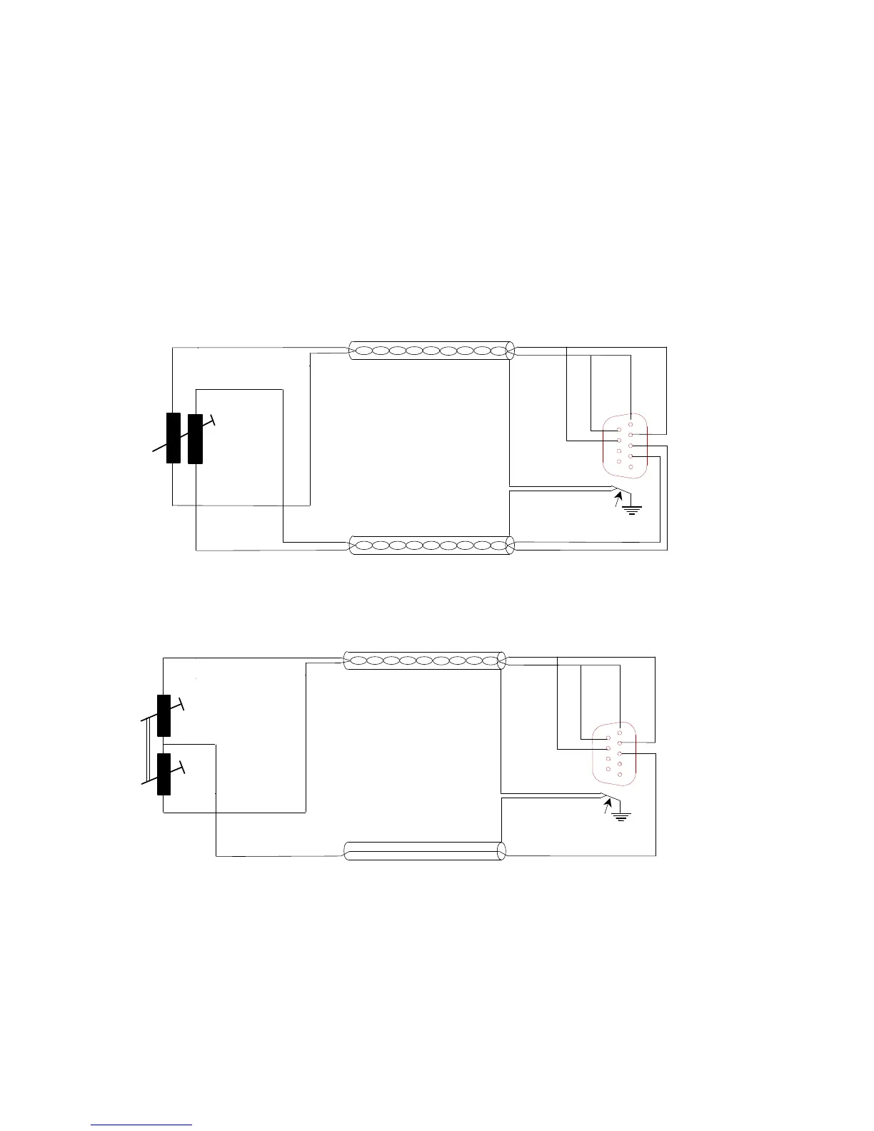
2.1.8 Displacement Transducers
LVDT’s, or Linear-Variable-Differential Transformers may be configured as full- or half-
bridges. The connection method for both possibilities is shown in the next figures.
-EX
+EX
9 polig
male Sub D
+SE
-SE
-
IN
+IN
-EX
+EX
-
IN
+IN
5
9
6
1
Connect cable screen to
connector case.
Figure 7: Connection of a full-bridge lvdt.
-EX
+EX
9 polig
male Sub D
+SE
-SE
+IN
-EX
+EX
+IN
5
9
6
1
Connect cable screen to
connector case.
Figure 8: Connection of a half-bridge lvdt

Table of Contents