EasyManua.ls Logo

Philips JL2.1E - Page 181

Philips JL2.1E
254 pages
Print Icon
To Next Page IconTo Next Page
To Next Page IconTo Next Page
To Previous Page IconTo Previous Page
To Previous Page IconTo Previous Page
Loading...
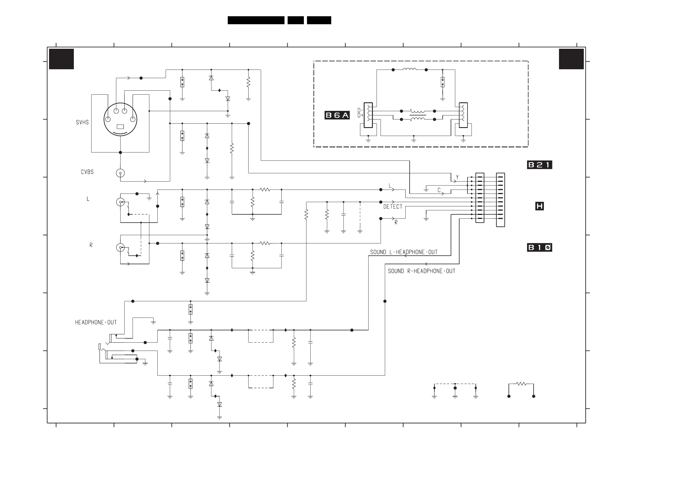
Circuit Diagrams and PWB Layouts
181JL2.1E AA 7.
Side I/O Panel (v2)
RES
I012 F8
I013 F3
I014 E3
F024 E6
F025 E6
I001 C2
I002 C3
I003 D2
I004 A3
I005 F4
I006 F4
I007 E4
VIPER
I008 E4
I009 B3
I010 D3
I011 F7
F014 A6
F015 A7
F016 A6
F017 A7
F018 F7
F019 F2
F020 B4
F021 C6
F022 C6
EMGT
OR
OR
F023 C6
9007 F8
9008 F4
9009 F4
9010 E4
9011 E4
F001 A2
F002 A2
F003 B2
F004 C2
SSB EMGT
TO 1M36
TO 1H01
F005 C2
F006 D2
F007 E2
F008 E2
F009 E2
F010 F8
F011 F9
F012 A6
F013 A7
3020 E5
3999 F9
5000 A7
6000 A3
6001 A3
6002 B3
6003 B3
6004 C3
6005 C3
C
SIDE I/O
6006 D3
6007 D3
6008 F3
6009 F3
6010 E3
6011 F3
9003 C6
9004 C2
9005 D2
9006 F7
2010 E2
2011 E5
3000 A4
3004 B3
3008 C5
3009 C4
3010 C4
3011 C5
3012 D4
3013 D4
3016 F5
789
A
B
C
D
E
F
SSB JAGUAR
TO 1M36
SCART 3
TO 1M36
1M60
OR
2004 C3
2005 C4
2006 D3
2007 D4
2008 F2
2009 F5
1108 D3
1109 E3
1110 F3
1111 E3
1112 A7
1H01 A6
1M36 B8
1M37 B8
2003 C5
Y / CVBS
123456789
123456
7
8
9
USB
CONNECTOR
JAGUAR ONLY
A
B
C
D
E
F
1001 B2
1002-1 B1
1002-2 C1
1002-3 D1
1005 A8
1010 E1
1050 A7
1101 A3
1102 B3
1106 C3
1
10
11
2
3
4
5
6
1M36
GND_AUD
I002
9
7
8
1K0
3012
RED
1002-3
1106
GNDB
GNDB
F006
6007
PDZ6.8-B
I003
I012
6002
PDZ6.8-B
F009
6003
PDZ6.8-B
F002
GNDB
GNDB
GNDB
PDZ6.8-B
6011
1
2
3
4
56
GND_AUD
1H01
F014
9006
F013
F003
1101
2007
100p
F001
I004
PDZ6.8-B
6009
6010
PDZ6.8-B
PDZ6.8-B
6004
PDZ6.8-B
6005
GNDB
F025
GNDB
F023
GNDB
F011
F004
9007
I005
F016
I008
1109
9
12
13
3011
3K9
1
10
11
2
3
4
5
6
7
8
1M37
B11B-PH-SM3-TBT
F015
F020
GND_AUD
GND_AUD
GND_AUD
9004
1108
5000
3020
10K
3000
75R
1
2
3
4
5
7
8
1010
1110
F010
3999
150R
2003
1u0
I006
F007
GND_AUD
GND_AUD
I007
F017
F018
GNDB
9011
9010
I001
22n
2010
6006
PDZ6.8-B
2008
22n
680p
2006
3009
1K0
100p
2005
1
2
1002-1
YELLOW
680p
3010
33K
2004
1111
9005
I010
F005
9003
GNDBGNDB
6
4
5
GNDB
GNDB
WHITE
1002-2
1
2
3
4
56
GND_AUD
1005
1050
DLW31S
9008
F012
9009
F019
3016
F024
10K
10n
2009
1112
1102
GNDB
I009
5
134
2
1001
3004
75R
I011
PDZ6.8-B
6001
F022
F021
2K2
3008
6000
PDZ6.8-B
GNDB
F008
6008
PDZ6.8-B
2011
10n
33K
3013
I014
I013
3104 313 6008.4
D D
F_15710_104.eps
160905

Table of Contents

Related product manuals