EasyManua.ls Logo

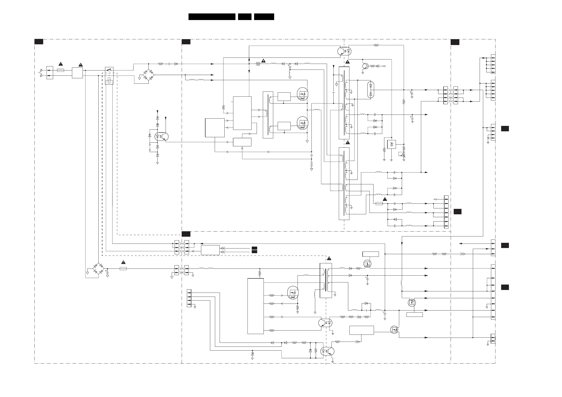
Philips JL2.1E - Block Diagram Supply + Standby (37)

Philips JL2.1E
254 pages
Print Icon
To Next Page IconTo Next Page
To Next Page IconTo Next Page
To Previous Page IconTo Previous Page
To Previous Page IconTo Previous Page
Loading...
Block Diagrams, Testpoint Overview, and Waveforms
39JL2.1E AA 6.
Block Diagram Supply + Standby (37”)
F_15710_125.eps
290905
CONNECTIONS
SA1
STANDBY
SA2
MAINS FILTER + STANDBY
A1
SUPPLY
A2
6307
GBJ6J
-
+
6306
DF06M
-
+
7001
MC34067P
15
7011
7012
7007
HIGH
SIDE
DRIVE
7004
7009
5001
BIAS SUPPLY
SOFT
START
+
CURRENT
PROTECTION
CONTROL
VCC
OSCC
ERROR
SOST
OB
OA
FI
2
4
11
7
11
14
12
10
7005
STP15NK50
7002
TCET1102
6
7
4
1
3
2
5011
7008
LOW
SIDE
DRIVE
7006
STP15NK50
10
9
6019
STPS20L40CFP
2003
60246025
3007
7010
TS2431
3030
1314
T5AH
1308
5303
5305
5306
2
3
MAINS
FILTER
2
1
1
4
1350
OVER
VOLTAGE
PROTECTION
1315
T1AE
400V_HOT
25V_HOT
HOT COLD
HOT
COLD
SUPPLY 37"
399V_HOT
5002
1007
T5A
VSND_POS
VSND_NEG
GND_SND
+24Vb
+24Va
+12V
400V_HOT
2303
2020
2022
2060
PRINTED
COMPONENT
HOT COLD
VREF
5
N.C.
5008
5007
25V_HOT
399V_HOT
6315
6316
6318
6317
RES
6314
6304
2319
3318
3000
2029
2045
6021
6041
5025
5026
7307
TCET1102
2
1
4
3
+12V_A
+12V_+24V
HOT
COLD
CONTROL
3
7501
TCET1102
2
1
4
3
+5V2-RELAY-IO2_PWM
7100
7101
7105
7150
TCET1102
2
1 4
7511
RES
7131
RES
VTUN
+11V
+8V6
+5V2
+5V_SW
5500
7531
+12V
6
7
10
STANDBY
7507
7506
7512
STANDBY
OVERVOLTAGE
PROTECTION
8
B16
TO 1J01(1M46)
CONNECTIONS
3
5
2
1
7102
B16
TO 1J00(1M03)
CONNECTIONS
+5V2
STANDBY: LOW = ON
HIGH = STBY
3V MAX
1V MAX STBY
CONTROL
7505/7509/7560/
Prot-OVV
+12V_A
PROT-OVV
TO
DISPLAY
AL
TO 1M10
AMBI LIGHT
(Optional)
1305
11
1305
22
33
1306
11
1306
22
1
1307
2
3
4
1304
44
1304
33
22
11
6504
6140
3509
5110
5507
5103
6505
6122
3158
PROT_AUDIOSUPPLY
2512
5506
2513
3128
3113
3124
2141
5504
5505
5104
5105
3108
3127
3104
3150
3101
3155
6151
6150
3156
6153
3157
6156
1314
1
2
3
4
5
1M03
9
1M46
3
4
5
7
8
3100
11
9
6
1315
1
2
3
4
5
1M02
7
6
4
5
3
2
1
SA3
TO 1M02
AUDIO
TO
DISPLAY
5
+5V_SW
N.C.
SA1
SA2
2009
6029
2021
6030
5020
5018
5019
2042
2049
6031
6040
5021
5022
DC_PROT
7003
3031
3052
3057
VS Voltage
Adj.
3026
3025
9311
5017
5012
5009
2059
5010
DC_PROT
2
3539
3534
POR
1M63
1
2
1M10
1
2
3
4

Table of Contents

Related product manuals