EasyManua.ls Logo

Philips JL2.1E - Wiring Diagram (37) LCD LPL

Philips JL2.1E
254 pages
Print Icon
To Next Page IconTo Next Page
To Next Page IconTo Next Page
To Previous Page IconTo Previous Page
To Previous Page IconTo Previous Page
Loading...
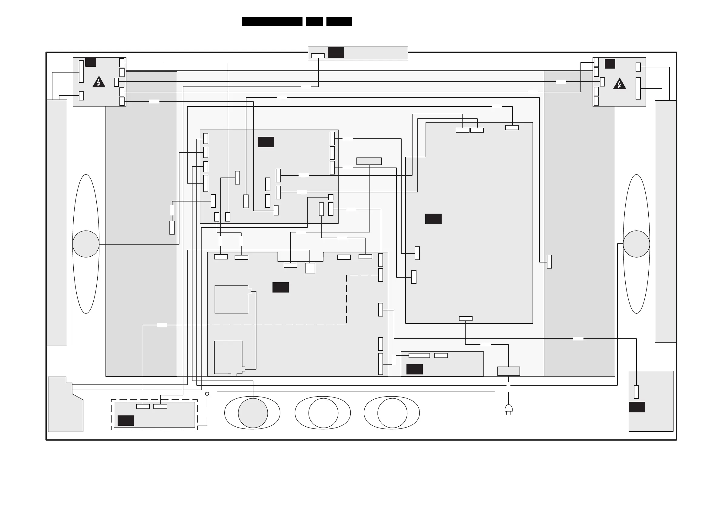
36JL2.1E AA 6.
Block Diagrams, Testpoint Overview, and Waveforms
Wiring Diagram (37”) LCD LPL
F_15710_122.eps
290905
AMBIENT LIGHT LAMPS RIGHT
INVERTER 2
GROUND
STAND-BY
/ AUDIO
SA
MAIN SUPPLY
A
SSB
B
LED PANEL
J
SIDE I/O
D
BOTTOM I/O
BE
LS
RIGHT
LS
LEFT
LS
CENTER
TOP CONTROL
E
AMBIENT LIGHT LAMPS LEFT
51P
INVERTER 1
AC INLET
CARDREADER
+ 2x USB
1736
2P3
1735
2P3
1738
2P3
1M02
7P
1314
10P
1739
9P
1315
10P
1304
4P
1309
3P
1M03
10P
1M46
11P
1M10
4P
1306
2P3
1307
4P
1305
3P
1303
4P
1320
3P
1309
3P
1304
4P
1M02
7P
1306
2P
1305
3P
1308
2P3
1035
40P
1060
10P
10P
1M36
11P
1E35
40P
1E60
10P
1M03
10P
1M20
10P
1M36
11P
1M46
11P
1M63
2P
1M52
9P
1M49
4P
1G50
31P
1304
8P
USB
Inv1
10P
0345
6P
1M20
12P
0345
6P
1M63
2P
Inv2
1M49
4P
1004
5P
1M48
3P
1M10
4P
1M08
4P
1M11
11P
1M12
3P
AL
AMBI
LIGHT
1M10
4P
1M08
4P
1M48
3P
1M49
4P
1004
5P
1M11
11P
1M12
3P
AL
AMBI
LIGHT
1M49
4P
1K49
4P
8191
8336
8308
8135
8305
8306
8302
8303
8346
8250
8349
8352
8316
8309
8345
8317
8349
8310
8348
8308
TUNER
SPLITTER
1T01
SUB TUNER
1T02
8700
(On Back Cover)
(On Back Cover)
WIRING 37”
LCD DISPLAY
8304
8220

Table of Contents

Related product manuals