EasyManua.ls Logo

Philips JL2.1E - Block Diagram Video

Philips JL2.1E
254 pages
Print Icon
To Next Page IconTo Next Page
To Next Page IconTo Next Page
To Previous Page IconTo Previous Page
To Previous Page IconTo Previous Page
Loading...
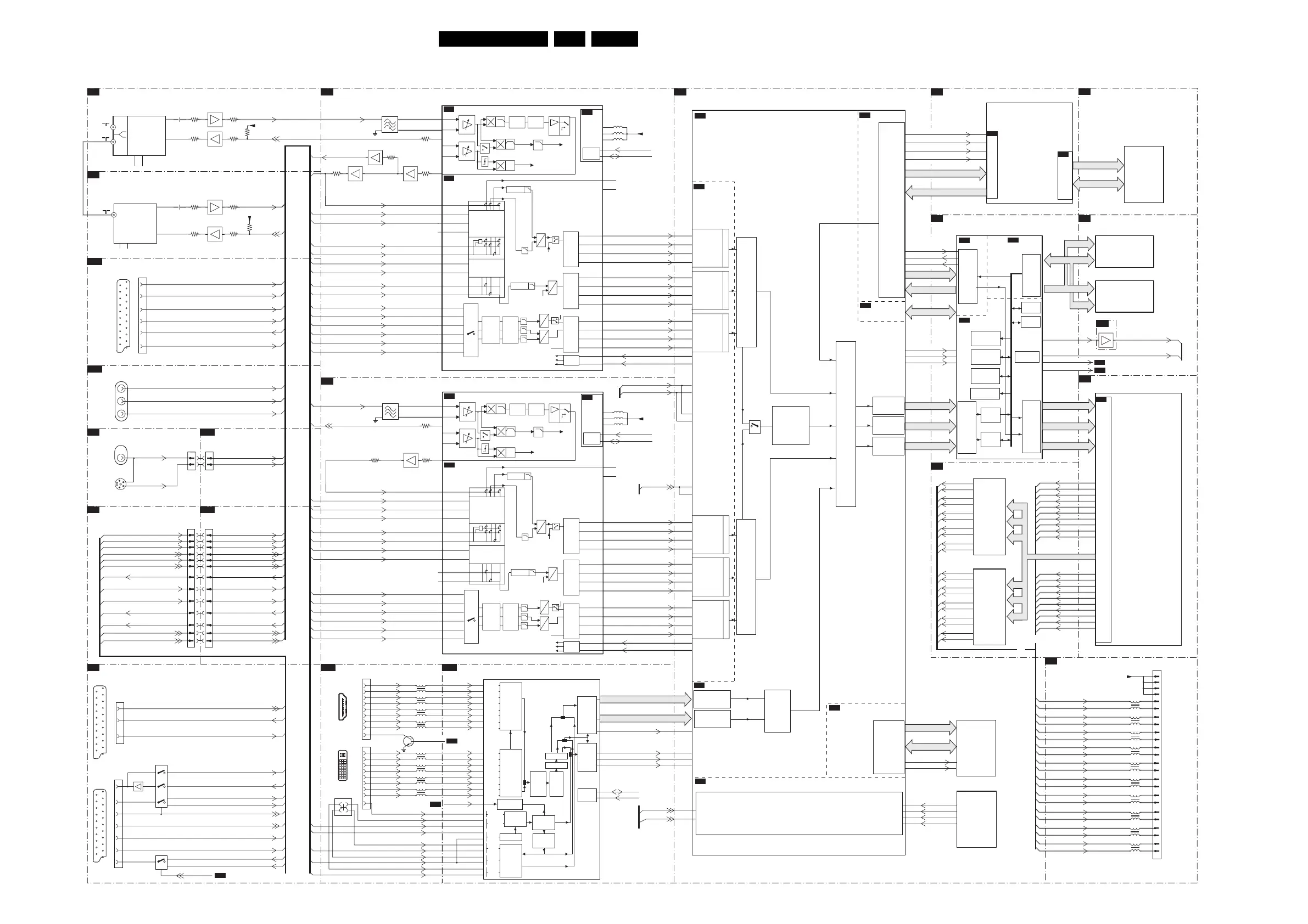
Block Diagrams, Testpoint Overview, and Waveforms
41JL2.1E AA 6.
Block Diagram Video
F_15710_127.eps
190905
BE2
EXTERNAL I/O 2
B16B
CONNECTION B
B2
TUNER: MAIN
B7
VIPER:
B9
MOP:
B4
MPIF MAIN:
B7B
VIPER: MAIN MEMORY
B8B
B5
PNX2015:
B9C
MOP: LVDS
VIDEO
B3
TUNER: SUB
B4
MPIF SUB:
B6
SPIDER:
BE1
EXTERNAL I/O 1
B16A
CONNECTION A
D
SIDE I/O
B12A
I/O: SCART
B14B
I/O + GEMSTAR
B11A
HDMI
B11B
HDMI: I/O + CONTROL
B6B
SPIDER: DDR
B9D
MOP: IO
PMALC
A
D
A
D
A
D
U
V
PMALC
A
D
+
CVBS-IF
123
CVBS1
126
CVBS2
1
CVBS_DTV12
CVBS|Y34
C35
CVBS|Y48
C49
Y_COMB15
C_COMB16
R|PR|V_125
G|Y|Y_126
B|PB|U_127
R|PR|V_230
G|Y|Y_231
B|PB|U_232
YUV
RGB
CLAMP
LPF
LEVEL
ADAPT
INV.
PA L
DATA
LINK
3
DATA
LINK
2
STROBE1N
60
STROBE1P
61
DATA1N
62
DATA1P
63
50
51
52
53
55
56
57
58
2nd
SIF
A/D
CVBS-OUTB
CVBS SEC
LPF
LPF
CVBS-OUTA
Yyuv
2FH
C-PRIM
CVBS/Y RIM
Yyuv
1T03
UV1318ST
MAIN
TUNER
SPLITTER
2
8
7
1C52
SIFINP
SIFINN
VIFINP
VIFINN
11
CVBSOUTIF-MAIN
AV1_CVBS
AV2_Y-CVBS
AV2_C
FRONT_Y-CVBS
FRONT_C
AV7_Y-CVBS
AV7_C
AV1-AV5-AV6_R-PR
AV1-AV5-AV6_G-Y
AV1-AV5-AV6_B-PB
AV2-AV4_R-PR
AV2-AV4_G-Y
AV2-AV4_B-PB
R4
R3
R2
R1
P4
P3
P2
P1
N4
N3
N2
N1
AVP1_DLK1SN
AVP1_DLK1SP
AVP1_DLK1DN
AVP1_DLK1DP
AVP1_DLK3SN
AVP1_DLK3SP
AVP1_DLK3DN
AVP1_DLK3DP
AVP1_DLK2SN
AVP1_DLK2SP
AVP1_DLK2DN
AVP1_DLK2DP
STROBE3N
STROBE3P
DATA3N
DATA3P
STROBE2N
STROBE2P
DATA2N
DATA2P
7J00
PNX2015E
B16b
B16b
B16b
B16b
B16b
N.C.
N.C.
B12a
B12a
B12a
B16a
B16a
99
100
107
108
120
CVBS-TER-OUT
B12a
B12a,
B16b
MPIF
+5VMPIF-MAIN
14
28
35
44
SDA-DMA-BUS2
43
SCL-DMA-BUS2
DIGITAL
BLOCK
Yyuv
2Fh
U,V
MONO SEC.
TIMING
CIRCUIT
46
M3
CLK-MPIF
40
M4
HV-PRM-MAIN
CLP PRIM
CLP SEC
CLP yuv
SOUND
BPF
LPF
LPF
TRAP
GROUP
DELAY
QSS
QSSOUT
AUDIO SWITCH
TO AM INTERNAL
LPF
CVBSOUTIF
IF
SOURCE SELECTION
7C00
PNX3000HL
DATA
LINK
1
19
22
N.C.
N.C.
1
IF-TER2
3C80
3C02
STROBE1N-MAIN
STROBE1P-MAIN
DATA1N-MAIN
DATA1P-MAIN
STROBE3N-MAIN
STROBE3P-MAIN
DATA3N-MAIN
DATA3P-MAIN
STROBE2N-MAIN
STROBE2P-MAIN
DATA2N-MAIN
DATA2P-MAIN
AVP1_HVINFO1
MPIF_CLK
DATA LINK 1
DATA LINK 3
DATA LINK 2
7B11
TDA9975
19
1
18 2
1
1B01
3
4
7
9
10
12
6
19
1B33
ARX2+
ARX2-
ARX1+
ARX1-
ARX0+
ARX0-
ARXC+
ARXC-
ARX-HOTPLUG
1B32
1B31
1B30
PARX2+
PARX2-
PARX1+
PARX1-
PARX0+
PARX0-
PARXC+
PARXC-
HDMI
CONNECTOR
2
1B40
1
10
18
17
23
24
9
8
1B37
BRX2+
BRX2-
BRX1+
BRX1-
BRX0+
BRX0-
BRXC+
BRXC-
1B36
1B35
1B34
PBRX2+
PBRX2-
PBRX1+
PBRX1-
PBRX0+
PBRX0-
PBRXC+
PBRXC-
HDMI
RX2+A
RX2-A
RX1+A
RX1-A
RX0+A
RX0-A
RXC+A
RXC-1
RX2+B
RX2-B
RX1+B
RX1-B
RX0+B
RX0-B
RXC+B
RXC-B
SDA-MM-BUS1
SCL-MM-BUS1
DV-HREF
DV-VREF
DV-FREF
A2
A1
C2
L16
L15
AV2-AV4_G-Y
DVI-R-PR
PR
DVI-G-Y
Y
DV1-B-PB
PB
AV2-AV4_R-PR
1
AV2-AV4_G-Y
2
AV2-AV4_B_PB
3
AV2-FBL
4
6
7
11
12
14
15
1O35
1E35
9
16
AV2-AV4_R-PR
AV2-AV4_G-Y-
AV2-AV4_B_PB
AV3_CVBS
AV3_STATUS
CVBS-TER-OUT
AV2_C
C-MON-OUT
Y-CVBS-MON-OUT
DV4_DATA_0 T0 9
DV5_DATA_0 T0 9
DV1F-DATA 0 TO 7
DV2A-DATA 0 TO 7
DV3F-DATA 0 TO 7
7V00
PNX8550
DV-ROUT
DV-GOUT
DV-BOUT
7G04
EP1C12F256C7N
TUN-VIPER-RX-DATA
AUDIO/VIDEO
TUNNELBUS
PMX-MA
7L50
K4D261638F
PNX-MDATA
PNX-MCLK-P
PNX-MCLK-N
8
9
1G50
TXAe+
5GA0
TXAe-
HSYNC
VSYNC
SOG
R/PR
G/Y
B/PB
PNX2015
VIPER
MOP
PICTURE ENHANCEMENT
DDR
SDRAM
16Mx16
11
12
14
15
16
1
2
3
4
6
7
9
B16b
B14b
B14b
B14b
TUN-VIPER-TX-DATA
TUNNELBUS
B5C
DV I/O INTERFACE
B5B
DDR INTERFACE
DV1F-CLK
DV2A-CLK
DV3F-CLK
7V01
K4D551638F
DDR
SDRAM 1
16Mx16
7V02
K4D551638F
DDR
SDRAM 2
16Mx16
MM_DATA
MM_A(0-12)
DDR INTERFACE
EF
7F55
AG28
AJ30
DAC-CVBS
C-MON-OUT
Y-CVBS-MON-OUT
B16b
B16b
Video
output
formatter
VHREF
timing
generator
Termination
resistance
control
Termination
resistance
control
HDMI
receiver
ADC
Slicers
Activity
detection &
sync selec.
Sync
seperator
Clocks
generator
HDCP
Derepeater
Upsample
M135-CLK
Line time
measuremebt
I2C slave
interface
45
46
MCLK_P
MCLK_N
A17
A16
B5D
DV-HREF
DV-VREF
DV-FREF
AH9
AJ9
AK9
DV1_CLK
DV2_CLK
DV3_CLK
AD28
AF30
AK28
DV1_DATA(0-9)
DV2_DATA(0-9)
DV3_DATA(0-9)
AUDIO/VIDEO
B5A
AV6_VSYNC
M1
AVP1_VSYNC1
AV1-AV6_FBL-HSYNC
T1
AVP1_HSYNCFBL1
B3f
B12a
B4C
B4A
IF-TER2
B7C
B7C
B7B
AVIP-1
AVIP-2
COLUMBUS
3D Comb
filter and
noice
reduction
MUX
1SD+1HD
YUV
Video in
VIP
TUNNEL
BUS
LVDS
CONNECTOR
TO DISPLAY
PMX-MA(0-12)
PNX-MDATA
(0-15)
Memory
controller
5 Layer
primary
video out
HD/VGA/
656
Video
TS
router
Tunnel
Dual
con
acces
Temporal
noise redux
Scaler and
de-interlacer
250Mhz
MIPS32
CPU
DVD
CSS
Dual SD
single HD
MPE2 decoder
2D DE
2-Layer
secondary
video out
1
VDISP
2
3
4
7B30
HPD-HIRATE
B7A
HPD-HIRATE
AD27
B11A
DV4-DATA
DV5-DATA
DV4-CLK
D1
AK8
IFOUT
AGC
EF
7T06
3T24
2T21
3T28
EF
7T10
3T12
+5VTUNMAIN
3T26
AGC2
SDA
SCL
5 4
RF IN
RF OUT
1W02
UV1318S
SUB
TUNER
11
1
IF-TER1
IF1
AGC
EF
7W01
3W17
2W17
3W22
EF
7W10
3W13
+5VTUNSUB
3W20
AGC1
SDA
SCL
5 4
RF IN
3W18
3T25
EF
7C01-2
EF
7C02
3C05
3
105
3C63
TUNERAGC
PMALC
A
D
A
D
A
D
U
V
PMALC
A
D
+
CVBS-IF
123
CVBS1
126
CVBS2
1
CVBS_DTV12
CVBS|Y34
C35
CVBS|Y48
C49
Y_COMB15
C_COMB16
R|PR|V_125
G|Y|Y_126
B|PB|U_127
R|PR|V_230
G|Y|Y_231
B|PB|U_232
YUV
RGB
CLAMP
LPF
LEVEL
ADAPT
INV.
PA L
DATA
LINK
3
DATA
LINK
2
STROBE1N
60
STROBE1P
61
DATA1N
62
DATA1P
63
50
51
52
53
55
56
57
58
2nd
SIF
A/D
CVBS-OUTB
CVBS SEC
LPF
LPF
CVBS-OUTA
Yyuv
2FH
C-PRIM
CVBS/Y RIM
Yyuv
2
8
7
1A52
SIFINP
SIFINN
VIFINP
VIFINN
CVBSOUTIF-SUB
AV1_CVBS
AV2_Y-CVBS
AV2_C
FRONT_Y-CVBS
FRONT_C
AV1-AV5-AV6_R-PR
AV1-AV5-AV6_G-Y
AV1-AV5-AV6_B-PB
AV2-AV4_R-PR
AV2-AV4_G-Y
AV2-AV4_B-PB
K4
K3
K2
K1
J4
J3
J2
J1
H4
H3
H2
H1
AVP2_DLK1SN
AVP2_DLK1SP
AVP2_DLK1DN
AVP2_DLK1DP
AVP2_DLK3SN
AVP2_DLK3SP
AVP2_DLK3DN
AVP2_DLK3DP
AVP2_DLK2SN
AVP2_DLK2SP
AVP2_DLK2DN
AVP2_DLK2DP
STROBE3N
STROBE3P
DATA3N
DATA3P
STROBE2N
STROBE2P
DATA2N
DATA2P
B16b
B16b
B16b
B16b
B16b
B12a
B12a
B12a
B16a
B16a
99
100
107
108
120
B12a
MPIF
Yyuv
2Fh
U,V
MONO SEC.
TIMING
CIRCUIT
46
G3
CLK-MPIF
40
M4
HV-PRM-SUB
CLP PRIM
CLP SEC
CLP yuv
SOUND
BPF
LPF
LPF
TRAP
GROUP
DELAY
QSS
QSSOUT
AUDIO SWITCH
TO AM INTERNAL
LPF
CVBSOUTIF
IF
SOURCE SELECTION
7A00
PNX3000HL
DATA
LINK
1
19
22
N.C.
N.C.
3A80
STROBE1N-SUB
STROBE1P-SUB
DATA1N-SUB
DATA1P-SUB
STROBE3N-SUB
STROBE3P-SUB
DATA3N-SUB
DATA3P-SUB
STROBE2N-SUB
STROBE2P-SUB
DATA2N-SUB
DATA2P-SUB
AVP2_HVINFO1
MPIF_CLK
DATA LINK 1
DATA LINK 3
DATA LINK 2
L2
AVP2_HSYNCFBL2
AV2_FBL
T2
AVP1_HSYNCFBL2
B16b
B4G
B4E
IF-TER1
EF
7A01
3A05
3
105
3A63
TUNERAGC
CVBSOUTIF-MAIN
AV3_CVBS
5C33
5C34
5C36
SUPPLY
+
CONTROL
B4B
+5VMPIF-SUB
14
28
35
44
SDA-DMA-BUS2
43
SCL-DMA-BUS2
DIGITAL
BLOCK
5A33
5A34
5A36
SUPPLY
+
CONTROL
B4F
AGC1
DV I/O INTERFACE
B5B
7R00
T6TE0TBG-0001
TUN-SPIDER-RX-DATA
TUN-SPIDER-TX-DATA
SPIDER
TUN-SPIDER-RX-CLKN
TUN-SPIDER-RX-CLKP
D2
C2
TUN-SPIDER-TX-CLKN
TUN-SPIDER-TX-CLKP
B7
C7
A7
A6
H1
G2
A(0-11)
7R01
K4H561638F
DQ(0-15)
DDR
SDRAM
16Mx16
I2S
10
11
TXBe+
5GA1
TXBe-
12
13
TXCe+
5GA2
TXCe-
15
16
TXCLKe+
5GA3
TXCLKe-
18
19
TXDe+
5GA4
TXDe-
20
21
TXAo+
5GA5
TXAo-
22
23
TXBo+
5GA6
TXBo-
24
25
TXCo+
5GA7
TXCo-
27
28
TXCLKo+
5GA8
TXCLKo-
7G05
DS90C385MTD
LVDS
TRANSMITTER
B16
G4e
C15
G0e
E15
G5e
D16
G6e
F15
G7e
E16
B2e
K15
DE
J16
CLK-OUT
G15
B3e
E16
B2e
7G06
DS90C385MTD
LVDS
TRANSMITTER
L16
G4o
K16
G0o
M15
G5o
M16
G6o
N15
G7o
N16
B2o
K15
DE
J16
CLK-OUT
P15
B3o
R16
B4o
48
TXAe-
47
TXAe+
38
TXDe-
37
TXDe+
40
TXCLKe-
39
TXCLKe+
46
TXBe-
45
TXBe+
42
TXCe-
41
TXCe+
48
TXAo-
47
TXAo+
38
TXDo-
37
TXDo-
40
TXCLKo-
39
TXCLKo+
46
TXBo-
45
TXBo+
42
TXCo-
41
TXCo+
30
31
TXDo-
5GA9
TXDo-
STANDBY
PROCESSOR
See also
Block digram
Control
7LA7
M25P05
512K
FLASH
SPI-SDO
SPI-CLK
SPI-CSB
SPI-WP
5
6
1
3
STANDBY
B5E
A9
A10
A12
A13
A15
A16
F16
G16
C10
C9
C13
C12
C16
C15
G14
F14
1P00
11
15
21
1
SCART 1
7
PR
EXT 1
AV2_FBL
AV2_Y-CVBS
AV2-STATUS
AV3_CVBS
AV3_STATUS
CVBS-TER-OUT
AV2_Y-CVBS
AV2_C
C-MON-OUT
Y-CVBS-MON-OUT
AV2-STATUS
23 23
P50P50
1O02
15
20
16
8
11
21
1
SCART 2
7
19
EXT 2
1O01
19
20
21
1
SCART 3
8
EXT 3
AV3_STATUS
CVBS-TER-OUT
AV3_CVBS
EF
7O01
7O00
4
15
1
AV2-AV4_R-PR
AV2_C
AV2-FBL
C-MON-OUT
2
3
9-11
AV2-STATUS
AV2-AV4_G-Y
AV2_Y-CVBS
7O10
14
1
5
CVBS-TER-OUT_CVBS_TAD
Y-CVBS-MON-OUT
14
12
AV2-AV4_B_PB
REGIMBEAU
9-11
2
4
1M36
1M36
2
4
1
5
S VIDEO
2
4
3
1001
1002
C
Y/CVBS
VIDEO
1I00
PB
Y
B11b
B11b
B11b
AV1-AV5-AV6_B-PB
AV1-AV5-AV6_G-Y
AV1-AV5-AV6_R-PR
19
20
16
AV1-AV6_FBL-HSYNC
CVBS-TER-OUT
AV1_CVBS
(Optional)
P16
T16
R12
T13
T6
R7
T9
T8
T14
18
916
17
24
C5
C1 C2
C3 C4
OR
OR
DVI
CONNECTOR
FRONT_Y-CVBS
FRONT_C
B4g
B4g
B4a,e
B4a,e
B4a,e
B5a,
B11b
AV1-AV6_FBL-HSYNC
B12a
B4a
B4a,e
B4a,e
B4a,e
B4a,e
B4a,e
B4a,e
B5a
B4a,e
B16b
AV3_CVBS
B16b
B5e
B4a
B4a,e
B4a,e
B3
B3
B7c
B4c
B4e
28
25
27
26
1B40-4
DVI-HSYNC
DVI-VSYNC
T12
N15
M15
PR
PB
Y
B8a
B5e
B5e
BE2
BE2
BE2
BE2
BE2
BE2
BE2
BE2
BE2
BE2
BE2
BE2
BE2
EF
7C01-1
G1
AVP2_VSYNC1
L1
AVP2_HSYNCFBL1
TUN-VIPER-
RX-CLKP
M29
TX-CLKN
TX-CLKP
U30
U28
T1
K3
T2
AUDIO/VIDEO
B5A
AV2-STATUS
AJ24
AV3-STATUS
AH24
B16b
B16b
TUNNELBUS
DDR
INTERFACE
B6B
B6A
I/O
B9D
Re
Ge
Be
Ro
Go
Bo
R/G/B
RES
RES
1
2
3
4
5
6
7
8
9
10
11
12
13
14
15
16
17
18
19
20
1
2
3
4
5
6
7
8
9
10
11
12
13
14
15
16
17
18
19
20
M135-CLK
D29
B11B
B7A
B7A

Table of Contents

Related product manuals