EasyManua.ls Logo

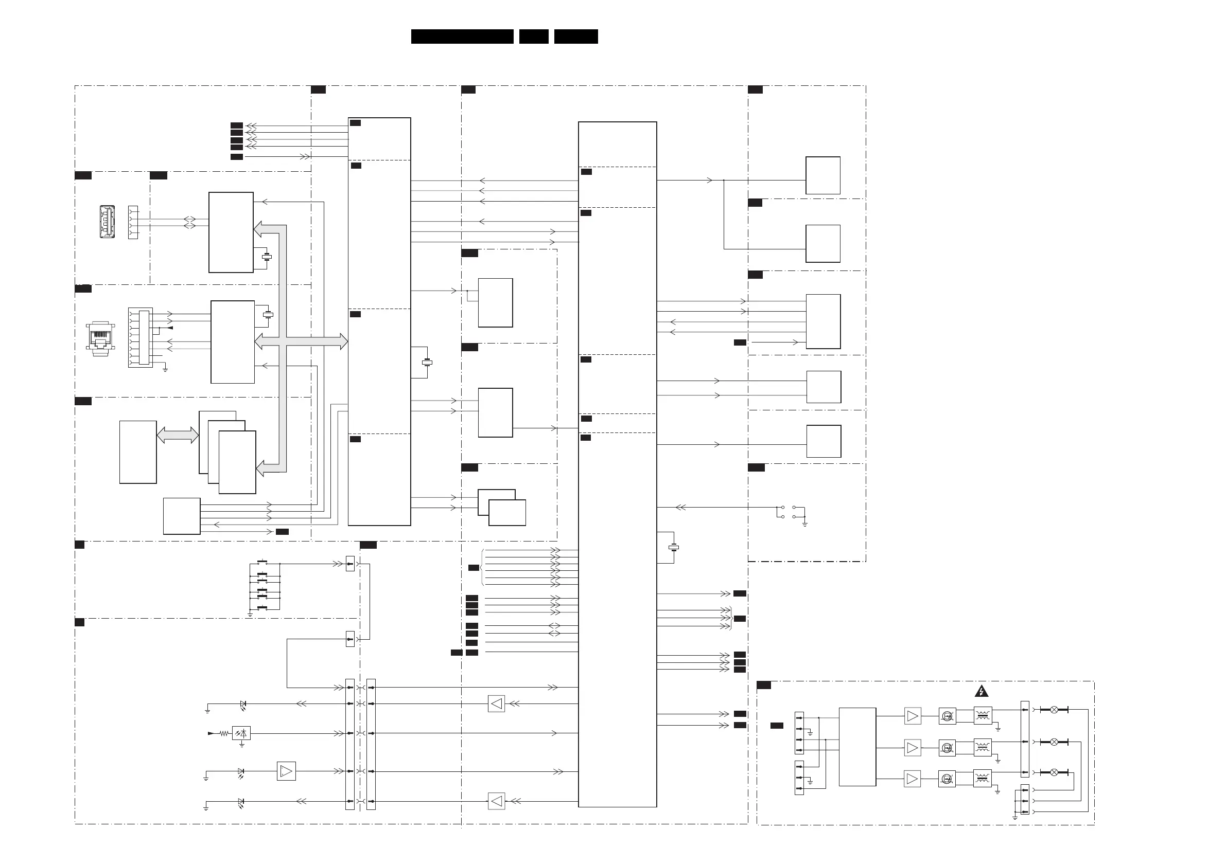
Philips JL2.1E - Block Diagram Control + Clock Signals

Philips JL2.1E
254 pages
Print Icon
To Next Page IconTo Next Page
To Next Page IconTo Next Page
To Previous Page IconTo Previous Page
To Previous Page IconTo Previous Page
Loading...
Block Diagrams, Testpoint Overview, and Waveforms
43JL2.1E AA 6.
Block Diagram Control + Clock Signals
B5
PNX2015:
AL
AMBI LIGHT
J
LED SWITCH PANEL
E
TOP CONTROL
CONTROL + CLOCK SIGNALS
B4B
MPIF MAIN: SUPPLY + CONTROL
B7C
VIPER: A/V + TUNNELBUS
B11B
HDMI: I/O + CONTROL
B9A
MOP: SUPPLY
B4F
MPIF SUB: SUPPLY + CONTROL
B6A
SPIDER: TUNNELBUS
B16A
CONNECTIONS A
B16B
CONNECTIONS B
B8B
NAND FLASH
B15
ETHERNET
B7A
VIPER: CONTROL
B7B
VIPER: MAIN MEMORY
B13A
USB 2.0: HOST
2
0345
ON / OFF
CHANNEL +
CHANNEL -
VOLUME +
VOLUME -
MENU
KEYBOARD
2
0345
LED2
RED
LED2
6060
LED1
BLUE
LED1
IR
SENSOR
RC
7070
LIGHT
SENSOR
LIGHT-SENSOR
6070
KEYBOARD
1
3
4
9
1M20
1M20
1
3
4
9
5
5
LED2
LED1-3V3
RC
LIGHT-SENSOR
KEYBOARD
AK21
AK13
AH23
AG20
AK23
AF16
DETECT-2V5 (P2.1)
AH17
DETECT-3V3 (P2.2)
AG17
DETECT-5V (P2.3)
AK18
DETECT-8V6 (P2.4)
AJ18
DETECT-12VSW (P2.5)
AG15
ENABLE-2V5 (P0.3)
AK16
ENABLE-3V3 (P0.4)
AJ21
RESET-SYSTEM
AH21
RESET-AUDIO
AH16
COM-SND (P0.6)
AK24
AV1-STATUS
AJ24
AV2-STATUS
6
SPI-CLK
AG16
UART-SWITCH (P0.7)
AJ16
LAMP-ON (P0.5)
AH20 SDM
B8A
B1
B7A
B8C
B10D
B12A
9E40
9E41
EF
7L52
LED2-3V3
EF
7LA3
LED1
VIPER
7N00
ISP1561BM
7O00
DP83816AVNGNOPB
7F50
7F51
7F52
BUFFERING
PNX2015
7J00
PNX2015E
PCI-AD(0-31)
7F53
TC58DVM82F1TGI0
EEPROM
16Mx16
7001
P87LPC760
MICRO
CONTROLLER
7018
7009
7015
5014
1M11
11
6
1
7019
7010
7016
5015
7020
7011
7017
5016
1M12
1
2
3
RED
BLUE
GREEN
1M49
1
2
3
4
SCL
SDA
RXD
1M48
1
2
3
TO 2nd
AMBI LIGHT
PWB
TO 1M49
CONN A
B16A
See also
block diagram
I2C
7
6
8
14
12
13
AJ13
P50
B3G
AG13
P50-HDMI
B7A
AG13
SUPPLY-FAULT
B1
B16A
AG18
PROT-AUDIOSUPPLY (P2.7)
B16A
6051
+5V2-STBY
1040
3040
SDM
To Memory Card Reader
Plus 2x USB 2.0
4321
2
3
4
1
1H01
USB20-DM1
USB20-DP1
2
3
4
1
1O10
46
45
6
7
8
5
53
54
+3V3ET-ANA
18
N.C.
PCI-CLK-USB20
RESET-ETHERNET
RESET-USB20
SEL-IF-LL1
SEL-IF-LL2
B15
B13A
B4G
B4C
PCI
HOST
CONTROLLER
ETHERNER
CONTROLLER
ETHERNET
CONNECTOR
(OPTIONAL)
USB
CONNECTOR
No USB Supply!
B25
E26
E5
D4
AG22
STBY-WP-NAND-
FLASH
B8B
1703
1710
1704
1702
1701
1705
(OPTIONAL)
512K
FLASH
7LA7
M25P05-AVMN6P
AH10
B5E
46
PNX-MCLK-N
DDR
SDRAM
16Mx16
7L50
K4D261638F
A16
45
PNX-MCLK-P
A17
B5D
K3
TUN-VIPER-RX-CLKP
SPIDER
TUNNEL
BUS
CONTROL
7R00
T6TE0TBG-0001
M29
T2
TUN-VIPER-TX-CLKN
U30
T1
TUN-VIPER-TX-CLKP
U28
A7
TUN-SPIDER-RX-CLKN
D2
A6
TUN-SPIDER-RX-CLKP
C2
H1
TUN-SPIDER-TX-CLKN
B7
G2
TUN-SPIDER-TX-CLKP
C7
B5C
MPIF
E/W &
CONTROL
7C00
PNX3000HL/N3
B5A
AH16
DV1F-CLK
AD28
AH19
DV2A-CLK
AF30
AG25
DV3F-CLK
AK28
7V00
PNX8550EH/M1/S1
B7C
B7A
IN/OUT
7B11
TDA9975EL/8/C1
CTRL
M27-CLK
M135-CLK
C30
D29
L12
M15
DV4-CLK
D1
AK8
MOP
7G04
EP1C12F256C7N
DV-CLKIN
E30
H1
G16
B5A
40
CLK-MPIF
M4
MPIF
E/W &
CONTROL
7A00
PNX3000HL/N3
40
7V01
7V02
MM_CLK_N
MM_CLK_N
A18
B18
46
45
DDR
SDRAM
16Mx16
B7B
NAND-AD
7F54
CY2305SXC
ZERO
DELAY
BUFFER
3
8
PCI-CLK-ETHERNET
PCI-CLK-USB20
PLL-OUT
1
D28
5
PCI-CLK-SPIDER
PCI-CLK-VPR
B6A
AD2
Y2
PCI-CLK-SPIDER
B8B
AH24
AV3-STATUS
B16B
B16B
AF16
DETECT-1V2 (P2.0)
AH15
ENABLE-1V2 (P0.2)
B16A
B16A
RESET-SYSTEM
B5E
D4
AUDIO / VIDEO
TUNNELBUS
DDR INTERFACE
AUDIO / VIDEO
STANDBY + CONTROL
MAIN MEMORY
CONTROL
A/V + TUNNELBUS
B7A
CONTROL
1H00
27M
A2
C4
1LA0
16M
AH12
AJ12
F_15710_129.eps
210905
102
103
19
60
1O00
25M
18
17
1N00
12M
88
87
TD-
RD+
TD+
RD-
2
3
4
1
6
7
8
5
FILTER

Table of Contents

Related product manuals