EasyManua.ls Logo

Philips JL2.1E - Page 185

Philips JL2.1E
254 pages
Print Icon
To Next Page IconTo Next Page
To Next Page IconTo Next Page
To Previous Page IconTo Previous Page
To Previous Page IconTo Previous Page
Loading...
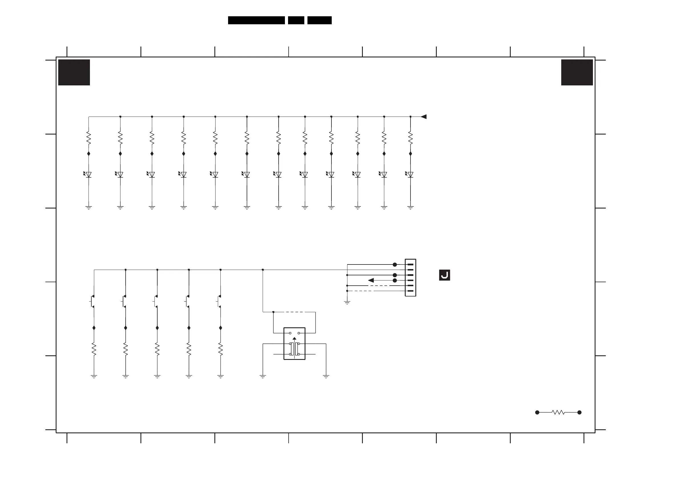
Circuit Diagrams and PWB Layouts
185JL2.1E AA 7.
Control Board (Top Control)
I114 B2
I115 B3
I116 B3
I117 B4
F007 E7
I105 D1
I106 D2
I107 D2
I108 D2
I109 D1
I110 B1
I111 B1
I112 B2
I113 B2
6009 B4
6010 B4
6011 B5
6012 B5
TOP CONTROL
9000 D4
9001 D5
9002 D5
F001 C5
F002 C5
F005 C5
F006 E7
3027 B5
3028 B5
3999 E7
6001 B1
LED + SWITCH
KEYBOARD
6002 B1
6003 B2
6004 B2
6005 B2
6006 B3
6007 B3
6008 B4
D
E
A
B
C
D
ON / OFF
CHANNEL +
CHANNEL -
MENU
VOLUME +
VOLUME -
TO
3025 B4
3026 B4
3019 B2
3020 B2
3021 B2
3022 B3
3023 B3
3024 B4
1234567
1234567
A
B
C
I118 B4
I119 B4
I120 B5
I121 B5
E
0345 C5
1701 D1
1702 D1
1703 D2
1704 D2
1705 D2
1710 E4
3008 D3
3010 D2
3011 D2
3013 D1
3014 D1
3017 B1
3018 B1
SML512BC2T
6003
6002
SML512BC2T
SKQNAB
1704
1705
SKQNAB
1702
SKQNAB
BACKLIGHT-TC
620R
3008
F007
9001
9002
I114I110
F005
F002
I105
F001
I121
3028
33R
6012
SML512BC2T
I120
33R
3027
SML512BC2T
6011
I107I106I108
I113
I109
SKQNAB
1703
33R
I119
6010
SML512BC2T
3026
I118
1K1
3010
I116
390R
3014
I115
1710
25
14
36
200R
3013
33R
3025
SML512BC2T
6009
33R
I117
6008
SML512BC2T
3024
3018
33R
33R
3017
SML512BC2T
6007
6006
SML512BC2T
SML512BC2T
6005
6004
SML512BC2T
SML512BC2T
6001
9000
I112I111
2K2
3999
F006
2K0
3011
1
2
3
4
5
6
BACKLIGHT-TC
0345
SKQNAB
1701
33R
3023
3022
33R
33R
3021
33R
3020
3019
33R
3104 313 6020.3
E E
F_15710_110.eps
160905

Table of Contents

Related product manuals