EasyManua.ls Logo

Philips JL2.1E - Page 47

Philips JL2.1E
254 pages
Print Icon
To Next Page IconTo Next Page
To Next Page IconTo Next Page
To Previous Page IconTo Previous Page
To Previous Page IconTo Previous Page
Loading...
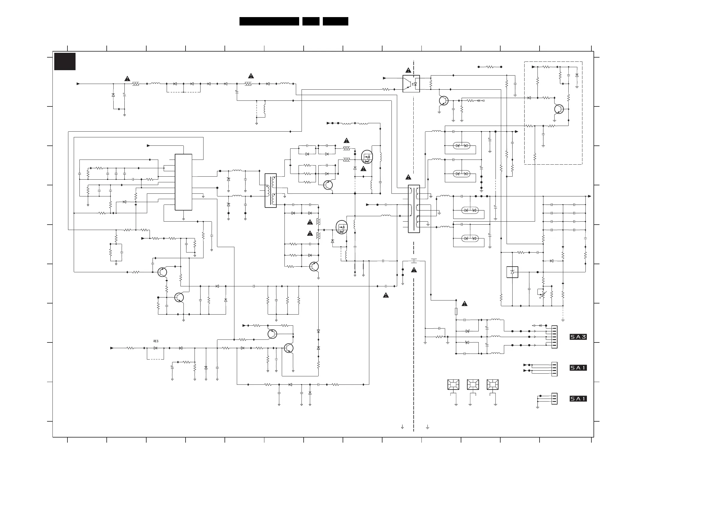
Circuit Diagrams and PWB Layouts
47JL2.1E AA 7.
LCD Supply (32”): Supply
8
F
G
H
I
A
2005 D2
2006 C2
2007 E2
2008 F4
B
C
D
2012 E8
E
F
G
H
I
6789
1234
345
2023 A12
10 11 12 13
2028 B10
2029 D11
2030 F12
2031 B12
567
2035 C2
91011
12V (0V) for US
VSND_NEG
FLM 1/6W
VSND_POS
BIAS SUPPLY
Vs
DRIVE
CONTROL
HIGH SIDE
2002 A2
2003 A5
2004 C2
2048 I6
2050 E3
2051 D13
2052 D13
2009 D1
2010 H3
2011 E9
2062 D6
2013 C8
2014 F9
2015 F5
1007 G10
1009 H10
1010 H11
1012 H11
1304 H13
1309 I13
1M02 G13
2000 E9
12
2024 E12
2025 E13
2026 G3
2027 E3
3003 C1
3004 D1
3005 C3
3006 D2
2032 E13
2033 E13
2034 C1
3010 H4
2036 A13
2037 B13
2038 D11
12 13
A
B
C
D
E
2046 I6
2047 I7
3023 E12
3024 E13
3025 F13
3026 G13
2053 D13
2060 C6
2061 B7
3030 F11
2063 C5
2064 D5
2065 D7
2016 E4
2017 D9
2018 F6
2019 H4
2020 C11
2021 B11
2022 E11
SUPPLY
2294 H11
3000 A2
3001 G5
3002 C1
3042 B13
3043 D1
3044 A13
3045 F6
3007 E2
3008 E2
3009 E2
3049 A12
3011 H4
3012 F3
3013 F4
2039 B10
2040 C1
2041 D13
2042 D13
2043 D13
2044 C10
2045 E11
CURRENT
AUDIO - STBY
Voltage
PROTECTION
3021 F6
3022 C11
3064 F3
3065 E4
3066 F2
3067 H2
3027 G3
3028 E6
3029 C7
3071 H6
3031 A11
3032 B10
3033 A5
2071 E7
2072 C7
2077 H6
2290 G10
2291 G11
2292 G11
2293 H11
3041 F13
5013 D8
5015 C5
5016 D5
5017 A3
3046 F6
3047 H5
3048 D2
5028 C10
3050 E3
3051 B12
3052 C12
3014 B7
3015 C7
3016 C7
3017 D7
3018 E7
3019 F6
3020 E6
0V (0V)
COLD GROUND
3061 E4
6009 H3
6010 F4
6011 F4
6012 E7
3068 G5
3069 A10
3070 H5
6017 I7
3075 G6
3089 H7
3100 A9
3034 F13
3035 C7
3036 A13
3037 C12
3038 E13
3039 A13
3040 E13
GND_SND
5008 B8
5009 B5
5010 A6
6077 A5
6078 A6
6079 A4
6080 A4
5025 D10
5026 E10
5027 B10
6293 G11
5040 D9
5041 E8
5291 G11
3053 E3
3054 C12
3055 I7
3056 I6
3057 A12
3058 E2
3059 A13
6006 I6
6007 C7
6008 D6
7030 A10
7031 B13
9002 G13
9004 B5
6013 C8
6014 H7
6015 G7
9015 H3
6020 H3
6021 D11
6022 H4
3292 G10
3999 A11
5001 C6
5002 C9
5004 C8
5005 C9
5007 B8
Adj.
DRIVE
24V4 (0V)
6051 H5
6054 A13
A2
F009 D5
F010 H12
F012 D11
6081 A2
6082 A3
6291 G11
F018 B7
7001 C3
7002 A9
7004 H6
5292 H11
5293 G11
6001 D2
6002 D7
6003 C6
6004 C5
6005 D5
AUDIO - STBY
TO 1304
7018 F3
F296 G13
F297 G12
F298 H12
F299 B7
9008 A4
9009 A3
9010 C11
I003 B6
9024 C8
9025 E7
F001 H12
6023 E13
6025 E11
6027 C7
6028 E7
6030 A12
6044 B10
6045 C10
32" SHARP
288V(0V)
A2
I016 A12
I017 B13
I018 E3
I020 E3
F014 F12
F016 B11
F017 D11
I024 F4
F021 A11
F022 A12
F023 F9
7005 C8
7006 D7
7007 C7
7008 F7
7009 G6
7010 E12
7017 F3
10V2 (0V)
CONTROL
I042 B7
I045 C6
I046 C7
HOT GROUND
F293 G12
F294 H12
F295 H12
I059 E7
I062 A10
I063 A10
I064 B6
F300 F9
I001 B8
I002 B9
I074 D10
I004 D7
I005 A10
I006 B2
F002 C8
F003 C4
F004 D4
F005 D8
F006 I12
F007 F3
F008 D5
16V (0V) for US
16V (0V) for US
122V(0V) for US
I094 F12
I095 A4
I014 A13
I015 A13
I100 A6
I101 A6
I103 C1
I104 D2
I021 E2
I022 F3
I023 F3
I108 D5
I025 F2
I027 C3
I028 G3
F024 D11
F025 D11
F027 C11
F028 C11
F029 D8
F290 G12
F292 G12
AUDIO - STBY
TO 1309
LOW SIDE
I121 E13
I122 E13
I123 F10
I051 E7
I052 D6
I055 F8
I057 E7
I134 I5
I135 G5
I136 H5
I137 G5
I070 B10
I072 C10
I073 D10
I141 H3
I076 E10
I077 D10
I080 F10
I007 C2
I008 C2
I009 C2
I010 D2
I011 H7
I012 D4
I013 A13
20V4 (0V)
20V4 (0V)
20V4 (0V)
VS-CONTROLLER
I096 A3
I097 A3
I098 A5
I099 A6
I294 C8
I295 H7
I296 G7
c001 F8
I105 E3
I106 G5
I107 C5
I109 C7
I110 D8
I111 C8
I029 G4
I033 F5
I034 F8
I036 F6
I037 C7
I038 B8
I039 D6
TO 1M02
COLD GROUND
16V (0V) for US
16V (0V) for US
I146 A3
I124 G10
I131 I8
I132 I7
I133 I6
I147 A4
I148 A5
I149 A9
I150 B13
I138 H6
I139 G6
I140 G6
I290 G11
I142 H3
I143 H3
I145 E7
I081 F9
I084 F9
I085 E12
I088 E13
I089 E12
I092 F13
I093 F13
20V4 (0V)
20V4 (0V)
I291 G11
SOFTSTART
11V3 (0V)
I292 H10
I293 H11
c002 F8
HOT GROUND
I112 E8
I113 E8
I114 D9
I116 C10
I117 C10
I119 C12
I120 C12
ONLY FOR
22V(0V)
3000
4R7
2020
2m2 25V
820K
3050
2000V
2013
1n5
2022
4m716V
3046
22R
22R
3045
6
7
50V
2029
1n0
1M02
1
2
3
4
5
F290
+12V
400V_HOT
I027
I141
2038
4m7 16V
I052
BAS316
6006
I073
33u
5291
I100
5015
I114
I072
BAS316
6002
3068
2K2
6025
STPS20H100CT
13
2
I025
I004
I046
I112
220n
2051
220n
2053
I096
+24V
12
BC857BW
7008
372(5.000)
1007
250V
T5A
3004
27K
3040
8K2
3056
220R
5008
33K
3038
RES
5040
9024
5009
1
2
3
4
10K
3013
I008
1304
I077
1010
HEATSINK
I001
I294
2032
4n7
RES
I089
BAS316
6011
BC847BW
7004
47R
3018
F005
BC847BW
7018
2048
1n0
7007
BC857BW
470R
3011
I039
3010
470R
F022
3015
47R
9025
1n0
2071
400V_HOT
5041
6017
BAS316
9004
100R
3067
I007
I116
I034
I106
470p
2000
9002
6028
BAS316
6080
BYG22D
I290
I111
25V
2006
1n0
I295
I038
2061
2n2
I062
6013
SML4744
2K7
3048
10K
3089
3016
3K3
I051
I103
3001
100R
HEATSINK
1009
2040
560p
3014
100R
100p
2035
100p
2005
630V
7017
BC857BW
I104
F300
5007
50V
2028
1n0
I105
BC857BW
7009
3071
10K
BAS316
6027
33K
3041
1309
1
2
3
I291
I293
3K3
3035
+24V
3022
680R
I133
I109
GND3
1
3
2
2043
220n
STPS20H100CT
6021
I296
I097
I101
470n
2008
16V
I137
I136
F023
I076
3042
12K
3K3
3009
470n
2023
10n
2017
1600V
5M6
3058
5005
I094
I121
3065
100K
3023
15K
3005
33K
6012
SML4744
3025
1K8
1%
I012
I145
I148
I085
9009
I146
6082
3049
33K
RES
BAS316
3069
2K2
F018
3036
100K
6079
BYG22D
I135
50V
2293
470p
I081
2025
220n
15
VCC
VREF
5
I010
OA
OB
12
16
OS
1
OSCC
OSCCC
3
2
OSCR
13
PGND
11
SOST
EAO
6
EN|UA
9
FI
10
GND
4
In
7
8
Ip
14
7001
MC34067P
I099
I292
I138
15K
3037
RES
25V_HOT
25V_HOT
6081
BZX384-C22
7031
BC847BW
I017
3066
10K
10R
3100
I084
I006
BAS316
6007
6044
STPS20L45CT
1
3
2
I022
I003
3K3
3020
I033
3034
RES
1%
3999
1K0
16V
2024
220n
1n0
I009
2045
50V
I122
50V
2015
10n
I057
2065
2n2
A
3
K
1
R
2
7010
TS2431
I063
I028
F297
3059
2K2
GND_SND
5026
2046
47n
STP15NK50ZFP
7006
I045
I149
I147 I014
+12V
I013
470n
2036
I024
47K
3032
I092
I021
100p
2009
+12V
GND_SND
470p
2063
25V_HOT
I059
25V_HOT
F002
F016
RES
3061
68K
6001
BAS316
100u
2010
BZX384-C4V7
6022
3006
10K
10n
2011
1600V
3003
2K7
2292
2m2
220n
2052
I037
3057
220R
2016
16V100n
STPS8H100FP
6293
I002
3K3
3019
I020
F001
32
I029
7002
TCET1102(G)
14
1n0
2050
I132
470p
2291
50V
I098
1012
HEATSINK
BYG22D
6078
I113
I064
I119
3055
220R
I093
2047
10n
2034
100p
3026
I070
470R
5027
100R
3017
F027
6010
BAS316
3052
33K
10n50V
2290
BC847BW
7030
3007
10K
F009
25V_HOT
5016
I042
I018
I016
I131
I015
470n
5025
2037
I143
3047
47R
5004
I095
I011
100n
2018 RES
9008 RES
3075
1K0
2060
2077
2n2
I117
2n2
F029
2042
220n
5028
I055
c001
2
3
4
6
7
9
3039
1K0
5001
S13932-04
10
F017
3054
4K7
3051
4K7
I080
F024
2003
1m0
F292
1n0
2044
50V
470n
2039
1m0
5010
7005
STP15NK50ZFP
F296
I110
9015
470u
2002
F012
BAT54 COL
6004
2021
25V2m2
F025
I139
3027
100K
2033
220n
F021
F028
I123
3033
1R0
3044
470R
470p
I074
2064
2072
1n0
BAS316
6030
F007
c002
3064
10K
2n2
2062
F014
470n
2007
16V
50V
2026
2n2
16V
2030
100n
BAS316
6023
10K 3031
9010
6005
BAT54 COL
I142
BZX384-C10
6054
3002
39K
BYG22D
F294
6077
F293
2000V
2014
2n2
2
50V
2027
15n
RES
STPS20L45CT
6045
13
I088
F299
F004
F008
3053
680K
3008
F003
330R
BAS316
6020
I036
MRS25 1%
3043
10R
33K
3024
3K3
BAS316
3029
6003
2031
10n
RES
BAS316
6051
560R
3292
5017
6009
PDZ18-B
1n5
2012
I120
2000V
2294
I005
I108
2m2
I107
F010
F298
6015
BAS316
3028
3K3
I140
I150
5292
33u
2
3
5
6
7
89
3070
1K0
1
10
11
12
13
14
15
16
2652.0002 A
5002
33u
5293
I134
BZX384-C22
6014
5013
2019
10n
22R
3021
15K
3012
F295
400V_HOT
6008
BAS316
I023
I124
6291
STPS8H100FP
3030
18K
200p
2004
630V
F006
GND3
2041
220n
GND3
DC_PROT
DC_PROT
3104 313 6063.2
A2
F_15710_002.eps
080905

Table of Contents

Related product manuals